Добавить в корзинуПозвонить
Найти в Дзене
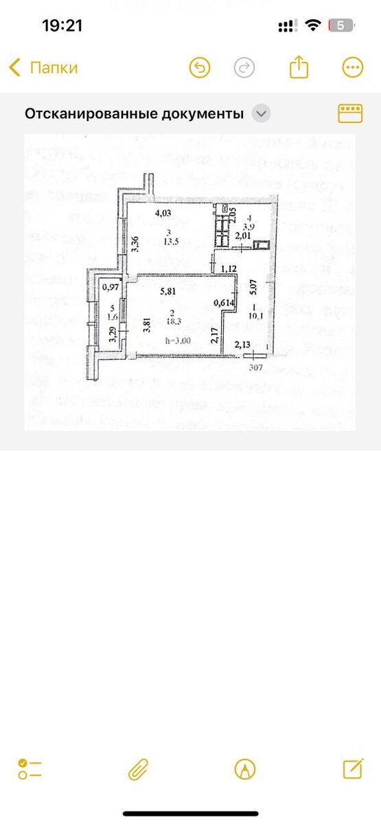
План Нехорошковой

Здравствуйте! Спасибо Вам за такую возможность

У нас с мужем однокомнатная квартира 47 кв м, но она будто не комфортна для нашего образа жизни, так как сейчас у нас большая спальная зона и маленькая кухня, а большую часть времени мы сами и с гостями проводим на кухне. Хотелось бы: 1. отдельную спальную зону(и без окна нормально даже) 2. отдельно студией зал+кухня 3. В зоне кухни еще что то вроде кладовой-постирочной шкаф, т к в ванной стиралка не влезает 4. Зал с хорошей рассадкой диван и кресла, т к любим гостей, там же и компьютерный стол для работы и игр 5. Но при этом и не двигать мокрую точку на кухне Вопрос: не знаем как и где ставить стены на спальню

Здравствуйте! Спасибо Вам за такую возможность.

У нас с мужем однокомнатная квартира 47 кв м, но она будто не комфортна для нашего образа жизни, так как сейчас у нас большая спальная зона и маленькая кухня, а большую часть времени мы сами и с гостями проводим на кухне.

Хотелось бы:

1. отдельную спальную зону(и без окна нормально даже)

2. отдельно студией зал+кухня 3. В зоне кухни еще что то вроде кладовой-постирочной шкаф, т к в ванной стиралка не влезает

4. Зал с хорошей рассадкой диван и кресла, т к любим гостей, там же и компьютерный стол для работы и игр

5. Но при этом и не двигать мокрую точку на кухне

Вопрос: не знаем как и где ставить стены на спальню

-2