Найти в Дзене

Дом 86 кв.м., в котором хочется жить

В самом начале года, когда воздух еще хрустит морозной свежестью, а мысли невольно тянутся к теплу и укоренению, появился на свет один скромный проект. Проект дома. Не палаццо и не усадьбы, а просто дома — в восемьдесят шесть квадратов, что, впрочем, как выяснилось, вполне достаточно, чтобы вместить в себя целую жизнь, полную уюта и сметливой выдумки. Вы переступаете порог — и вас встречает не тесный коридор, а просторная, светлая прихожая. Она не торопит, а позволяет спокойно отряхнуть с души городскую пыль. Рядом — аккуратный гостевой санузел, будто говорящий: «Добро пожаловать, ты дома». В его надежном основании притаилась просторная котельная — душа и теплый пульс этого жилья. Здесь, в царстве труб, можно, посвистывая, чувствовать себя не печником, а хранителем очага. Но настоящее сердце дома бьется в кухне-гостиной — солнечной, где дверь ведет на террасу, прямо в объятия сада. Здесь по утрам будет звенеть кофейная ложка, а вечерний свет лампы соберет за столом все самое дорогое.
Оглавление

В самом начале года, когда воздух еще хрустит морозной свежестью, а мысли невольно тянутся к теплу и укоренению, появился на свет один скромный проект. Проект дома. Не палаццо и не усадьбы, а просто дома — в восемьдесят шесть квадратов, что, впрочем, как выяснилось, вполне достаточно, чтобы вместить в себя целую жизнь, полную уюта и сметливой выдумки.

Уютный дом в 86 кв.м.
Уютный дом в 86 кв.м.

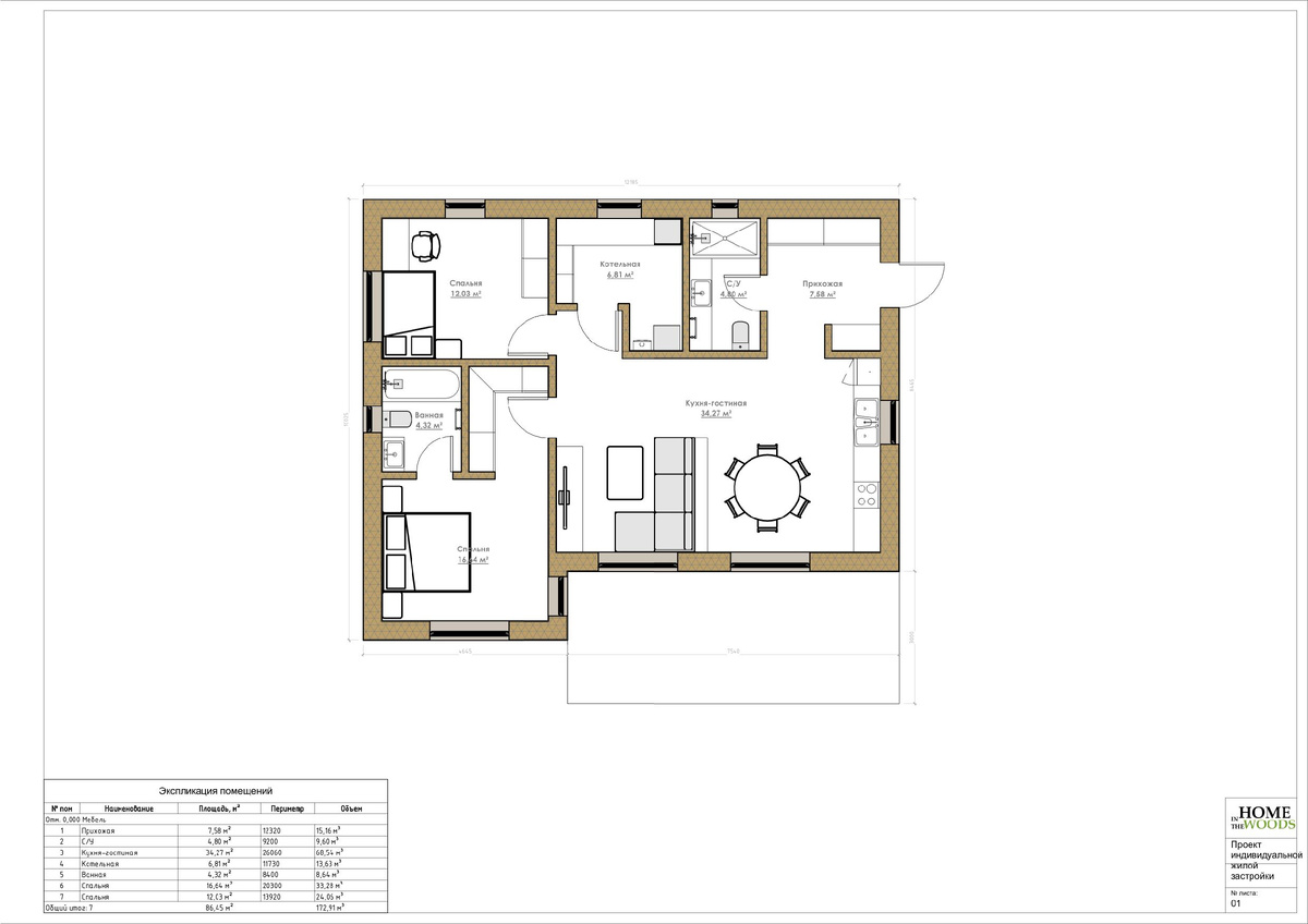
Секрет его — в тихой, вдумчивой планировке.

Вы переступаете порог — и вас встречает не тесный коридор, а просторная, светлая прихожая. Она не торопит, а позволяет спокойно отряхнуть с души городскую пыль. Рядом — аккуратный гостевой санузел, будто говорящий: «Добро пожаловать, ты дома».

Планировка дома
Планировка дома

А дом уже живет своей, пока что тихой жизнью.

В его надежном основании притаилась просторная котельная — душа и теплый пульс этого жилья. Здесь, в царстве труб, можно, посвистывая, чувствовать себя не печником, а хранителем очага.

Но настоящее сердце дома бьется в кухне-гостиной — солнечной, где дверь ведет на террасу, прямо в объятия сада. Здесь по утрам будет звенеть кофейная ложка, а вечерний свет лампы соберет за столом все самое дорогое.

Жизнь здесь течет разумно. Хозяева удаляются в свою мастер-спальню — уединенную, полноценную. А над её тихими помещениями, над гардеробной и санузлом, архитектор совершил небольшую, но прекрасную шалость. Он устроил там, в детской, балкон. Не наружу, а внутрь дома, в двухсветное пространство.

Представьте: из этой светлой, шикарной детской дверь ведет не куда-нибудь, а на свой собственный, словно смотровая площадка, балкончик. Стоишь на нем, облокотившись на перила, и видишь под собой — не улицу, а уютную жизнь всего дома: мягкий свет из гостиной, движение на кухне, высокий потолок. Это же целое приключение для ребячьей души! Тайная башня, капитанский мостик, ложа в собственном театре. И площадь комнаты от этого чуда не просто увеличивается — она обретает объем, воздух и воображение.

Уютный дом в 86 кв.м.
Уютный дом в 86 кв.м.
Уютный дом в 86 кв.м.
Уютный дом в 86 кв.м.
Уютный дом в 86 кв.м.
Уютный дом в 86 кв.м.
Уютный дом в 86 кв.м.
Уютный дом в 86 кв.м.

Но дом — это не только внутренний мир.

Его лицо обращено к природе. Стены его одеты в натуральное дерево, теплое на вид. Среди отделки — несколько скворечников, гостеприимные квартиры для пернатых соседей. И как приятно будет весной, слушать не городской гул, а их оживленную болтовню.

А завершает образ мягкая, матовая глиняная штукатурка. Она не кричит, а говорит вполголоса, придавая дому ту самую уютную, душевную теплоту. Дом будто вырастает из земли, становясь её естественным продолжением.

Вот он и стоит в мыслях — неброский, мудрый, полный тишины, света и маленьких архитектурных радостей.

Дом, где есть место и для уединения, и для смеха, и для утреннего кофе, и для детских открытий на собственном балконе-смотровой. Дом, который ждет не просто жильцов, а хранителей своей особой, мирной, настоящей жизни. Просто жить. И быть счастливым.

Обращайтесь +7 917 275 79 57

Сергей Петров | Архитектор. Проекты частных домов | Дзен