Добавить в корзинуПозвонить
Найти в Дзене
Зарисовки

Финский домик

Если попытаться представить послевоенный Гурьев, город возникает в памяти не сразу, а мозаикой из запахов, звуков и обрывочных картинок улиц и домов, которые постепенно складываются в единую картину. Вот главная улица города — улица Ленина, шумная и полная движения. По ней грохочут грузовики, изредка проезжают легковушки, спешат по своим делам люди. Город живёт повседневной жизнью. Но стоит свернуть в сторону — и всё меняется. Оставив позади ул. Ленина (район Санатория), мы оказываемся на небольшой улочке под названием "Новый проезд". Здесь нет асфальта — под ногами утоптанная земля, местами припорошенная пылью. За заборами виднеется зелень. Воздух здесь тише и мягче, как будто город отступает, а природа становится ближе. Идём по уютной улочке — и вскоре взору открывается небольшой "финский" дом на две квартиры. Мы у цели — это дом номер восемь, наш! Его окна выходят на юго-восток, и солнце надолго — с утра до самого вечера — задерживается в комнатах. Крыша у дома двускатная, покрытая

Если попытаться представить послевоенный Гурьев, город возникает в памяти не сразу, а мозаикой из запахов, звуков и обрывочных картинок улиц и домов, которые постепенно складываются в единую картину. Вот главная улица города — улица Ленина, шумная и полная движения. По ней грохочут грузовики, изредка проезжают легковушки, спешат по своим делам люди. Город живёт повседневной жизнью.

Но стоит свернуть в сторону — и всё меняется.

Оставив позади ул. Ленина (район Санатория), мы оказываемся на небольшой улочке под названием "Новый проезд". Здесь нет асфальта — под ногами утоптанная земля, местами припорошенная пылью. За заборами виднеется зелень. Воздух здесь тише и мягче, как будто город отступает, а природа становится ближе. Идём по уютной улочке — и вскоре взору открывается небольшой "финский" дом на две квартиры. Мы у цели — это дом номер восемь, наш! Его окна выходят на юго-восток, и солнце надолго — с утра до самого вечера — задерживается в комнатах. Крыша у дома двускатная, покрытая толем — с неё легко сходит снег и не задерживается дождь. Ближе к коньку — дымовая труба.

Квартиру в этом доме нашему Константину Васильевичу — фронтовику и специалисту, работавшему в «Гурьевэнерго», — выдали в конце 40-х, точнее, после 1947 года. Новосёлами стала вся наша небольшая семья: бабушка, сам Константин Васильевич, его жена Фима и их маленькая дочка, т.е. я (а вскоре родилась и младшая, Натуська).

Надо сказать, что всё имущество наших родителей сначала умещалось в одном-единственном фанерном чемодане, с которым мама и папа приехали с фронта (а приданым у Фимы, нашей мамы, была добротная перина, которую молодые везли наряду с чемоданом). Вскоре молодая семья стала ждать появления первенца. Декретных отпусков тогда не было, и мама до последнего работала в швейной мастерской, крутила педаль ножной машинки. К вечеру ноги у неё отекали так, что казались чужими. В ночь, когда пришло время рожать, мама с папой поспешили в роддом на самарскую сторону Урала, на другой берег! — пешком. Шли в темноте, боясь не успеть — вдруг родят по дороге? А на следующее утро после родов мама взглянула на свои ноги и не узнала их: отёки спали, и её ножки снова были по-девичьи стройными, даже худенькими.

Время было тяжёлое, родители недоедали, и с грудным молоком начались проблемы — я стала «искусственницей». Порою не было света, и, чтобы нагреть молоко для меня, жгли бумагу на тарелке — скомкают газету или обрывки каких-нибудь листов, подожгут, и над маленьким живым огнём держат кружку с молоком. Пламя дрожит, коптит, бумага быстро съёживается в чёрные лепестки, а молоко всё это время осторожно помешивают, чтобы нагревалось равномерно. Это способ самый простой — и самый ненадёжный, — но другого не было, а он позволял хоть как-то накормить ребёнка.

Дом у Санатория стал первым по-настоящему своим местом после долгих лет войны и переездов. Такие дома называли «финскими». Каркасно-щитовые, скромные, одинаковые, они приходили в Советский Союз эшелонами — в счёт послевоенных репараций. Собирали финские дома быстро и без особой торжественности, однако для людей, которые в них заселялись, это было поистине начало новой жизни. Возводили финские домики на простом фундаменте, их деревянный каркас был заполнен щитами, обычно утеплёнными натуральными материалами — соломой, шерстью. Внутри пахло свежим деревом. Даже в ветреные осенние дни, когда за окном холодало и летела пыль, в доме было спокойно и тихо — дом держал тепло. Тут же, за Геофизикой, выстроились в ряд и другие финские домики, в которые вселились наши будущие соседи — Колотушкины, Рябинины, Гавро...

Первым за калиткой нас встречал нарядный цветник. Наша мама сажала здесь самые разные цветы — циннии, бархатцы, ночную красавицу, — и летом над клумбой порхали крупные яркие бабочки. От калитки к крыльцу ведет дорожка. Когда-то у входа в дом была открытая веранда, но со временем её обшили и застеклили, и с тех пор половина веранды служит хранилищем для несезонных вещей.

Сначала нашему Константину Васильевичу предлагали квартиру в многоэтажном доме, очень хорошую — с высокими потолками, типичными для «сталинки», в центре города. Но бабуся Наташа, папина мама, хотела жить "на земле". Она говорила, что люди, живущие в многоэтажках, похожи на птиц в скворечниках, и мечтала о доме с двором и садом. Так и вышло.

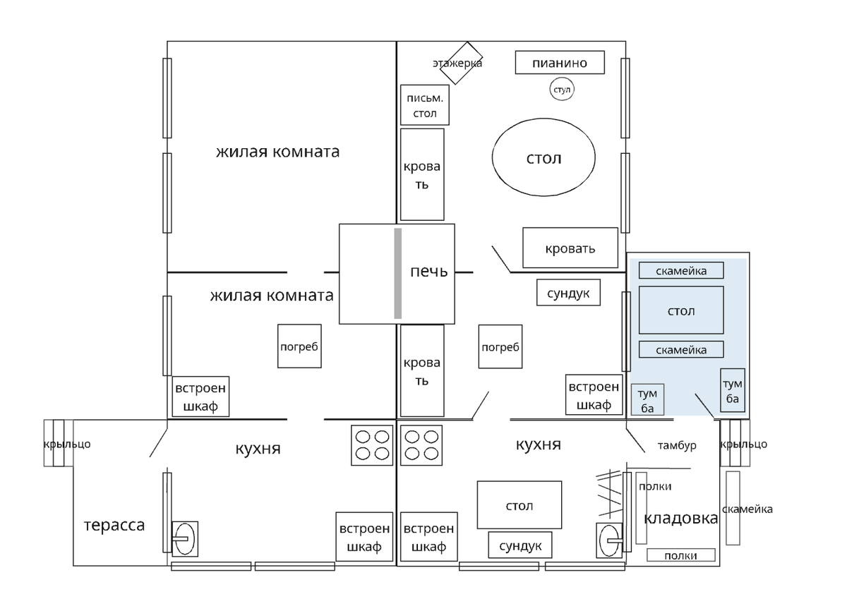
Поднявшись по ступенькам и миновав коридор, попадаем на кухню. Под потолком вьётся восковой плющ, усыпанный белыми звёздочками цветов. Над окном — изящный деревянный карниз, сделанный руками Константина Васильевича. Работает радио, на стене ровно тикают часы. В углу — умывальник и раковина, до которой, встав на табуретку, может дотянуться и ребёнок. Здесь же, на кухне, стоит тёмный резной шкаф с красивыми дверцами — это тоже ручная работа.

За кухней следует жилая комната, которая служит спальней для бабуси Наташи и кого-нибудь из нас, детей. Здесь же находится печь — сердце дома. Печь расположена так, что обогревает сразу две комнаты — большую, где собираются все, и эту — маленькую. Бабушкина кровать стоит ближе к печи — так теплее. А для нас постелью служит огромный бабушкин сундук.

В самой дальней комнате — зале — стоит чёрное пианино "Беларусь" с замечательным крутящимся стулом. Там же находится наш письменный стол, за которым удобно делать уроки, и много книг. На стенах — репродукции картин.

В этой же комнате стоит старинная швейная машинка "Зингер". Когда-то, едва прибыв с фронта, наша юная мама училась шить на «Зингере». Ей помогали все: бабуся Наталья подсказывала, как вести строчку, где придержать или отпустить, где повернуть. А Константин Васильевич, присев рядом, направлял ноги мамы, когда она нажимала на широкую педаль «Зингера». Ведь поначалу очень непросто скоординировать работу и рук, и ног одновременно! Мама была усердной ученицей, и под мерный стук иглы под её пальцами рождалась ровная строчка.

Тут же, в этой самой большой комнате дома, — овальный стол, покрытый скатертью. За этим столом мы собираемся в праздники — за ним все равны, ведь у овала нет углов, и никто не занимает «главного места». А в будни стол становится рабочим: на нём частенько можно видеть то чертежи для вуза, то швейные выкройки. Кроим и разглаживаем швы тоже на этом столе-труженике: на столешнице до сих пор видно едва заметное пятно от утюга.

...На участке у дома Константин Васильевич посадил яблони — они выросли раскидистые, пусть и не слишком высокие, но радующие великолепным весенним цветением и обилием яблок в августе. На стволы яблонь можно забираться, в их тени можно качаться на качелях или читать... Здесь всё родное — и стены, и окна, и даже запах яблок, который наполняет воздух по утрам.

-2