Найти в Дзене

Забудьте о Границах! Как Проект 107 м² Объединяет Ваш Дом с Природой

Дом по проекту Д-262 "Старокорсунская" создан для тех, кто ищет современное слияние с природой. Теплая песочно-коричневая цветовая гамма фасада и низкий силуэт придают ему уютный и актуальный облик. Главный акцент сделан на масштабном панорамном остеклении и широкой террасе, которые позволяют солнечному свету беспрепятственно проникать внутрь и визуально расширяют жилое пространство. Этот дом — оазис света, где летний сад становится частью интерьера. Планировка сочетает открытые общественные зоны и изолированные личные пространства. Свяжитесь с нами по вопросам строительства, проектирования и ипотеки:
Оглавление

🌞 Внешний Вид: Свобода и Естественность

Дом по проекту Д-262 "Старокорсунская" создан для тех, кто ищет современное слияние с природой. Теплая песочно-коричневая цветовая гамма фасада и низкий силуэт придают ему уютный и актуальный облик. Главный акцент сделан на масштабном панорамном остеклении и широкой террасе, которые позволяют солнечному свету беспрепятственно проникать внутрь и визуально расширяют жилое пространство. Этот дом — оазис света, где летний сад становится частью интерьера.

Дом построен ООО "СК "Домовой" (г. Краснодар)
Дом построен ООО "СК "Домовой" (г. Краснодар)

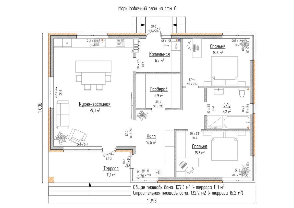
💫 Планировка: Пространство для Жизни (Общая площадь: 107.3 м² + Терраса 11.1 м²)

Планировка сочетает открытые общественные зоны и изолированные личные пространства.

  • Жизнь на Свежем Воздухе: Главная особенность — большая Кухня-гостиная (39.0 м²) с прямым выходом на крытую Террасу (11.1 м²). Это идеальное решение для барбекю и отдыха.
  • Личный Уголок: Две светлые спальни (14.6 м² и 15.3 м²) удобно расположены вокруг просторного холла.
  • Роскошь Хранения: Выделенная, вместительная Гардеробная (6.9 м²) позволяет поддерживать минимализм и порядок в жилых комнатах.
  • Функционал: Проект включает большой санузел (8.2 м²) и котельную (6.7 м²).
Проект разработан архитектором ООО "СК "Домовой" (г. Краснодар)
Проект разработан архитектором ООО "СК "Домовой" (г. Краснодар)

Свяжитесь с нами по вопросам строительства, проектирования и ипотеки:

  • +7 (928) 460-60-04 клиентский менеджер
  • +7 (989) 27-36-888 главный специалист по ипотечному кредитованию
  • 8 (800) 23-478-23 звонок по РФ бесплатный
  • офис г. Краснодар, ул. Тепличная, 62/1, корп. 5
  • наш сайт https://domovoy.online/
Домовой - строительство домов и проектирование | Дзен