Добавить в корзинуПозвонить
Найти в Дзене

В Ростовской области установили охранные зоны для бывшего фашистского лагеря «Дулаг-125»

Иллюстрация: donland.ru В Ростовской области определили охранные зоны для ОКН «Дулаг-125» В Ростовской области установят охранные зоны для объекта культурного наследия регионального значения — Дома помещика в Миллерово. Здесь во время Великой отечественной войны находился фашистский лагерь для военнопленных «Дулаг-125». Как следует из постановления, опубликованного на сайте донского правительства, теперь любое строительство на территории охраняемой зоны рядом с памятником будет строго регламентировано для обеспечения сохранности истерического объекта. «Дулаг-125», который также получил неофициальное название «Миллеровская яма», - немецкий сборно-пересыльный лагерь. Изначально был предназначен для размещения военнослужащих, однако со временем в нём стали содержаться все категории граждан. По разным данным, через этот концлагерь прошли более 120 тысяч военнопленных, и не менее 40 тысяч из них погибли. Кирилл Азаров Читайте еще: Ростов парализовали восьмибалльные пробки Бывшему главе адм
Иллюстрация: donland.ru
Иллюстрация: donland.ru

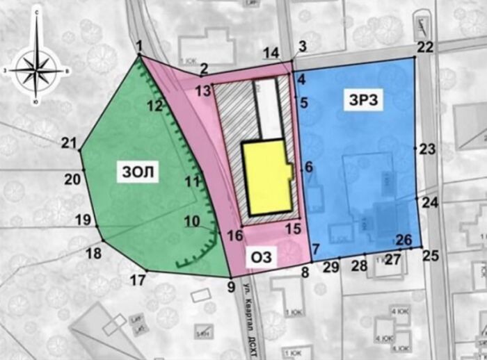
В Ростовской области определили охранные зоны для ОКН «Дулаг-125»

В Ростовской области установят охранные зоны для объекта культурного наследия регионального значения — Дома помещика в Миллерово. Здесь во время Великой отечественной войны находился фашистский лагерь для военнопленных «Дулаг-125».

Как следует из постановления, опубликованного на сайте донского правительства, теперь любое строительство на территории охраняемой зоны рядом с памятником будет строго регламентировано для обеспечения сохранности истерического объекта.

«Дулаг-125», который также получил неофициальное название «Миллеровская яма», - немецкий сборно-пересыльный лагерь. Изначально был предназначен для размещения военнослужащих, однако со временем в нём стали содержаться все категории граждан.

По разным данным, через этот концлагерь прошли более 120 тысяч военнопленных, и не менее 40 тысяч из них погибли.

Кирилл Азаров

Читайте еще:

Ростов парализовали восьмибалльные пробки

Бывшему главе администрации Новочеркасска продлили арест

Коммунальщики Ростова приготовились к гололёду

Ссылка на статью: https://www.panram.ru/news/society/v-rostovskoy-oblasti-ustanovili-okhrannye-zony-dlya-byvshego-fashistskogo-lagerya-dulag-125-/