Найти в Дзене

Коммерческое помещение свободного назначения.

Возможно приобретение с заключенными договорами аренды: аптека, медицинский центр, маркетплейсы и т.д. 📍Адрес: Минская ул., д. 22 (ЗАО, район Филёвский парк).
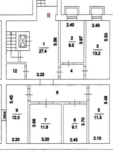
Площадь: 298 м². Удобное расположение: близость к метро "Филевский парк" - 5 мин., "Багратионовская", высокий пешеходный и автомобильный трафик. ✅️Основные характеристики:
Этажи: 1й этаж + подвал.
Входы: 3 отдельных входа с улицы.
Окна: большие, обеспечивают хорошую освещённость.
Паркинг: бесплатная парковка.
Назначение: помещение свободного назначения. Варианты использования:
Идеально подходит для размещения: кафе или ресторана; магазина; медицинского центра; офиса; шоурума; других коммерческих проектов. Условия продажи:
Предлагается два варианта:
● С арендатором — готовый арендный бизнес (стабильный доход с первого дня).
●Без арендатора — для организации собственного бизнеса. Узнать подробнее и задать вопрос можно по телефону.
👇👇👇
+79258941888 Оксана
+79253245522 Инна
+79308515153 Анджела

Возможно приобретение с заключенными договорами аренды: аптека, медицинский центр, маркетплейсы и т.д.

-2

📍Адрес: Минская ул., д. 22 (ЗАО, район Филёвский парк).
Площадь: 298 м².

-3

Удобное расположение: близость к метро "Филевский парк" - 5 мин., "Багратионовская", высокий пешеходный и автомобильный трафик.

-4

✅️Основные характеристики:

Этажи: 1й этаж + подвал.

Входы: 3 отдельных входа с улицы.

Окна: большие, обеспечивают хорошую освещённость.

Паркинг: бесплатная парковка.

Назначение: помещение свободного назначения.

-5

Варианты использования:

Идеально подходит для размещения: кафе или ресторана; магазина; медицинского центра; офиса; шоурума; других коммерческих проектов.

-6

Условия продажи:

Предлагается два варианта:

● С арендатором — готовый арендный бизнес (стабильный доход с первого дня).
●Без арендатора — для организации собственного бизнеса.

-7

Узнать подробнее и задать вопрос можно по телефону.
👇👇👇

+79258941888 Оксана
+79253245522 Инна
+79308515153 Анджела