Добавить в корзинуПозвонить
Найти в Дзене

Сколько стоит фундамент из бетонных свай под небольшой одноэтажный каркасник

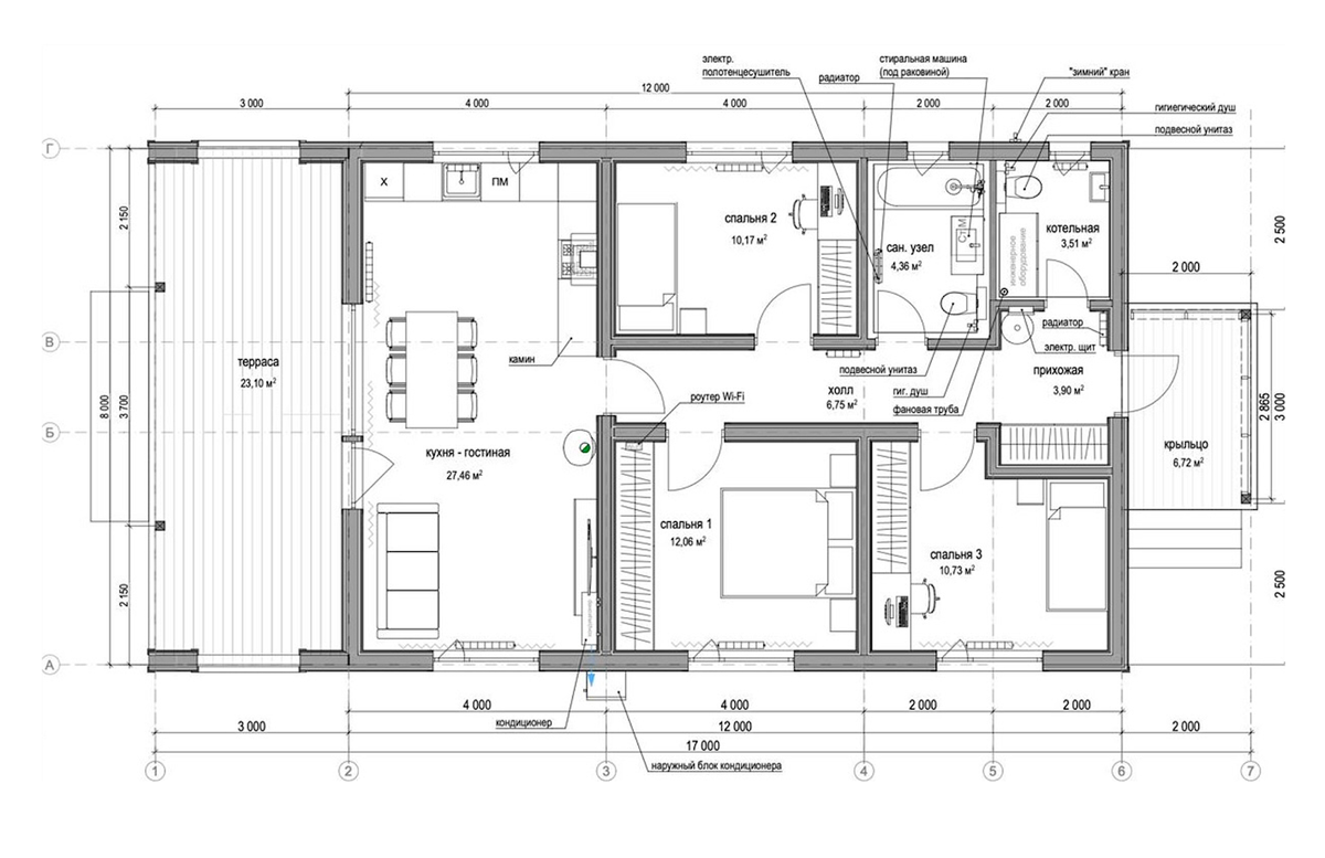
В Солнечногорском городском округе Московской области специалисты «Королёвского завода свай» возвели свайный фундамент под одноэтажный деревянный каркасный дом 17 × 8 м. Показываем план свайного поля и результат работы, а также рассчитываем актуальную на момент написания статьи стоимость такого фундамента. Строительство ведет компания «Валдайский мастер» по собственному проекту. Дом одноэтажный, деревянный, с двускатной крышей. Проект выполнен в скандинавском стиле, для которого характерны минимализм, функциональность, использование натуральных материалов. В доме кухня-гостиная площадью 27 кв. м, три спальни, санузел и котельная. Во всех спальнях и при входе в дом предусмотрены места хранения. Со стороны гостиной к дому примыкает терраса площадью 23 кв. м, а с противоположного торца из общего объема дома выделяется крытое крыльцо. Для такого дома подошел бы как фундамент из забивных железобетонных свай, так и из металлических винтовых. Заказчик выбрал для фундамента забивные железобе

В Солнечногорском городском округе Московской области специалисты «Королёвского завода свай» возвели свайный фундамент под одноэтажный деревянный каркасный дом 17 × 8 м. Показываем план свайного поля и результат работы, а также рассчитываем актуальную на момент написания статьи стоимость такого фундамента.

Строительство ведет компания «Валдайский мастер» по собственному проекту. Дом одноэтажный, деревянный, с двускатной крышей. Проект выполнен в скандинавском стиле, для которого характерны минимализм, функциональность, использование натуральных материалов.

В доме кухня-гостиная площадью 27 кв. м, три спальни, санузел и котельная. Во всех спальнях и при входе в дом предусмотрены места хранения. Со стороны гостиной к дому примыкает терраса площадью 23 кв. м, а с противоположного торца из общего объема дома выделяется крытое крыльцо.

-2

Для такого дома подошел бы как фундамент из забивных железобетонных свай, так и из металлических винтовых.

Заказчик выбрал для фундамента забивные железобетонные сваи, их потребовалось 49 штук. Отталкиваясь от плана дома и расчета нагрузок, использовали сваи сечением 150 × 150 мм. Длина свай — 3 м, она подобрана с учетом параметров грунта, а также требований архитектурного проекта к высоте цоколя — не менее полуметра.

-3

Специалисты КЗС забили сваи мини-сваебойной машиной, а затем смонтировали на них металлические оголовки. Далее на эти оголовки через прослойку гидроизоляционного материала строители уложат брус обвязки или нижний венец дома.

Монтаж фундамента занял один рабочий день.

-4
-5

Чтобы дать читателю представление о стоимости фундамента из забивных бетонных свай, рассчитаем стоимость реализации такого проекта на момент написания статьи — 8 декабря 2025 года.

Общая стоимость — 269 тысяч рублей. Из них: 106 тыс. руб. — стоимость свай, 103 тыс. руб. — стоимость их монтажа, еще 28 тыс. рублей — стоимость комплекта оголовков и их установки. Еще 32 тысячи — стоимость доставки свай, сваебойной установки и бригады до участка: в этом расчете для примера взяли расстояние до участка от МКАД равным 29 км.

-6

Приведенный расчет носит ознакомительный характер, не является офертой. Актуальную стоимость продукции и услуг «Королёвского завода свай» смотрите на сайте kzs.ru. А чтобы рассчитать полную стоимость фундамента из винтовых или забивных свай для вашего проекта, оставьте заявку на сайте, и с вами свяжется менеджер завода.