Добавить в корзинуПозвонить
Найти в Дзене
Партнёр НКО

Многоэтажное домостроение в СССР: от «хрущёвок» к «брежневкам»

Гражданское и промышленное строительство в советский период базировалось на так называемом серийном подходе, когда здания и сооружения возводились на основе унифицированных типовых проектов и норм, объединенных в серии. При этом в рамках каждой серии могла несколько отличаться этажность, количество секций, отдельные элементы декора и пр. Для серий домов, как правило, был характерен ограниченный перечень планировок квартир, строго-единый архитектурный стиль и относительно простая технология возведения. Чаще всего серийные дома возводились из железобетонных конструкций, которые могли быть блочными, панельными, монолитными, сборно-монолитными и другими. Хотя до 25-30% зданий и сооружений в СССР приходилось на кирпичное возведение. Нужно сказать, что серии применялись не только в строительстве жилых многоэтажек, но и при возведении учреждений, школ, больниц, детсадов, цехов, заводов и фабрик, мостов, эстакад, путепроводов и пр. Серийное проектирование, по словам главного сторонника такого
Оглавление

Гражданское и промышленное строительство в советский период базировалось на так называемом серийном подходе, когда здания и сооружения возводились на основе унифицированных типовых проектов и норм, объединенных в серии. При этом в рамках каждой серии могла несколько отличаться этажность, количество секций, отдельные элементы декора и пр. Для серий домов, как правило, был характерен ограниченный перечень планировок квартир, строго-единый архитектурный стиль и относительно простая технология возведения. Чаще всего серийные дома возводились из железобетонных конструкций, которые могли быть блочными, панельными, монолитными, сборно-монолитными и другими. Хотя до 25-30% зданий и сооружений в СССР приходилось на кирпичное возведение. Нужно сказать, что серии применялись не только в строительстве жилых многоэтажек, но и при возведении учреждений, школ, больниц, детсадов, цехов, заводов и фабрик, мостов, эстакад, путепроводов и пр.

Серии типовых дорожных мостов в СССР. Источник фото: https://pastvu.com/p/2403756
Серии типовых дорожных мостов в СССР. Источник фото: https://pastvu.com/p/2403756
Серии типовых зданий болиниц в СССР. Источник фото: https://med-b-detskaya-klinicheskaya-belgorod-r31.gosweb.gosuslugi.ru/svedeniya-o-meditsinskoy-organizatsii/
Серии типовых зданий болиниц в СССР. Источник фото: https://med-b-detskaya-klinicheskaya-belgorod-r31.gosweb.gosuslugi.ru/svedeniya-o-meditsinskoy-organizatsii/

Серийное проектирование, по словам главного сторонника такого подхода в строительстве Никиты Хрущёва, было нацелено прежде всего на как можно скорую индустриализацию строительной отрасли СССР и обеспечения советских граждан «квадратными метрами» в короткие сроки. Серии, несмотря на отсутствие архитектурной грации и изящества, позволяли значительно минимизировать себестоимость строительства и значительно сократить его сроки. «…На якобы архитектурную монотонность и безликость наших жилых кварталов указывают наши идеологические враги – страны Запада и капиталистического мира, в котором 100 миллионов бездомных...», – высказывался Хрущёв, отстаивая серийный и простой подход в советском строительстве.

Источник фото: https://www.kommersant.ru/gallery/3371974
Источник фото: https://www.kommersant.ru/gallery/3371974

Нужно сказать, что «серийный и массовый подход» при Хрущёве получил весьма широкое распространение не только в строительстве, но и во всех других сферах и отраслях. Если говорить о строительстве, то именно вторая половина 1950-ых – первая половина 1960-ых годов во многих внесли значительный вклад в облик жилых районов большинства советских городов. Причём так называемые «хрущёвки» – типовые пятиэтажные жилые дома, строительство которых началось в далёком 1956 году, возводились в нашей стране вплоть до 1997 года.

Источник фото: https://tr.pinterest.com/pin/599401031692668373/
Источник фото: https://tr.pinterest.com/pin/599401031692668373/

Главной отличительной их особенностью были простота возведения и небольшие габариты. Площадь кухонь в таких квартирах была порядка 5-6 м². Санузлы тесные – совмещённые с ванными комнатами и туалетами. Высота потолков – не более 2,5 метра. При этом, данные дома возводились «сверхбыстро» и их себестоимость была весьма низкой. Пик жилищного строительства «хрущёвок» пришёлся на 1960 год, когда было возведено свыше 80 млн м2 жилья.

Строительство дома. 1959 г, г. Москва. Источник фото: https://lenta.ru/articles/2025/08/06/tselina/
Строительство дома. 1959 г, г. Москва. Источник фото: https://lenta.ru/articles/2025/08/06/tselina/

Введение в эксплуатацию «хрущёвок» позволило уйти советским гражданам от коммунального образа жизни, характерного для сталинского периода. Огромное количество советских семей получило возможность покинуть ветхие бараки, коммунальные квартиры, и «халупы», переехав в отдельные, хоть и маленькие, но благоустроенные с удобствами квартиры. Появление «хрущёвок» сформировало новые запросы граждан и стало стимулом для развития потребительской культуры. Тем не менее, несмотря на внушительные объемы строительства, Хрущеву за период своего правления так и не не удалось полностью «разрешить жилищный» вопрос в нашей стране.

Источник фото: https://www.yaplakal.com/forum28/st/275/topic2851638.html
Источник фото: https://www.yaplakal.com/forum28/st/275/topic2851638.html

Источник фото: https://pastvu.com/p/894525?history=1551129401025
Источник фото: https://pastvu.com/p/894525?history=1551129401025

Пятиэтажные дома, возведенные во времена правления Никиты Хрущева, являются, по сути, визитной карточкой «бума жилищного строительства» в СССР. Даже спустя 50-70 лет с момента постройки «хрущёвок», эти дома остаются важной частью жилищного фонда российских городов и продолжают привлекать внимание покупателей недвижимости. В настоящее время в нашей стране приблизительно 10-12 миллионов м2 «хрущёвок» все еще находятся в эксплуатации. А в ряде городов, доля этих квартир составляет более 1/3 от всего жилого фонда. Среди наиболее распространённых серий «хрущёвок» выделяют К-7, 1-335, 1-464, 1-447, 1-515/5 и др.

«Хрущёвки»

Серия К-7

Источник фото: https://www.kvmeter.ru/information/homes_series/k_7/
Источник фото: https://www.kvmeter.ru/information/homes_series/k_7/

Обозначение «К» – каркасный. Типовые пятиэтажки, состоящие из нескольких секций. Возводились из каркасных панелей, отделанных красной или белой матовой плиткой. Эти дома широко распространены в Москве и Саратове. Отличительные черты – глухие боковые стены и отсутствие балконов. Любопытно, что балконы изначально были заложены в проект, однако от них часто отказывались по рекомендации самого Хрущёва: «...в целях сокращения расходов на строительство...». На каждом этаже располагалось по 3 квартиры: 1-а комнатная, 2-х комнатная и3-х комнатная. В более поздних вариантах домов этой серии можно было встретить и 4-х комнатные квартиры. Дома этой серии строились с 1958 по 1970 годы. Главное преимущество домов – раздельные санузлы, в том числе в 1-а комнатных квартирах. Недостатки – плохая звукоизоляция из-за тонких стен.

Источник фото: https://www.pereplanirovkamos.ru/k-7.html?
Источник фото: https://www.pereplanirovkamos.ru/k-7.html?
Источник фото: https://www.pereplanirovkamos.ru/k-7.html?
Источник фото: https://www.pereplanirovkamos.ru/k-7.html?
Источник фото: https://ca.pinterest.com/pin/518899188338938770/
Источник фото: https://ca.pinterest.com/pin/518899188338938770/

Источник фото: https://www.pereplanirovkamos.ru/k-7.html?
Источник фото: https://www.pereplanirovkamos.ru/k-7.html?
Источник фото: https://www.yaplakal.com/forum2/topic1031578.html?__cf_chl_tk=pWKcXWVPOFj.9otUUeI6dVuK.7uJ7wyXdFrFeljlcCE-1647627811-0-gaNycGzNBlE
Источник фото: https://www.yaplakal.com/forum2/topic1031578.html?__cf_chl_tk=pWKcXWVPOFj.9otUUeI6dVuK.7uJ7wyXdFrFeljlcCE-1647627811-0-gaNycGzNBlE

Источник фото: https://it.pinterest.com/pin/8444318046120121/
Источник фото: https://it.pinterest.com/pin/8444318046120121/

Серия 1-335

Источник фото: https://okna.imgrand.ru/razmery-plastikovyh-okon/okna-v-dom-1-335-serii/
Источник фото: https://okna.imgrand.ru/razmery-plastikovyh-okon/okna-v-dom-1-335-serii/

Панельные, преимущественно 5-этажные жилые дома (изначально 3х- и 4х-, этажные) с неполным каркасом и продольными несущими стенами. В домах внешние панели были несущими, а внутренние перекрытия ставили на каркас из так называемых бетонных колонн. Такая конструкция оказалась весьма ненадежной, так как панели плохо прилегали к балкам и в швы проникала влага. Через 5 лет дома начали строить на полном каркасе. Бетонные балки устанавливали уже не только внутри, то и по внешнему периметру здания, а затем навешивали на них панели. Облицовка – из мелкой керамической плитки синих оттенков и 2 ряда окон на торце дома. Квартиры с балконами, примыкающие к гостиным. Санузлы в основном совмещённые. Преимущество – наличия в квартирах кладовки. Недостаток – несколько неудовлетворительная теплоизоляция. Строились с 1958 по 1973 годы.

Источник фото: https://logoslab.ru/full_img/plan-doma-1-335/11
Источник фото: https://logoslab.ru/full_img/plan-doma-1-335/11
Источник фото: https://domavspb.narod.ru/index/0-721
Источник фото: https://domavspb.narod.ru/index/0-721
Источник фото: https://www.yaplakal.com/forum2/topic1038670.html?__cf_chl_tk=zNw_jOZ1cC5MFWvFLplDi6wlBfAYzV_qpRv3RqZEpDY-1648897672-0-gaNycGzNCP0
Источник фото: https://www.yaplakal.com/forum2/topic1038670.html?__cf_chl_tk=zNw_jOZ1cC5MFWvFLplDi6wlBfAYzV_qpRv3RqZEpDY-1648897672-0-gaNycGzNCP0

Источник фото: https://hsedesign.ru/project/03f04708eeaa411bac1930418ed6b256
Источник фото: https://hsedesign.ru/project/03f04708eeaa411bac1930418ed6b256

Источник фото: https://domavspb.narod.ru/index/0-721
Источник фото: https://domavspb.narod.ru/index/0-721
Источник фото: https://domavspb.narod.ru/index/0-721
Источник фото: https://domavspb.narod.ru/index/0-721

Серия 1-464

Источник фото: https://cih.ru/wp/bld/2025/07/11/серийные-маньяки-и-массовая-архитект/m4-11/
Источник фото: https://cih.ru/wp/bld/2025/07/11/серийные-маньяки-и-массовая-архитект/m4-11/

Серия жилых домов, разработанная институтом «Гипростройиндустрия» в 1958–1959 гг. Отличительной особенностью пятиэтажных домов 464-й серии, возведенных из цельных железобетонных панелей, являются двойные окна на лестничных площадках между этажами. В планировке квартир предусмотрены балкон и небольшая кладовка. Во всех вариантах санузел совмещенный. Однокомнатные квартиры обладают площадью от 30 м2, где кухня занимает 5 кв. м. В 2-х- и 3-х комнатных квартирах кухни немного больше – 6 кв. м. Общая площадь 2-х комнатных квартир достигает 46 м², 3-х комнатных – 58 м². Высота потолков составляет 2,5 метра. Варианты расположения комнат различные: комнаты расположены одна за другой (такие квартиры называли «книжками»), со смежными комнатами (известные как «трамваи»), с кухней в центре (в народе называемые «бабочками» или «распашонками». Недостатки – крайне тесная кухня. Строительство: 1959–1997 гг.

Источник фото: https://gsps.ru/home_series/1-464.php?__cf_chl_captcha_tk__
Источник фото: https://gsps.ru/home_series/1-464.php?__cf_chl_captcha_tk__
Источник фото: https://tgrstudio.artstation.com/projects/A02dy?album_id=956912
Источник фото: https://tgrstudio.artstation.com/projects/A02dy?album_id=956912
Источник фото: https://www.9111.ru/questions/77777777722098460/
Источник фото: https://www.9111.ru/questions/77777777722098460/
Источник фото: https://tr.pinterest.com/pin/463941199119301803/
Источник фото: https://tr.pinterest.com/pin/463941199119301803/

Серия 1-447

Источник фото: https://ixbt.photo/?id=photo:1284091
Источник фото: https://ixbt.photo/?id=photo:1284091

Кирпичные или кирпично-блочные пятиэтажные дома в пять (редко встречаются – 3-х или 4-х) с 2-х скатными или 4-х скатными крышами. Строились по всей территории СССР с 1957 года до 1973 года, а отдельные модификации – до конца 1988 года. Наружные стены – из необлицованного кирпича. 2 ряда двухстворчатых окон в торцевых сторонах (обычно без балконов). Прямоугольный корпус без угловых секций и выступов. На базе данной серии возникло целых 32 модификации домов – от серий 1-447С-1 до 1-447С-54 и др. Считались самой удачной серией «хрущёвок». Благодаря кирпичным стенам дома серии 1-447 превосходят по тепло- и шумоизоляции не только панельные «хрущёвок», но и более поздние «брежневские» панельные дома . Перекрытия из толстенных многопустотных плит также обеспечивают хорошую звукоизоляцию по сравнению со сплошными плитами панельных домов. Недостатков практически нет!

Источник фото: https://www.zjs.ru/house/series/1-447/&SECT=Зеленоград&SCODE=zelenograd/
Источник фото: https://www.zjs.ru/house/series/1-447/&SECT=Зеленоград&SCODE=zelenograd/
Источник фото: https://russiainphoto.ru/photos/37439/
Источник фото: https://russiainphoto.ru/photos/37439/

Источник фото: https://3d-ussr.ru/models/dom-1-447c-31
Источник фото: https://3d-ussr.ru/models/dom-1-447c-31
Источник фото: https://realty.rbc.ru/news/5927c8f69a7947b63c1888c4
Источник фото: https://realty.rbc.ru/news/5927c8f69a7947b63c1888c4

Источник фото: https://ru.pinterest.com/elenagerbey1988/маленькая-кухня/
Источник фото: https://ru.pinterest.com/elenagerbey1988/маленькая-кухня/

Серия 1-515/5

Источник фото: https://www.yrossi.ru/okna/balkony_i_lodjii/osteklenenie_lodziy/b-l-1-515-5-plastic/
Источник фото: https://www.yrossi.ru/okna/balkony_i_lodjii/osteklenenie_lodziy/b-l-1-515-5-plastic/

Многосекционные панельные жилые дома с рядовыми и торцевыми секциями. Межкомнатные стены не несущие, что даёт возможность перепланировок. Балконы в квартирах – начиная со второго этажа. С 1966 года было начато строительство домов 9-этажных модификаций серии 1-515: 1-515/9М и 1-515/9Ш. Ключевой особенностью данной серии являлось скрытое размещение радиаторов отопления. Батареи, достигающие в ширину примерно 80 см, были интегрированы в перегородки между комнатами, примыкая к оконным проемам. Недостаток – плохое состояние балконов. Из-за коррозии и износа часто балконные плиты находятся в аварийном состоянии. Также очень низкий потолок – всего 2,48 м. Преимущества – толстые наружные панели (40 см), которые хорошо изолируют от уличных шумов и низких температур. Строились данные дома с 1957 по 1973 гг.

Источник фото: https://www.mvk-service.com/pereplanirovka-kvartir/varianty/1-115-9h/
Источник фото: https://www.mvk-service.com/pereplanirovka-kvartir/varianty/1-115-9h/
Источник фото: https://pereplan-one.ru/polezno/tipovyie-serii-domov-i-zhk/tipovye-serii-domov/i-515-2/
Источник фото: https://pereplan-one.ru/polezno/tipovyie-serii-domov-i-zhk/tipovye-serii-domov/i-515-2/
Источник фото: https://noel-17.livejournal.com/12738.html
Источник фото: https://noel-17.livejournal.com/12738.html
Источник фото: https://kalugakuhni.ru/vysota-potolkov-v-hrusevkah-foto-dizajn-dvuhurovnevyh-v-zale-potolki-svoimi-rukami-kakaa-v-kirpicnoj/
Источник фото: https://kalugakuhni.ru/vysota-potolkov-v-hrusevkah-foto-dizajn-dvuhurovnevyh-v-zale-potolki-svoimi-rukami-kakaa-v-kirpicnoj/

«Брежневки»

Развитие серийного подхода в строительстве многоквартирных домов в СССР продолжилось и в «брежневский» период. Однако жилые типовые конструкции были значительно улучшены. Так, в отличие от 5-этажных «хрущёвок», «брежневки» строились уже высотой от 8 до 17 этажей. «Брежневские» типовые серии стали гораздо габаритнее и комфортнее. Площадь жилых комнат и кухонь значительно увеличилась. Санузлы стали в основном раздельными. Увеличилась и высота потолков – до 2,7 м. Также в домах появились просторные лоджии, лифты, в том числе грузовые и удобные мусоропроводы. Среди наиболее распространённых серий «брежневок» можно выделить II-18/12Б, П-3, П-30, П-44, 1-515/9М и др.

Источни фото: https://pavluhinoleg.livejournal.com/
Источни фото: https://pavluhinoleg.livejournal.com/
Источник фото: https://tr.pinterest.com/pin/599401031692668373/
Источник фото: https://tr.pinterest.com/pin/599401031692668373/

Источник фото: https://pastvu.com/p/48861
Источник фото: https://pastvu.com/p/48861

Дома значительно отличались рядом инновационных конструктивных и инженерных решений. Лестничные проёмы стали гораздо шире, чем в старых домах. Кровля домов в отличии от «хрущёвок» была плоской с битумным покрытием и современной системой водостока. Особенностью также являлось то, что несущими были не только внешние, но и некоторые внутренние стены, что повышало прочность домов, но значительно ограничивало возможности перепланировки из-за инженерного запрета на демонтаж несущих стен. Комнаты в большинстве серий домов стали изолированными (исчезли проходные комнаты). Кухни, в отличие от «хрущёвок», значительно увеличились в размерах – до 7,4 м². Санузлы стали также более просторными и удобными.

Серия II-18/12Б

Источник фото: https://commons.wikimedia.org/wiki/File:Двухподъездный_дом_серии_II-18-12_в_районе_Гольяново_2.jpg
Источник фото: https://commons.wikimedia.org/wiki/File:Двухподъездный_дом_серии_II-18-12_в_районе_Гольяново_2.jpg

Строительство данных домов велось с 1962 по 1972 гг. Эти 12-этажные конструкции, как правило, возводились из бетонных блоков, хотя существовали и кирпичные модификации. Дома имели 1 или 2 подъезда и были оснащены 2 лифтами. На каждом этаже располагалось до 7 квартир. Отличительной чертой квартир являлись более просторные кухни. Также площадь самих квартир доходила до целых 64 м². Санузлы - раздельные. Нужно сказать, что до 20-25% московских «брежневок» принадлежит к данной серии. В Москве их возведение велось с середины 60-х до начала 70-х годов, а в других регионах СССР строительство продолжалось вплоть до 1978 года. Из главного недостатка данной серии можно выделить – плохое сохранение тепла внешними стенами. Это часто приводило к жалобам граждан. Даже сам Леонид Ильич Брежнев, после многочисленных писем рабочих, инспектируя одну из стройплощадок столицы в 1972 году, указал на этот факт: «...А почему говорят что холодные?.. В чём причина?.. Строить вроде научились уже...».

Источник фото: https://www.gumilev-center.ru/kak-l-i-brezhnev-gensek-sssr-podaril-nureku-million/
Источник фото: https://www.gumilev-center.ru/kak-l-i-brezhnev-gensek-sssr-podaril-nureku-million/
Источник фото: https://ya.ru/images/search?from=tabbar&img_url=https%3A%2F%2Fxn----7sbabgjifasivu3apxbj0
Источник фото: https://ya.ru/images/search?from=tabbar&img_url=https%3A%2F%2Fxn----7sbabgjifasivu3apxbj0

Источник фото: https://3d-ussr.ru/models/ii-18-12
Источник фото: https://3d-ussr.ru/models/ii-18-12
Источник фото: https://pastvu.com/p/54015
Источник фото: https://pastvu.com/p/54015

Источник фото: https://realty.rbc.ru/news/5927c8f69a7947b63c1888c4
Источник фото: https://realty.rbc.ru/news/5927c8f69a7947b63c1888c4

Источник фото: https://practikadesign.ru/studioonmarshalzhukovstreet
Источник фото: https://practikadesign.ru/studioonmarshalzhukovstreet

Серия П-3

Источник фото: https://ekb.fabrikauyuta.ru/osteklenie-balkonov-i-lodzhij/ostekleniye-po-tipu-doma/v-panelnykh-domah/
Источник фото: https://ekb.fabrikauyuta.ru/osteklenie-balkonov-i-lodzhij/ostekleniye-po-tipu-doma/v-panelnykh-domah/

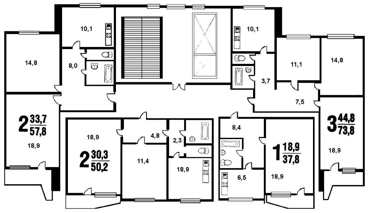
Многоэтажные панельные дома, достигавшие 16-17 этажей, отличались сложной перепланировкой из-за обилия несущих конструкций внутри квартир. В основном на этаже размещались 4 квартиры: 2 двухкомнатных и 2 трехкомнатных. В секциях с поворотом количество квартир на этаже могло возрастать до 8. В некоторых проектах таких домов предусматривались и 4-х комнатные квартиры. Эти дома, появившиеся в 1970-х годах, и их усовершенствованные варианты продолжают строиться в некоторых регионах России и в настоящее время, заслуженно считаясь одной из самых успешных «брежневских» серий. Главной особенностью данной серии является новаторское применение поворотных секций. Это конструктивное решение предоставляло возможность варьировать конфигурацию здания и создавать углы, что, в свою очередь, позволяло увеличить общее количество квартир. Ключевые преимущества наличие просторных лоджий и грузопассажирского лифта. В однокомнатных квартирах балконы отсутствовали. Преимущества – большие лоджии. Недостатки – крайне низкая звукоизоляция. Ходят байки, что в этих домах было самое большое количество «доносов на соседей» за антисоветские высказывания «на кухнях», которые слышались через стену.

Источник фото: https://mostpr.ru/house/p-3
Источник фото: https://mostpr.ru/house/p-3
Источник фото: https://pastvu.com/p/1051176?history=1580873985819
Источник фото: https://pastvu.com/p/1051176?history=1580873985819

Источник фото: https://ru.cg.market/product/panelnyj-dom-serii-p-3m/?add-to-cart=10822
Источник фото: https://ru.cg.market/product/panelnyj-dom-serii-p-3m/?add-to-cart=10822
Источник фото: https://m.load.russiainphoto.ru/exhibitions/1704/
Источник фото: https://m.load.russiainphoto.ru/exhibitions/1704/

Источник фото: https://www.babyblog.ru/community/housedesign/post/1730833
Источник фото: https://www.babyblog.ru/community/housedesign/post/1730833
Источник фото: https://www.kv-design.ru/portfolio/kvartiry/3-komn-kvartira-jasenevo/
Источник фото: https://www.kv-design.ru/portfolio/kvartiry/3-komn-kvartira-jasenevo/

Серия П-30

Источник фото: https://novostroev.ru/other/doma-serii-p-30/?
Источник фото: https://novostroev.ru/other/doma-serii-p-30/?

Возведение этих домов велось с 1972 вплоть до 2005 год. Их характерными чертами были крайне улучшенная теплоизоляция (считаются самыми тёплыми «брежневскими» домами) и современные лоджии, встроенные вглубь фасада. Лоджии иногда располагались на торцевых стенах зданий. На каждом этаже, как правило, находилось по 4 больших квартиры. Варианты включали от 1-ой до 4-х комнат, с планировками, где комнаты были отделены друг от друга. В квартирах были конечно же раздельные санузлы, а также крайне просторные кухни. На кухнях предусматривалось место для установки стиральной машины. Наиболее распространены дома в Москве, тогда как в других городах СССР встречались реже. Недостаток – отсутствие грузопассажирского лифта. Преимущество – очень хорошая теплоизоляция за счёт 3-х слойной конструкции наружных панелей толщиной 340 мм. Советские люди, даже зимой, могли ходить по квартире что называется «в одних трусах». Нередко зимой даже поступали жалобы на «перетоп» и 30 °с жару в квартирах.

Источник фото: https://okna-e.ru/ceny/okna-v-panelnyh-domah/p-30/
Источник фото: https://okna-e.ru/ceny/okna-v-panelnyh-domah/p-30/
Источник фото: https://dzen.ru/a/ZBNmJthKlE8Gatdy
Источник фото: https://dzen.ru/a/ZBNmJthKlE8Gatdy

Источник фото: https://okna-e.ru/ceny/okna-v-panelnyh-domah/p-30/
Источник фото: https://okna-e.ru/ceny/okna-v-panelnyh-domah/p-30/
Источник фото: https://realty.rbc.ru/news/58e34d8f9a794712e4338641
Источник фото: https://realty.rbc.ru/news/58e34d8f9a794712e4338641

Источник фото: https://www.youtube.com/watch?app=desktop&v=fXFld39gGqw
Источник фото: https://www.youtube.com/watch?app=desktop&v=fXFld39gGqw
Источник фото: https://ru.pinterest.com/pin/749286456741254186/
Источник фото: https://ru.pinterest.com/pin/749286456741254186/

Серия П-44

Источник фото: https://artokno.ru/balkony-po-tipu-doma/balkon-v-dom-p-44-go/
Источник фото: https://artokno.ru/balkony-po-tipu-doma/balkon-v-dom-p-44-go/

Серия строилась с 1979 по 2001 гг. Дома достигали 8, 16 или 17 этажей. Данные жилые дома, включавшие от 2-х до 3-х подъездов и больше, имели Г-образную или П-образную планировку. Характерной особенностью этой серии являлось наличие просторного грузового лифта. Квартиры также отличались просторными изолированными комнатами, весьма большой кухней и конечно раздельным санузлом (не во всей серии). Серия П-44, строившаяся преимущественно в Москве (также встречается в других городах, включая Ярославль и Нижневартовск), была абсолютно новой разработкой советских инженеров-строителей. Квартиры в этих домах также отличались более удобной планировкой и помещением для консьержа в подъездах. Это делало их более привлекательными для жильцов. Недостаток – маленькие балконы. Преимущества – высокие потолки – 2,68 м и крайне просторная прихожая, в которой нередко даже размещали полноценные трельяжи, мини-стенки, кресла и пр. Тепло- и звукоизоляции – удовлетворительные.

Источник фото: https://r-a-n.ru/nowo/p44_1.htm
Источник фото: https://r-a-n.ru/nowo/p44_1.htm
Источник фото: https://dzen.ru/a/WzNA0RRs1gCpIODD
Источник фото: https://dzen.ru/a/WzNA0RRs1gCpIODD

Источник фото: https://okna-e.ru/ceny/okna-v-panelnyh-domah/p-44/
Источник фото: https://okna-e.ru/ceny/okna-v-panelnyh-domah/p-44/
Источник фото: https://www.drive2.ru/b/523666603057873044
Источник фото: https://www.drive2.ru/b/523666603057873044
Источник фото: https://ru.pinterest.com/pin/585819863999540437/
Источник фото: https://ru.pinterest.com/pin/585819863999540437/

Источник фото: https://ru.pinterest.com/pin/585819863999540437/
Источник фото: https://ru.pinterest.com/pin/585819863999540437/

Серия 1-515/9М

Источник фото: https://www.mvk-service.com/pereplanirovka-kvartir/varianty/1-115-9m/
Источник фото: https://www.mvk-service.com/pereplanirovka-kvartir/varianty/1-115-9m/

Отличительной особенностью этих домов было полное отсутствие однокомнатных квартир и наличие 4-х комнатных. Конструкция зданий включала продольные несущие стены. Для наружных стен использовались трехслойные панели толщиной 30 см, для внутренних – гипсобетон. Крыши нередко имели характерный небольшой двускатный уклон. Основным плюсом является простая возможность изменения планировки. Жильцы могли без опасений перемещать внутренние перегородки. Среди недостатков можно выделить несколько тесноватые кухни – площадью всего 6 кв. метров. Также отмечается недостаток дневного освещения в квартирах из-за маленьких окон.

Источник фото: https://www.mvk-service.com/pereplanirovka-kvartir/varianty/1-115-9m/
Источник фото: https://www.mvk-service.com/pereplanirovka-kvartir/varianty/1-115-9m/
Источник фото: https://octagon.media/istorii/kak_glava_sledstvennogo_komiteta_na_strojku_xodil.html
Источник фото: https://octagon.media/istorii/kak_glava_sledstvennogo_komiteta_na_strojku_xodil.html

Источник фото: https://www.mvk-service.com/pereplanirovka-kvartir/varianty/1-115-9m
Источник фото: https://www.mvk-service.com/pereplanirovka-kvartir/varianty/1-115-9m
Источник фото: https://forums.goha.ru/showthread_84_1_p158900196
Источник фото: https://forums.goha.ru/showthread_84_1_p158900196

Источник фото: http://kispoeva.ru/2017/02/15/13-02-2017-перепланировкадомасерии1-5159ш/
Источник фото: http://kispoeva.ru/2017/02/15/13-02-2017-перепланировкадомасерии1-5159ш/

Нужно сказать, что советское домостроение отличалось строгим соблюдением так называемых СНиПов (строительных норм и правил) что крайне положительно сказывалось на качестве и характеристике зданий и сооружений. Кроме того, в отличии от современных домов, которые строятся во многом непродуманно, при возведении домов в СССР были точно просчитаны эргономические характеристики. Квартиры были спроектированы так, чтобы максимально обеспечить комфортное и безопасное в них проживание. В отличии от современных домов, учитывались нормы площади, инсоляции (освещения) и пр.

Читайте также:





СССР
2461 интересуется