Добавить в корзинуПозвонить
Найти в Дзене
Земельный Эксперт

Разбор проекта

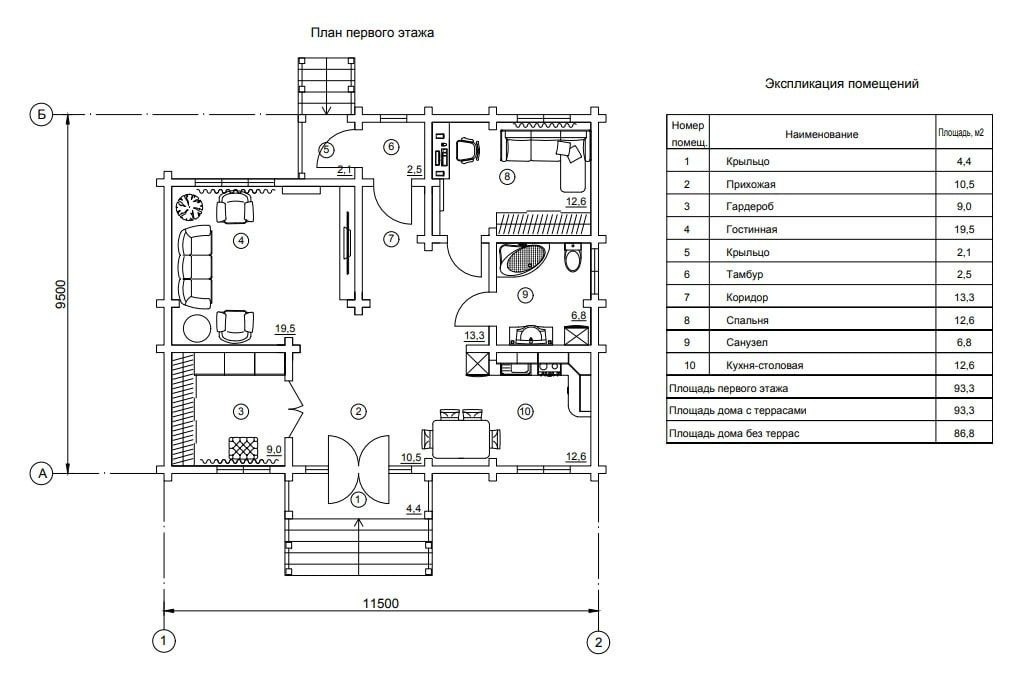
Разбор проекта Давно не разбирали проекты домов. Вот недавно попался. Проект одноэтажный. Сделана попытка зонирования пространства, но результат , с моей точки зрения, получился "не очень". Что смущает больше всего - не понятно зачем 2 входа если нет нормальной террасы - разнесена зона гостиной и кухни, причем площадь между ними никак нельзя использовать кроме как для прохода, т.е. это коридор но без стен - есть тамбур, который не очень актуален при фактически "однокомнатном" доме и при этом гардеробная с противоположной стороны, в том числе от спальни - нет технического помещения ( хотя бы закоулка) - нет кладовки Вроде проект из тех что мне нравятся, ( 1 этаж, небольшая площадь) но попытка зонировать пространство , как мне кажется, не удалась. #Земельнаяэкспертиза Земэкс

Разбор проекта

Давно не разбирали проекты домов.

Вот недавно попался. Проект одноэтажный.

Сделана попытка зонирования пространства, но результат , с моей точки зрения, получился "не очень".

Что смущает больше всего

- не понятно зачем 2 входа если нет нормальной террасы

- разнесена зона гостиной и кухни, причем площадь между ними никак нельзя использовать кроме как для прохода, т.е. это коридор но без стен

- есть тамбур, который не очень актуален при фактически "однокомнатном" доме и при этом гардеробная с противоположной стороны, в том числе от спальни

- нет технического помещения ( хотя бы закоулка)

- нет кладовки

Вроде проект из тех что мне нравятся, ( 1 этаж, небольшая площадь) но попытка зонировать пространство , как мне кажется, не удалась.

#Земельнаяэкспертиза

Земэкс

-2
-3