Найти в Дзене

Уже не первый год замечаю, что под Новый год случается всплеск по количеству проектов

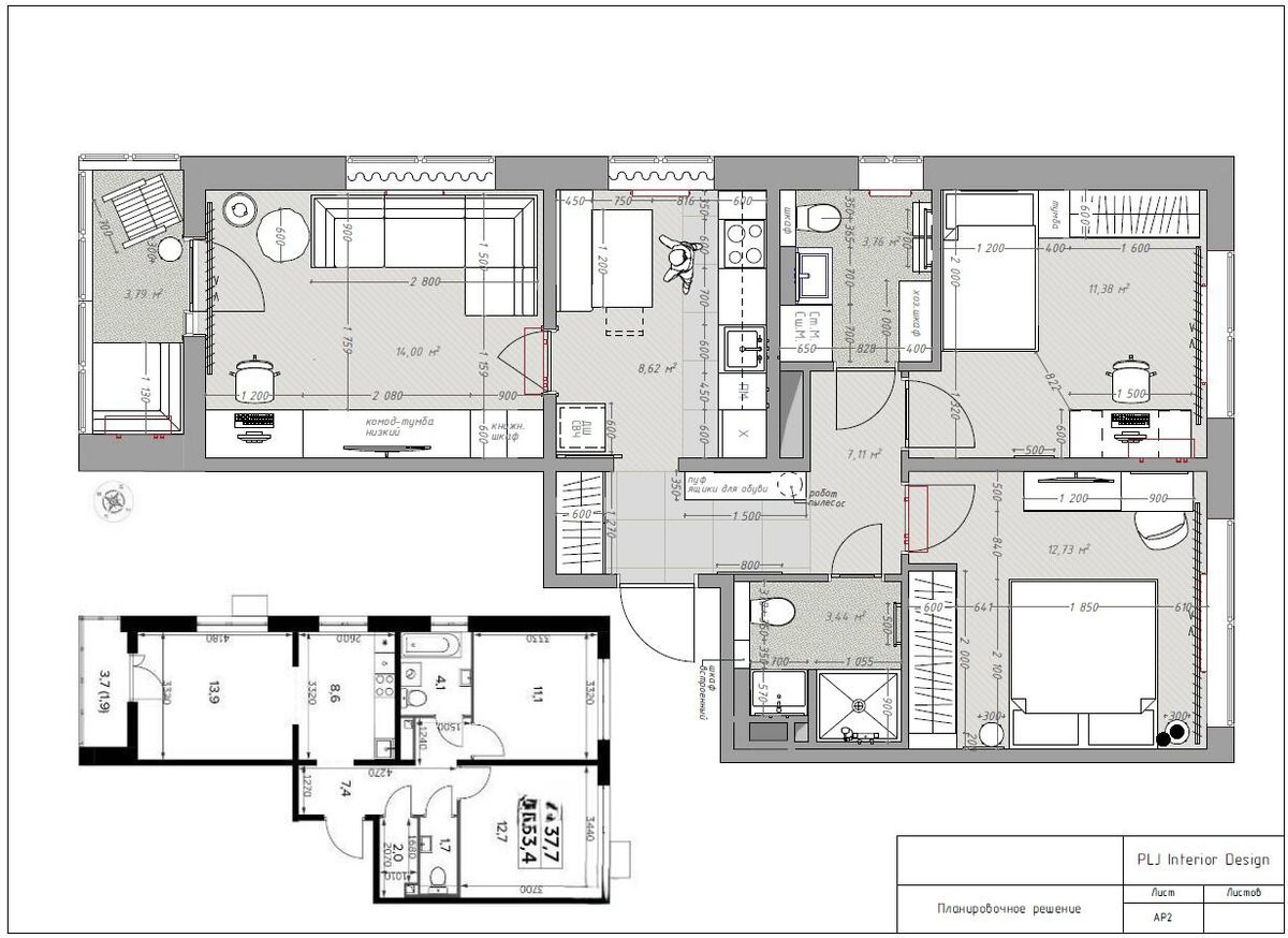
А я думала, все уже подарками и праздничным меню занимаются 🌝 Меня, собственно, от этих дел проектами и отвлекают 😂 Ну а я поделюсь с вами этими результатами. Типовая квартира ПИК, планировка для семьи из 3 человек. Что было важно: ✅ выделить рабочее место ✅ место для родительских посиделок вдвоем ✅ чтобы запахи из кухни не расходились по квартире ✅ хозяйственный уголок Что получилось - показываю на плане и в видео обзоре 🙌🏼 #проекты #планировка

Уже не первый год замечаю, что под Новый год случается всплеск по количеству проектов. А я думала, все уже подарками и праздничным меню занимаются 🌝

Меня, собственно, от этих дел проектами и отвлекают 😂

Ну а я поделюсь с вами этими результатами. Типовая квартира ПИК, планировка для семьи из 3 человек.

Что было важно:

✅ выделить рабочее место

✅ место для родительских посиделок вдвоем

✅ чтобы запахи из кухни не расходились по квартире

✅ хозяйственный уголок

Что получилось - показываю на плане и в видео обзоре 🙌🏼

#проекты #планировка