Найти в Дзене

Одноэтажный дом с панорамным остеклением

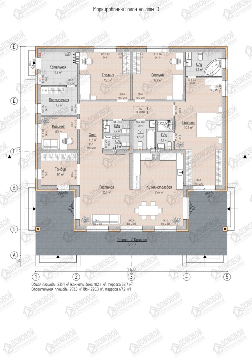
Дом построен ООО "СК "Домовой" (г. Краснодар) Ключевые характеристики Общая площадь помещений: 169,3 м2 Жилая площадь: 122,7 м2 Площадь с террасами/крыльцом: 195,3 м2 Этажность: 1 этаж Стиль: Современный, с акцентом на естественное освещение и связь с природой. 📐 Описание планировки Проект представляет собой продуманный одноэтажный дом с зонированием для комфортной жизни большой семьи. Общая и Гостевая зона (Справа) Кухня-столовая (25,0 м2): Просторная зона с прямым выходом на Террасу, идеально подходящая для семейных обедов и приемов. Гостиная (23,6 м2): Отдельное, но при этом легко интегрируемое пространство для отдыха. Из гостиной также предусмотрен выход на Террасу. Терраса (52,7 м2): Обширная крытая зона для отдыха на свежем воздухе, объединяющая выходы из кухни-столовой и гостиной. Приватная и Зона Отдыха (Слева) Спальня 1 (30,7 м2): Главная спальня с большой площадью и примыкающим собственным С/У (6,2 м2), что обеспечивает максимальный комфорт и приватность. Спальня 2 (16,7 м2)
Оглавление
Дом построен ООО "СК "Домовой" (г. Краснодар)
Дом построен ООО "СК "Домовой" (г. Краснодар)

Ключевые характеристики

  • Общая площадь помещений: 169,3 м2
  • Жилая площадь: 122,7 м2
  • Площадь с террасами/крыльцом: 195,3 м2
  • Этажность: 1 этаж
  • Стиль: Современный, с акцентом на естественное освещение и связь с природой.

📐 Описание планировки

Проект представляет собой продуманный одноэтажный дом с зонированием для комфортной жизни большой семьи.

Общая и Гостевая зона (Справа)

  • Кухня-столовая (25,0 м2): Просторная зона с прямым выходом на Террасу, идеально подходящая для семейных обедов и приемов.
  • Гостиная (23,6 м2): Отдельное, но при этом легко интегрируемое пространство для отдыха. Из гостиной также предусмотрен выход на Террасу.
  • Терраса (52,7 м2): Обширная крытая зона для отдыха на свежем воздухе, объединяющая выходы из кухни-столовой и гостиной.

Приватная и Зона Отдыха (Слева)

  • Спальня 1 (30,7 м2): Главная спальня с большой площадью и примыкающим собственным С/У (6,2 м2), что обеспечивает максимальный комфорт и приватность.
  • Спальня 2 (16,7 м2) и Спальня 3 (16,7 м 2): Две симметричные комнаты, расположенные рядом. Идеально подходят для детей или гостей.
  • Второй С/У (4,5 м 2): Дополнительный санузел, обслуживающий две другие спальни и общую зону.

Техническая и Входная зона

  • Тамбур (8,1 м 2): Обеспечивает тепловой барьер и место для верхней одежды.
  • Холл (16,3 м2): Просторный и светлый центр дома, соединяющий все зоны.
  • Котельная (6,2 м2): Отдельное техническое помещение с собственным внешним входом.
  • Постирочная (7,2 м2): Удобное помещение для бытовых нужд.
  • Кабинет (6,3 м2): Идеально подходит для работы на дому, может использоваться как гостевая комната.

✨ Преимущества проекта

  1. Панорамное остекление: Большие окна обеспечивают максимальный приток естественного света, визуально расширяя пространство и создавая ощущение единства с окружающей средой.
  2. Эффективное зонирование: Четкое разделение на общую, приватную и техническую зоны.
  3. Удобный выход на террасу: Терраса площадью более 50 м2 становится логичным продолжением кухни-столовой и гостиной.
  4. Комплекс технических помещений: Наличие котельной, постирочной и тамбура делает дом полностью функциональным.
  5. Современный внешний вид: Фасад из кирпича в сочетании с панорамными окнами и темной крышей создает стильный, современный и респектабельный облик (подтверждается прилагаемым фото).
Проект разработан архитектором ООО "СК "Домовой" (г. Краснодар)
Проект разработан архитектором ООО "СК "Домовой" (г. Краснодар)

Свяжитесь с нами по вопросам строительства, проектирования и ипотеки:

Новые проекты и новости строительного рынка публикуем ежедневно, подпишитесь на канал "Домовой"!

  • +7 (928) 460-60-04 клиентский менеджер
  • +7 (989) 27-36-888 главный специалист по ипотечному кредитованию
  • 8 (800) 23-478-23 звонок по РФ бесплатный
  • офис г. Краснодар, ул. Тепличная, 62/1, корп. 5
  • наш сайт https://domovoy.online/
Домовой - строительство домов и проектирование | Дзен