Найти в Дзене

Виртуальные 3D схемы и планы судна

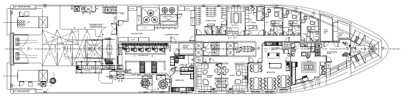
Компания ИБИКОН представляет Вам информацию о новых технологиях, применяемых в морском судоходстве. Схемы (чертежи) общего расположения судна - изображения расположения судовых помещений, основных механизмов и оборудования. Виртуальный план судна - интерактивная схема, которая позволяет пользователю онлайн увидеть все помещения судна, включая палубы, трюма, машинное отделение, ходовую рубку, каюты. Виртуальные судовые схемы и планы создаются в формате 3D, с возможностью интерактивного взаимодействия (например, открытия панорамы с главной палубы на корме). Интерактивные элементы управления позволяют осуществить просмотр с любого ракурса в формате 360. Все пространство вокруг выбранной точки, может приближать и отдалять изображение, и переходить от панорамы к панораме - от одной точки съемки к другой - от помещения к помещению. Пользователь может быстро переместиться в любую точку на судне, при этом с полной геометрией помещения и воссозданием точной панорамы (например, панорама машинног

Компания ИБИКОН представляет Вам информацию о новых технологиях, применяемых в морском судоходстве.

Схемы (чертежи) общего расположения судна - изображения расположения судовых помещений, основных механизмов и оборудования.

-2

Виртуальный план судна - интерактивная схема, которая позволяет пользователю онлайн увидеть все помещения судна, включая палубы, трюма, машинное отделение, ходовую рубку, каюты.

-3

Виртуальные судовые схемы и планы создаются в формате 3D, с возможностью интерактивного взаимодействия (например, открытия панорамы с главной палубы на корме).

-4

Интерактивные элементы управления позволяют осуществить просмотр с любого ракурса в формате 360. Все пространство вокруг выбранной точки, может приближать и отдалять изображение, и переходить от панорамы к панораме - от одной точки съемки к другой - от помещения к помещению.

-5

Пользователь может быстро переместиться в любую точку на судне, при этом с полной геометрией помещения и воссозданием точной панорамы (например, панорама машинного отделения.

-6

Просмотр доступен на любых устройствах, включая компьютер, планшет, мобильный телефон и VR-гарнитура без установки специальных программ.

-7

Судовые панорамы 360° - максимально приближенная к действительности демонстрация пространства, которая открывает возможность для виртуальных посещений, детальных обзоров помещений или открытых пространств на борту.

Преимущества использования виртуальных планов судна:

· Эффект присутствия, например для берегового персонала;

· Пользователь имеет возможность самостоятельно управлять просмотром;

· Возможность показать все помещение целиком и без ограничений - от палубы до подволока;

· Существенно большая информативность по сравнению с фотографиями;

· Возможность виртуального исследования (освидетельствования или сюрвея);

· Интерактивное управление просмотром;

· Предоставление информационных подсказок при изучении судовых зон;

· Ознакомление нового судового и берегового персонала с судном;

· Визуальное понимание расположения и особенностей судовых устройств и механизмов при техническом обслуживании;

· Визуальный осмотр ремонтируемого или модернизируемого оборудования;

· Использование в случае аварийных ситуаций при подготовке рекомендаций по действиям судового экипажа;

· Интеграция с программным обеспечением по технической эксплуатации судна;

· Подготовка отчёта для продажи/ покупки судна;

· Визуализация мест расположения материалов/изделий в Перечне опасных материалов (Inventory of Hazardous Materials - IHM);

· Отчётность по аварийному случаю для страховых компаний.

Виртуальные судовые 3D планы - быстрое недорогое решение, позволяющее показать судно без необходимости личного присутствия.

Мы предоставляем услуги, которые можно сочетать и адаптировать с целью решения Ваших конкретных проблем, что позволит упростить процесс внедрения и сертификации.

Являясь Вашим бизнес- партнером мы поможем Вам:

· создать конкурентные преимущества на основе повышения производительности и эффективности бизнес- процессов Вашей организации;

· добавить ценность Вашему бизнесу посредством внедрения устойчивых деловых практик;

· минимизировать сбои в Ваших бизнес- процессах посредством эффективного управления рисками.

Презентация виртуального плана судна представлена далее...