Добавить в корзинуПозвонить
Найти в Дзене

Фундамент под Дубльдом: бетонные сваи и металлический двутавр

Специалисты КЗС возвели свайный фундамент для дома «Каштан 77» от компании «Дубльдом». Фундамент спроектирован по техническим требованиям автора проекта и включает 36 забивных бетонных свай с обвязкой металлическим двутавром. Делимся подробностями. Дом «Каштан», иллюстрация с сайта dubldom.ru Жилая площадь дома — 77,3 кв. м, площадь застройки — 120 кв. м. Каркас из массива хвойных пород по всему периметру утеплен минеральной ватой толщиной 200 мм. К дому примыкает просторная веранда. Во внешней отделке для крыши и боковых фасадов используется профилированный лист в черном цвете; торцевая стена и стена с боковым остеклением оформлены деревом. В доме открытая кухня-гостиная без столбов, две спальни, кабинет с отдельным входом, один санузел. Планировка дома Дом модульный, его производят на заводе, а затем доставляют и собирают на участке заказчика. Фундамент заказчик готовит самостоятельно — он должен четко соответствовать требованиям, установленным компанией-застройщиком. Согласно этим т

Специалисты КЗС возвели свайный фундамент для дома «Каштан 77» от компании «Дубльдом». Фундамент спроектирован по техническим требованиям автора проекта и включает 36 забивных бетонных свай с обвязкой металлическим двутавром. Делимся подробностями.

Дом «Каштан», иллюстрация с сайта dubldom.ru
Дом «Каштан», иллюстрация с сайта dubldom.ru

Жилая площадь дома — 77,3 кв. м, площадь застройки — 120 кв. м.

Каркас из массива хвойных пород по всему периметру утеплен минеральной ватой толщиной 200 мм. К дому примыкает просторная веранда. Во внешней отделке для крыши и боковых фасадов используется профилированный лист в черном цвете; торцевая стена и стена с боковым остеклением оформлены деревом.

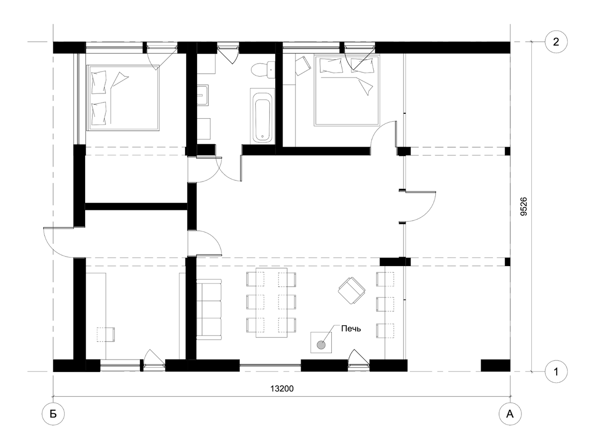
В доме открытая кухня-гостиная без столбов, две спальни, кабинет с отдельным входом, один санузел.

Планировка дома
Планировка дома

Дом модульный, его производят на заводе, а затем доставляют и собирают на участке заказчика. Фундамент заказчик готовит самостоятельно — он должен четко соответствовать требованиям, установленным компанией-застройщиком.

Согласно этим требованиям, необходимо было использовать либо винтовые сваи диаметром 108 мм, либо забивные сечением 150 × 150 мм. Заказчик сделал выбор в пользу забивных бетонных свай. Сваи должны быть размещены в полном соответствии со схемой застройщика. Максимальный перепад фундамента по уровню не должен превышать 5 мм.

Требования прописаны и для обвязки: она выполняется металлическим двутавром, который приваривается к оголовкам свай.

План фундамента, разработанный застройщиком
План фундамента, разработанный застройщиком

Всего для фундамента потребовалось 36 забивных бетонных свай сечением 150 × 150 мм. Длина свай — 5 м, она подобрана в соответствии с параметрами грунта на участке. На сваи закрепили оголовки с пластинами размером 250 × 250 мм, а затем установили и приварили двутавровую балку согласно схеме.

На картинке с планировкой дома в гостиной можно увидеть печь. Это легкая отдельно стоящая печь-камин. Если бы проектом была предусмотрена стационарная каменная печь, под нее потребовался бы отдельный свайный фундамент внутри фундамента дома (не связанный с основным).

-4

Специалисты «Королёвского завода свай» выполнили разметку свайного поля и забили сваи для дома в соответствии со схемой. Для монтажа забивных свай использовали мини сваебойную машину, которую иначе называют «копёр».

После забивки свай на них закрепили оголовки и смонтировали обвязку в соответствии с техническими требованиями застройщика.

 
 
-6

Готовый свайный фундамент можно нагружать сразу. А так как сборка модульных домов, как правило, проходит очень быстро, то уже в течение нескольких недель на фундаменте может появиться готовый для жизни дом.

Монтировать сваи можно круглый год. Не ждите весны, закажите фундамент сейчас. Связаться с менеджером и заказать расчет стоимости — kzs.ru.