Добавить в корзинуПозвонить
Найти в Дзене
Пикабу

Почему трещат стены?

Еще один поучительный случай из практики обследования. Простейшее по конструктиву здание - кирпичные несущие стены, фундамент из блоков ФБС, пустотные плиты перекрытия и покрытия. Один этаж и техподполье. Казалось бы, стоять такому зданию 100 лет без проблем? Нифига, только не у меня в подборке. Первая мысль - может эти трещины для устрашения посетителей, чтоб легче анализ кала было сдавать? Здание-то как раз действующая лаборатория. Но вроде в санпинах такой методики не описано, поэтому зайдем со строительно-технической стороны. Трещин много, они сквозные, персонал даже жалуется, что сильно дует зимой, приходится заклеивать. Летом, правда, сплошная польза от них - дополнительная вентиляция. Шутки шутками, но это все плохие факторы. И особенно плохой - трещины пересекают отдельные кирпичи. То есть, в слабость раствора и плохую гидроизоляцию кровли, влекущую протечки в кладку, поверить нельзя (судя по внешнему виду здания). Неужели силовые? И при этом еще и нестабилизированные - маячки

Еще один поучительный случай из практики обследования. Простейшее по конструктиву здание - кирпичные несущие стены, фундамент из блоков ФБС, пустотные плиты перекрытия и покрытия. Один этаж и техподполье. Казалось бы, стоять такому зданию 100 лет без проблем? Нифига, только не у меня в подборке.

Первая мысль - может эти трещины для устрашения посетителей, чтоб легче анализ кала было сдавать? Здание-то как раз действующая лаборатория. Но вроде в санпинах такой методики не описано, поэтому зайдем со строительно-технической стороны. Трещин много, они сквозные, персонал даже жалуется, что сильно дует зимой, приходится заклеивать. Летом, правда, сплошная польза от них - дополнительная вентиляция. Шутки шутками, но это все плохие факторы. И особенно плохой - трещины пересекают отдельные кирпичи. То есть, в слабость раствора и плохую гидроизоляцию кровли, влекущую протечки в кладку, поверить нельзя (судя по внешнему виду здания). Неужели силовые? И при этом еще и нестабилизированные - маячки рвутся. Но откуда взяться нагрузке в таком-то конструктиве? Оговорюсь - никакого тяжелого оборудования нет.

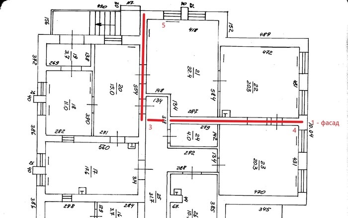
Начинаем анализировать расположение трещин. Их много, но самые большие кучкуются в зоне двух стен (отмечал не все):

-2

Ага, а стены эти - несущие. Пора спуститься в техподполье. И когда я туда спускался, то вспомнил, что его высота по техпаспорту - 1, 8 м. То есть пройти-то я пройду, но потолок будет в нескольких сантиметрах над макушкой. А фактически высота помещения сильно больше - в районе 2, 2 м. Зацепка.

-3

Смотрим на стены помещения (помещение обведено синим штрихпунктиром) - а там все откопано! Даже низ блоков ФБС местами над грунтом висит. А на эти фундаменты как раз и опираются наиболее дефектные стены 1-го этажа (которые красными линиями на схемах отмечены).

Как так получилось? Переносимся в конец 90-х. Разруха, нищета, а в лаборатории - свободное техподполье, которое можно сдавать коммерсам! Только вот неурядица - высота маленькая, надо углубить. И углубили. Уровень чистого пола стал в одном помещении (синий штрих-пунктир на схеме) чуть ниже подошвы фундамента, причем без всяких усилений. А как понимаете, под уровнем чистого пола еще сантиметров 10 было выкопано и залито стяжкой. Вроде бы мелочь, но структура грунта нарушена. Может и стояло бы здание так и дальше, да в 2004 в Калининградской области случилось землетрясение. Скорее всего оно и дало толчок к началу трещинообразования. В середине 10-х люди обеспокоились - трещины стали видны, ближе к 20-м маячки клеили. Почему-то не помогло. Я же на объекте был в 2022 году. И сорока лет здание нормально не отстояло - год постройки 1988...

Напоследок - пара забавных фото:

Пост автора zloradnyexpert.

Читать комментарии на Пикабу.