Добавить в корзинуПозвонить
Найти в Дзене
Владислас

Функциональная двухкомнатная квартира для небольшой семьи в доме 1876 года постройки

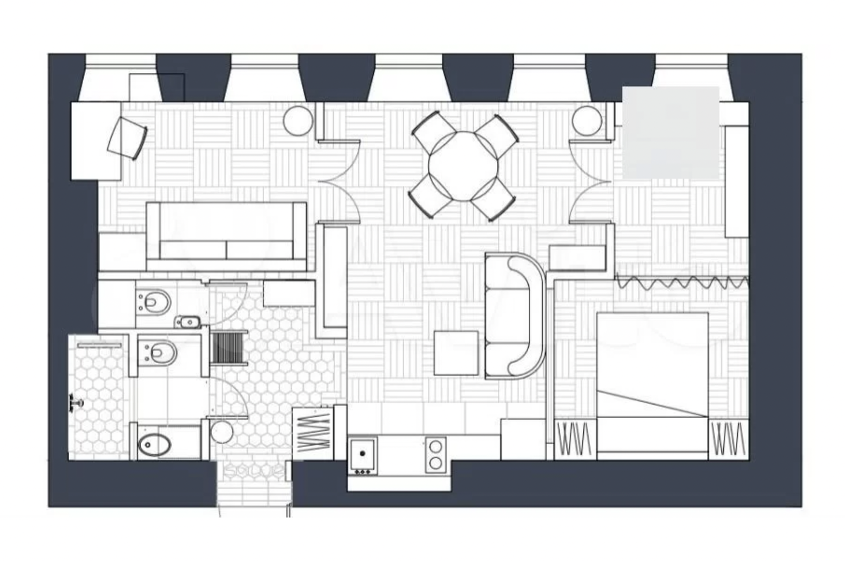
Сегодня мы посмотрим квартиру, которая находится по адресу: Санкт-Петербург, Озерной пер., 2–4. Этот дом был построен в 1876 году архитектором А. И. Вальбергом, и сам по себе уже вызывает огромное уважение. Его стены видели смену эпох, разные поколения петербуржцев и, безусловно, несут на себе культурный отпечаток XIX века. Но сегодня мы будем говорить не о том, кто жил здесь сто лет назад, а о том, как современные жильцы переосмыслили историческую планировку и создали функциональное пространство внутри старого дома, превратив его в уютную и продуманную квартиру для небольшой семьи. Но перед эти вам стоит подписаться на этот канал, ведь тут я каждый день показываю невероятную недвижимость Санкт-Петербурга и России! Мы поднимаемся на третий этаж, и здесь располагается квартира площадью всего 45 м². Но несмотря на такую компактную площадь, в ней есть: две отдельные комнаты, просторная кухня-гостиная, раздельные санузлы и даже потайная комната, о которой мы поговорим чуть позже. Планировк
Оглавление

Сегодня мы посмотрим квартиру, которая находится по адресу: Санкт-Петербург, Озерной пер., 2–4. Этот дом был построен в 1876 году архитектором А. И. Вальбергом, и сам по себе уже вызывает огромное уважение. Его стены видели смену эпох, разные поколения петербуржцев и, безусловно, несут на себе культурный отпечаток XIX века.

Но сегодня мы будем говорить не о том, кто жил здесь сто лет назад, а о том, как современные жильцы переосмыслили историческую планировку и создали функциональное пространство внутри старого дома, превратив его в уютную и продуманную квартиру для небольшой семьи. Но перед эти вам стоит подписаться на этот канал, ведь тут я каждый день показываю невероятную недвижимость Санкт-Петербурга и России!

-2

Маленькая по площади, но удивительно функциональная

Мы поднимаемся на третий этаж, и здесь располагается квартира площадью всего 45 м². Но несмотря на такую компактную площадь, в ней есть: две отдельные комнаты, просторная кухня-гостиная, раздельные санузлы и даже потайная комната, о которой мы поговорим чуть позже. Планировка — одна из тех, которые любишь с первого взгляда: ничего лишнего, всё продумано.

-3

Комфортная прихожая — маленькая, но удаленькая

Начинается квартира с небольшой, но очень рациональной прихожей. Здесь стоит шкаф с зеркальными дверцами, благодаря которым пространство визуально расширяется. Далее — необычно оформленная стена, которая не просто украшает, но и добавляет ощущение естественного «светового окна».

-4

Места действительно немного, но важно помнить: в старом фонде зачастую пространство перед входной дверью юридически не входит в общую площадь квартиры. Поэтому потеря квадратного метра здесь не ощущается как минус. Из прихожей можно попасть:

  • в кухню-гостиную,
  • в раздельные санузлы,
  • и в секретную комнату, которая спрятана буквально на потолке.
-5

Компактные, но продуманные раздельные санузлы

Здесь — два небольших, но очень функциональных санузла. Ванная комната включает: душевую кабину, стиральную машину, маленькую, но удобную раковину.

-6

Рядом — туалет, в котором есть: гигиенический душ, раковина, и главное — естественное освещение. Свет в туалет попадает через маленький проём, выложенный прозрачной плиткой — редчайшее решение, которое выглядит и красиво, и практично.

-7

Потайная комната — пространство с огромным потенциалом

Над санузлами расположена небольшая ниша — секретная комната, попасть в которую можно по лестнице. И вариантов её использования масса:

  • Игровая зона для ребёнка — маленький мир, где можно прятаться, строить «домики» и разыгрывать свои фантазии.
  • Мини-лаунж для взрослого — поставить туда PlayStation, повесить маленький экран, и это станет личным уголком отдыха.
  • Хранение сезонных вещей — если квартира для пары, без детей.
-8

Кухня-гостиная — сердце квартиры

Из прихожей мы попадаем в просторную кухню-гостиную.

-9

Это помещение — полноценное объединённое пространство, очень светлое, с двумя окнами и большим количеством интерьерных деталей.

-10

Здесь есть всё необходимое для комфортной жизни:

  • стильный кухонный гарнитур,
  • диван с журнальным столиком,
  • встроенный стеллаж с телевизором,
  • обеденный стол на четырёх человек.
-11

Интерьер выглядит уютным, современным и функциональным, но при этом не давит, оставаясь воздушным и свободным.

-12

Первая жилая комната — светлое пространство с двумя окнами

Из кухни-гостиной можно попасть в две независимые комнаты. И первая комната — маленькая, но очень светлая благодаря двум окнам. Это пространство идеально подходит для: детской, рабочего кабинета или гостевой комнаты.

-13

Интересно и то, что именно через эту комнату солнечный свет попадает в потайную комнату, прихожую и туалет.

-14

Цветовое решение верхней части стен — мягкий жёлтый — создаёт ощущение тепла и лёгкости.

-15

Вторая жилая комната — уютная спальня

Из первой комнаты анфиладные двери ведут в ещё одно помещение — основную спальню. Здесь есть: компактные шкафы, зона, где девушка может привести себя в порядок, и сама полноценная спальня. Помещение выглядит уединённым, спокойным и очень «домашним».

-16

Эта квартира — настоящий пример того, как можно сохранить историчность старого фонда и одновременно создать современный уют, функциональность и комфорт.

www.avito.ru

45 метров превратились в полноценное пространство для небольшой семьи: две комнаты, кухня-гостиная, раздельные санузлы, потайная комната, продуманный свет — всё это говорит о внимании к деталям и грамотном подходе к планировке.

-17

Я работаю риелтором в Санкт-Петербурге и подбираю для своих клиентов такие же атмосферные, функциональные и продуманные квартиры. Благодаря моему юридическому образованию, я не только нахожу уникальные варианты, но и провожу полную юридическую проверку, а также сопровождаю сделки, обеспечивая безопасность и чистоту покупки.

Если вы хотите найти квартиру с историей, атмосферой и современным комфортом — обращайтесь ко мне. Я подберу для вас именно то, что станет вашим настоящим домом. Ознакомиться с моей профессиональной деятельностью вы можете в моем телеграм канале (в поиске: Алексейчук Владислас, qr-код ниже):

-18

Если вам интересна тема недвижимости, архитектуры и реальных историй о квартирах — подписывайтесь и наслаждайтесь: