Найти в Дзене
Жить красиво

Мой личный челлендж: как я впихнула невпихуемое в санузел 4 м² (и чему научилась на своих ошибках)

Знакомо чувство, когда самый сложный клиент — это ты сама? Я, дизайнер интерьеров, прошла через это, перепланируя свой собственный санузел площадью 3,97 «квадрата». Казалось бы, вот он, шанс создать идеальное пространство без компромиссов! Но на практике оказалось, что мои запросы были подобны списку желаний для квартиры в три раза больше. Я всегда начинаю с технического задания. И для себя выписала всё, что должно было уместиться в этой крохе: · Обязательный минимум: унитаз, раковина, душевая кабина (в моем случае — не смешанная с ванной, душ). · Дополнительно, и это было сложнее: полноразмерная стиральная и сушильная машины. · И еще изюминка: скрытый от глаз туалет для кошки. И конечно, всевозможные системы хранения для туалетной бумаги, косметики, средств для ухода, фена, плойки и прочих аксессуаров, без которых не обходится мое утро. Казалось, это нереально. Но несколько необычных фишек позволили мне совершить чудо. Вот итоговый план помещения: Фишка №1: Волшебная перегород

Знакомо чувство, когда самый сложный клиент — это ты сама? Я, дизайнер интерьеров, прошла через это, перепланируя свой собственный санузел площадью 3,97 «квадрата». Казалось бы, вот он, шанс создать идеальное пространство без компромиссов! Но на практике оказалось, что мои запросы были подобны списку желаний для квартиры в три раза больше.

Изначальное помещение санузла
Изначальное помещение санузла

Я всегда начинаю с технического задания. И для себя выписала всё, что должно было уместиться в этой крохе:

· Обязательный минимум: унитаз, раковина, душевая кабина (в моем случае — не смешанная с ванной, душ).

· Дополнительно, и это было сложнее: полноразмерная стиральная и сушильная машины.

· И еще изюминка: скрытый от глаз туалет для кошки.

И конечно, всевозможные системы хранения для туалетной бумаги, косметики, средств для ухода, фена, плойки и прочих аксессуаров, без которых не обходится мое утро.

Казалось, это нереально. Но несколько необычных фишек позволили мне совершить чудо.

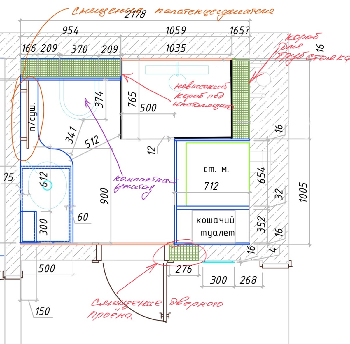
Вот итоговый план помещения:

Планировочное решение
Планировочное решение

Фишка №1: Волшебная перегородка, которая сэкономила мне 14 см

Самым важным конструктивным решением стало формирование душевой кабины и зоны для техники. Мне нужна была максимально тонкая перегородка, которая выдержит влагу. И я нашла идеальный материал — компакт-плита.

Раньше я предлагала его клиентам, но сама не пробовала. А зря! Это плита с 100% влагостойкостью, она очень прочная и покрытая HPL-пластиком. В моем случае — с текстурой черного мрамора. И главное — ее толщина всего 12 мм!

Что бы было, построй я стену из гипсокартона? Минимум 13-15 см с учетом облицовки плиткой. Эти спасенные сантиметры позволили вписать тот самый шкаф без дна, где теперь прячется кошачий туалет. Борьба шла за каждый миллиметр, и компакт-плита стала моим главным оружием.

Фишка №2: Колонна-невидимка, которую я создала сама

Рядом с раковиной мне нужно было много места для хранения. Здесь был спроектирован отдельный мебельный элемент, установленный на столешницу — колонну с выкатными ящиками. Я разместила в ней весь свой арсенал для ухода за лицом и волосами.

А чтобы скрыть все это богатство от глаз, мы установили на лицевую часть колонны зеркало. Получился и гримерный столик, и супервместительный шкаф.

Сложность, с которой столкнулась: механизм открывания имел уродливый пластиковый замок оранжевого цвета. Так как полки были выше уровня глаз, это бросалось в глаза. Решение — мы разделили пространство за зеркалом на две секции и закрыли их фасадами. Теперь одна зона для лица, вторая — для волос, и никаких видимых механизмов.

Мебельные фишки
Мебельные фишки

Фишка №3: Сантехнический ребус с унитазом и полотенцесушителем

Я сдвинула унитаз на допустимые 1 метр 40 см от правой стены, расположив его в углу. А с полотенцесушителем пришлось проявить смекалку вместе с сантехником. Мы заложили подводку в штробу в стене и развернули ее на угол, чтобы «перевезти» полотенцесушитель с правой стены на левую.

Это было рискованно, но сработало! В результате шкаф над инсталляцией, который и так планировался, теперь постоянно прогрет. Это не то чтобы желанный бонус, а скорее побочный эффект. Но он диктует свои правила: теперь я храню там туалетную бумагу, бумажные полотенца и другие вещи, не чувствительные к перепадам температур. Кстати, при ловком складывании полотенец и халатов, можно размещать их там, и доставать после душа хорошо-прогретый домашний текстиль😁

Итоговые визуализации (до пролетов 🫣😁)
Итоговые визуализации (до пролетов 🫣😁)

А теперь о «косяках»: пролёты бывают, но мы на них учимся

Идеальных ремонтов не бывает, и мой — не исключение. Расскажу о своих промахах, чтобы вы их не повторили.

1. Размеры душевого подиума. Я упустила момент, и строители сделали душевой подиум на 5 см больше. В моей битве за сантиметры это была катастрофа! Сместилась инсталляция, унитаз придвинулся ближе, исчез запланированный удобный проход. А еще мой индивидуально выбранный компактный унитаз сняли с производства, и пришлось отказываться от подвесной полки для фена. Вывод: контролируйте каждый этап, даже если доверяете бригаде.

2. Дверь душевой кабины. Я неверно спроектировала открывание и не учла, куда будет стекать вода с двери. Не был сформирован дополнительный бортик. Теперь после каждого душа мы кладем на пол впитывающее полотенце. Мелко, но бесит. Вывод: продумывайте не только эстетику, но и физику процессов — куда течет вода?

3. Светильник у зеркала. Я разместила светильник слишком близко к зеркалу. Ничего критичного, но если бы сдвинула его чуть ближе ко входу, было бы идеально. И да, я так и не повесила крючки для полотенец, для которых было заложено место. Вывод: сначала представь всю рутину, а потом финализируй план.

Итог: что вынесла для себя и советую вам:

Несмотря на все «косяки», мой санузел получился максимально эффективным для моих запросов. Я доказала себе, что даже на 4 м² можно уместить все: от душевой кабины до прачечной и постирочной.

Главный вывод: даже опытной бригаде нельзя доверять на слово. Если вы экономите на авторском надзоре, будьте готовы лично проверять ВСЕ. Ваш проект — только ваша ответственность.

Надеюсь, мой опыт и лайфхаки (компакт-плита, колонна-невидимка, сантехнические хитрости) окажутся вам полезны. Планируйте смело, но помните о мелочах — именно они создают идеальный комфорт.

Вопрос к вам, друзья!

Хотели бы вы увидеть реальные фотографии этого санузла? И мне, как перфекционисту, очень интересен ваш взгляд: для вас важнее увидеть «живой» результат, когда ремонт завершён на 80%, вещи расставлены, и пространство обжито, но без идеальной картинки? Или же лучше дождаться полного, стерильного финала, когда каждая деталь снята для портфолио, но в этом нет ощущения настоящей жизни? Поделитесь вашим мнением в комментариях — ваш голос поможет мне решить, показывать ли уже то, что есть, или подготовить идеальную съёмку позже.

#ремонт #дизайнинтерьера #санузел #планировкасанузла #малогабаритнаяванная #дизайнванной #экономиместа #хранениевсанузле #душеваякабина #ремонтвсанузле #интерьер #квартира #советыподизайну #личныйопыт #опытдизайнера