Найти в Дзене
GOOD HOUSE

😍Дом из мечты в реальность: как выбрать проект, чтобы потом не переделывать

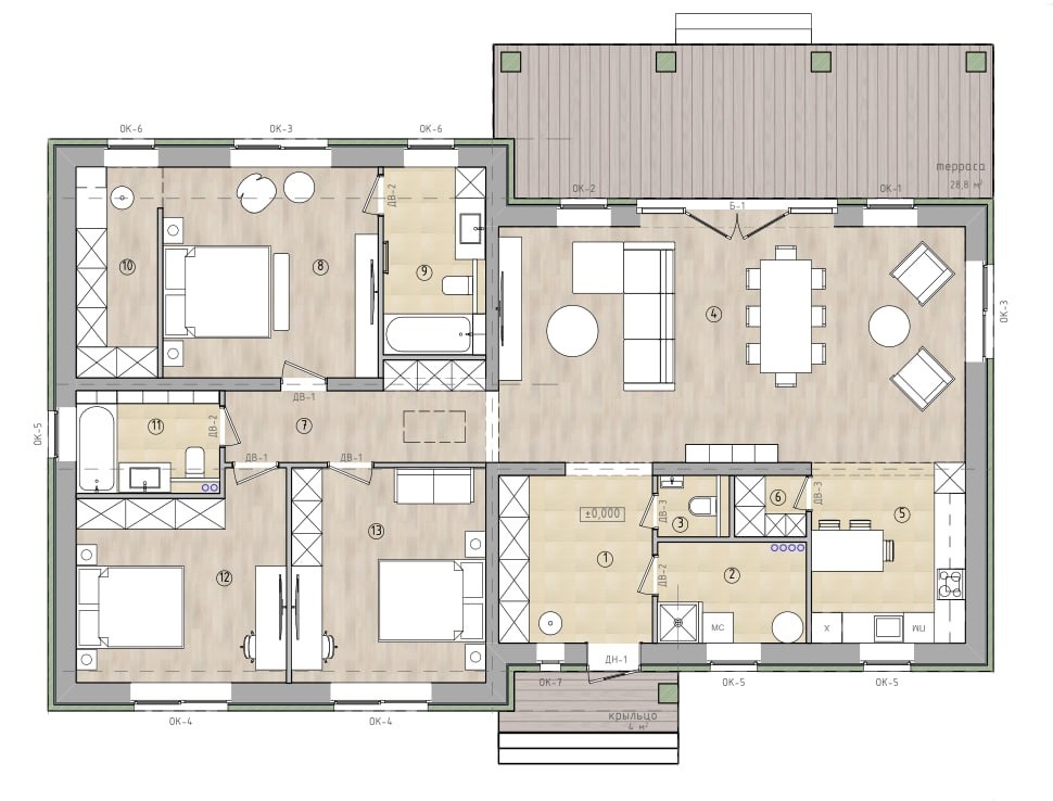
😍Дом из мечты в реальность: как выбрать проект, чтобы потом не переделывать? Ошибки на этапе выбора проекта обходятся дороже всего. Поэтому подходить к этому нужно не по картинке, а по реальным задачам. ⠀ 🔹 Начните с потребностей. Сколько спален нужно? Нужен ли кабинет? Где будет зона отдыха? Проект должен отражать ваш образ жизни, а не просто «нравиться визуально». 🔹 Учитывайте участок. Рельеф, сторона света, расположение соседей — всё влияет на планировку, освещённость и комфорт. 🔹 Сравните варианты материалов и бюджета. Иногда изменение формы крыши или площади экономит сотни тысяч без потери функциональности. ⠀ 🏠 Грамотный проект — это не шаблон с сайта, а продуманный до мелочей план под конкретную семью и участок. Поэтому важно обсудить всё с архитектором, прежде чем утверждать финальный вариант.

😍Дом из мечты в реальность: как выбрать проект, чтобы потом не переделывать?

Ошибки на этапе выбора проекта обходятся дороже всего. Поэтому подходить к этому нужно не по картинке, а по реальным задачам.

🔹 Начните с потребностей. Сколько спален нужно? Нужен ли кабинет? Где будет зона отдыха? Проект должен отражать ваш образ жизни, а не просто «нравиться визуально».

🔹 Учитывайте участок. Рельеф, сторона света, расположение соседей — всё влияет на планировку, освещённость и комфорт.

🔹 Сравните варианты материалов и бюджета. Иногда изменение формы крыши или площади экономит сотни тысяч без потери функциональности.

🏠 Грамотный проект — это не шаблон с сайта, а продуманный до мелочей план под конкретную семью и участок. Поэтому важно обсудить всё с архитектором, прежде чем утверждать финальный вариант.