Найти в Дзене

Новая жизнь старого дома №3. Очень большая пристройка к маленькому дому.

Продолжаем тему реконструкции старых домов. Вот первые две статьи 👇 В комментариях к первой статье читатель небезосновательно заметил, что иногда проще новый дом построить, чем старый переделать. Сегодня рассмотрим как раз случай, когда в результате реконструкции дом стал больше втрое. И ниже опишем ситуации когда, несмотря на кажущуюся нецелесообразность, всё же выгоднее пристроить много, чем построить заново. Площадь существующего дома без террасы чуть больше 80 м2. ❌ Заказчику этого катастрофически не хватает - нужны как минимум 5 спален, большая каминная с диванами и гостиная со столом на 6-8 персон. Кроме того нужна крытая терраса для посиделок и котельная с нормативной площадью. ❌ Также не устраивает простецкий внешний вид садового домика 90-х годов. Планы дома до реконструкции 👇 ✔️ Площадь дома увеличилась в 2.5 раза! 1-ый этаж существующего дома перепланировали. В контуре его стен устроили удобную прихожую с просторной гардеробной зоной, душевую переместили ближе к лестнице
Оглавление

Продолжаем тему реконструкции старых домов.

Вот первые две статьи 👇

В комментариях к первой статье читатель небезосновательно заметил, что иногда проще новый дом построить, чем старый переделать.
Сегодня рассмотрим как раз случай, когда в результате реконструкции дом стал больше втрое. И ниже опишем ситуации когда, несмотря на кажущуюся нецелесообразность, всё же выгоднее пристроить много, чем построить заново.

Отправная точка

Площадь существующего дома без террасы чуть больше 80 м2.

❌ Заказчику этого катастрофически не хватает - нужны как минимум 5 спален, большая каминная с диванами и гостиная со столом на 6-8 персон. Кроме того нужна крытая терраса для посиделок и котельная с нормативной площадью.

❌ Также не устраивает простецкий внешний вид садового домика 90-х годов.

Планы дома до реконструкции 👇

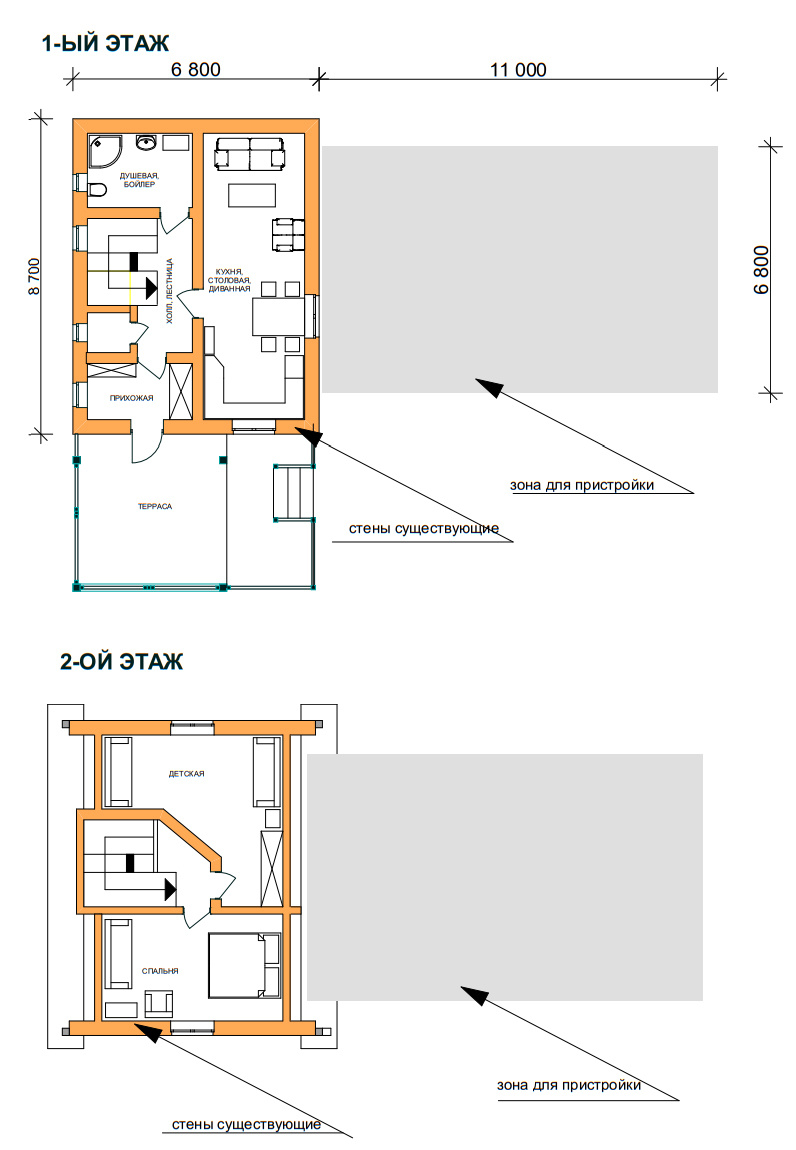
Для расширения дома намечена территория с габаритами 11 х 6.8 метров. Всё недостающее предлагается разместить в пристройке в пределах этой зоны.
Для расширения дома намечена территория с габаритами 11 х 6.8 метров. Всё недостающее предлагается разместить в пристройке в пределах этой зоны.

Новая планировка

✔️ Площадь дома увеличилась в 2.5 раза!

1-ый этаж существующего дома перепланировали. В контуре его стен устроили удобную прихожую с просторной гардеробной зоной, душевую переместили ближе к лестнице и в ней дополнительно разместили оборудование для стирки. Рядом с душевой устроили гостевую спальню.

А на первом этаже пристройки - расположили каминную с крупными диванами и кухню - с гостиной зоной и столом на 8 персон. Во втором этаже пристройки запланировали еще две спальни, ванную и кладовую.

Ниже планы дома после реконструкции 👇

-3

Предполагается, что на всём протяжении стройки хозяева будут иметь возможность находиться в доме, поддерживать в порядке сад и контролировать строительство. Спальня первого этажа станет бытовкой строителей на весь период работ.

Когда выгоднее пристроить чем снести

Реконструировать или заменить - классическая дилемма, с которой сталкиваются многие домовладельцы. И в большинстве случаев увеличение старого дома (надстройка или пристройка) действительно оказывается выгоднее, чем снос и строительство нового.

Вот основные причины, почему это так:

1. Экономия на фундаменте и основных конструкциях

Это главный аргумент в пользу расширения.

· Фундамент: Уже существует и, как правило, имеет запас прочности. Заливка нового фундамента — это одна из самых дорогих и трудоемких частей любого строительства (15-30% от общей стоимости).

· Стены: Коробка дома уже стоит. Вам не нужно тратиться на возведение несущих стен "с нуля".

· Крыша: При надстройке этажа, конечно, придется делать новую крышу, но вы экономите на разборке старой и вывозе мусора. В случае пристройки кровля просто продлевается.

2. Уже подключенные коммуникации

Это огромная экономия денег, времени и нервов.

· Подвод коммуникаций: В старом доме уже есть электричество, вода, канализация, газ (если был), интернет. Чтобы подключить все это к новому дому, потребуется:

· Получить технические условия (ТУ).

· Оплатить подключение (это может быть очень дорого, особенно если магистрали далеко).

· Провести все сети по участку (рытье траншей, трубы, кабели).

· При расширении вы просто делаете разводку от существующих точек, что значительно дешевле и проще.

3. Сохранение существующей инфраструктуры участка

· Ландшафтный дизайн: У вас уже есть взрослые деревья, кустарники, газон, система полива, дорожки. Строительство нового дома неминуемо уничтожит большую часть этого.

· Забор, ворота, зона отдыха: Все это остается на своих местах.

4. Налоговые и юридические льготы (в некоторых случаях)

· В некоторых регионах действуют пониженные налоговые ставки или льготы для реконструкции, в отличие от нового строительства.

· Важный нюанс: Увеличение площади дома может привести к увеличению кадастровой стоимости и, как следствие, налога на недвижимость. Но при новом строительстве налог также будет начисляться на всю стоимость нового объекта.

5. Меньшие сроки реализации

· Реконструкция: Процесс, как правило, идет быстрее, так как отсутствуют этапы нулевого цикла (фундамент) и подвода коммуникаций.

· Новое строительство: Занимает много времени от проектирования и получения разрешения до полного цикла работ "под ключ".

6. Сохранение "истории" и места

· Нематериальный, но очень важный для многих фактор. Вы сохраняете память, уникальную атмосферу места, привычный вид из окон, просто любимые стены и душу дома. Новый дом — это всегда "перезагрузка" и потеря некой идентичности.

✔️ Почитать о том, как выполняются проекты реконструкции в ИНВАПОЛИС, можно на странице нашего сайта проектирование реконструкции