Найти в Дзене

Что такое свободная планировка квартиры в новостройке

Застройщики активно рекламируют квартиры со «свободной планировкой» — пустое пространство без стен, где можно реализовать любые идеи. Звучит заманчиво, но есть важный нюанс: юридически такого понятия не существует. Границы помещений всё равно прописаны в документах, и их придётся учитывать при ремонте. Читать полную версию статьи с примерами проектов Свободная планировка — это квартира без возведённых перегородок, представляющая собой единое пространство. Иногда застройщик обозначает границы помещений трассировкой из блоков или оставляет только несущие пилоны и санузел. Ключевой момент: в техническом паспорте БТИ или выписке ЕГРН есть чёткие границы между помещениями. Они обозначены пунктиром или выделением функциональных зон и имеют юридическую силу. Любое отклонение от плана в выписке ЕГРН — это перепланировка, которая требует согласования. Даже если вы решите не возводить все перегородки из документов, это всё равно изменение планировки. На квартиры со свободной планировкой распрост
Оглавление

Застройщики активно рекламируют квартиры со «свободной планировкой» — пустое пространство без стен, где можно реализовать любые идеи. Звучит заманчиво, но есть важный нюанс: юридически такого понятия не существует. Границы помещений всё равно прописаны в документах, и их придётся учитывать при ремонте.

Читать полную версию статьи с примерами проектов

Что скрывается за термином «свободная планировка»

Свободная планировка — это квартира без возведённых перегородок, представляющая собой единое пространство. Иногда застройщик обозначает границы помещений трассировкой из блоков или оставляет только несущие пилоны и санузел.

Ключевой момент: в техническом паспорте БТИ или выписке ЕГРН есть чёткие границы между помещениями. Они обозначены пунктиром или выделением функциональных зон и имеют юридическую силу.

Любое отклонение от плана в выписке ЕГРН — это перепланировка, которая требует согласования. Даже если вы решите не возводить все перегородки из документов, это всё равно изменение планировки.

Главные ограничения при ремонте

-2

На квартиры со свободной планировкой распространяются стандартные правила перепланировки:

«Мокрые» зоны — кухня не может находиться над жилой комнатой соседей снизу, санузел нельзя располагать над кухней или комнатой.

Кухня-столовая — допустимо объединить с комнатой, но плита и мойка должны остаться в кухонной зоне.

Лоджия — полное объединение запрещено. Компромисс — установить дверь из двухкамерного стеклопакета.

Минимальные площади: кухня — 8 м², комната в однокомнатной — 14 м², в многокомнатной одна комната 16 м², остальные минимум 8 м².

Получить консультацию по перепланировке квартиры

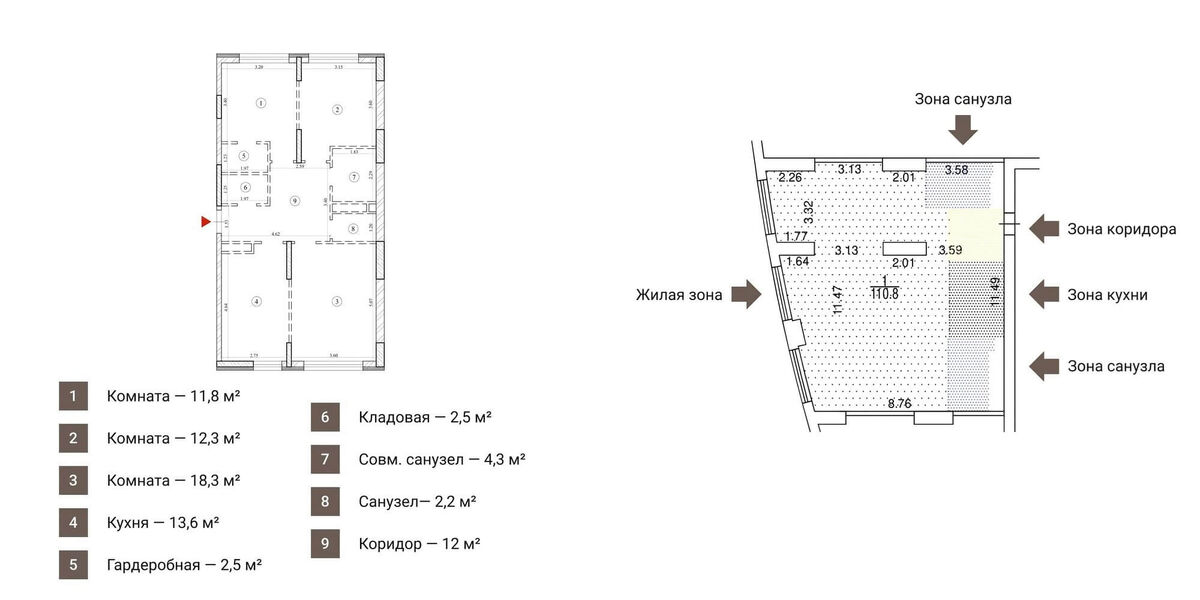
Реальный пример перепланировки

-3

Трёхкомнатная квартира 79,5 м² в доме 2023 года. Застройщик обозначил границы блоками в один ряд.

Что сделали: демонтировали блоки, организовали кухню-столовую на площади комнаты и гардеробной, бывшую кухню превратили в кабинет, создали два совмещённых санузла.

-4
Не затягивайте с перепланировкой — соседи могут опередить вас и расширить свои помещения. Тогда ваши возможности для изменений сократятся.

Как оформить перепланировку

  1. Подготовить документы: техпаспорт БТИ, выписку ЕГРН, поэтажные планы
  2. Заказать проектную документацию в компании с допуском СРО
  3. Подать заявление через портал mos.ru
  4. Получить разрешение и провести ремонт по проекту
  5. Вызвать инспектора для приёмки работ
  6. Зарегистрировать изменения в Росреестре

Выводы

Свободная планировка даёт больше возможностей, но не означает полную свободу действий. Границы помещений существуют в документах, и менять их можно только с согласованием. Перед началом работ проверьте техпаспорт и строительные чертежи, соблюдайте правила расположения «мокрых» зон и минимальные площади помещений.

Читать полную версию с детальными требованиями и примерами