Добавить в корзину
Позвонить
Найти в Дзене
Войти
Маша Шейх
456 подписчиков
Подписаться
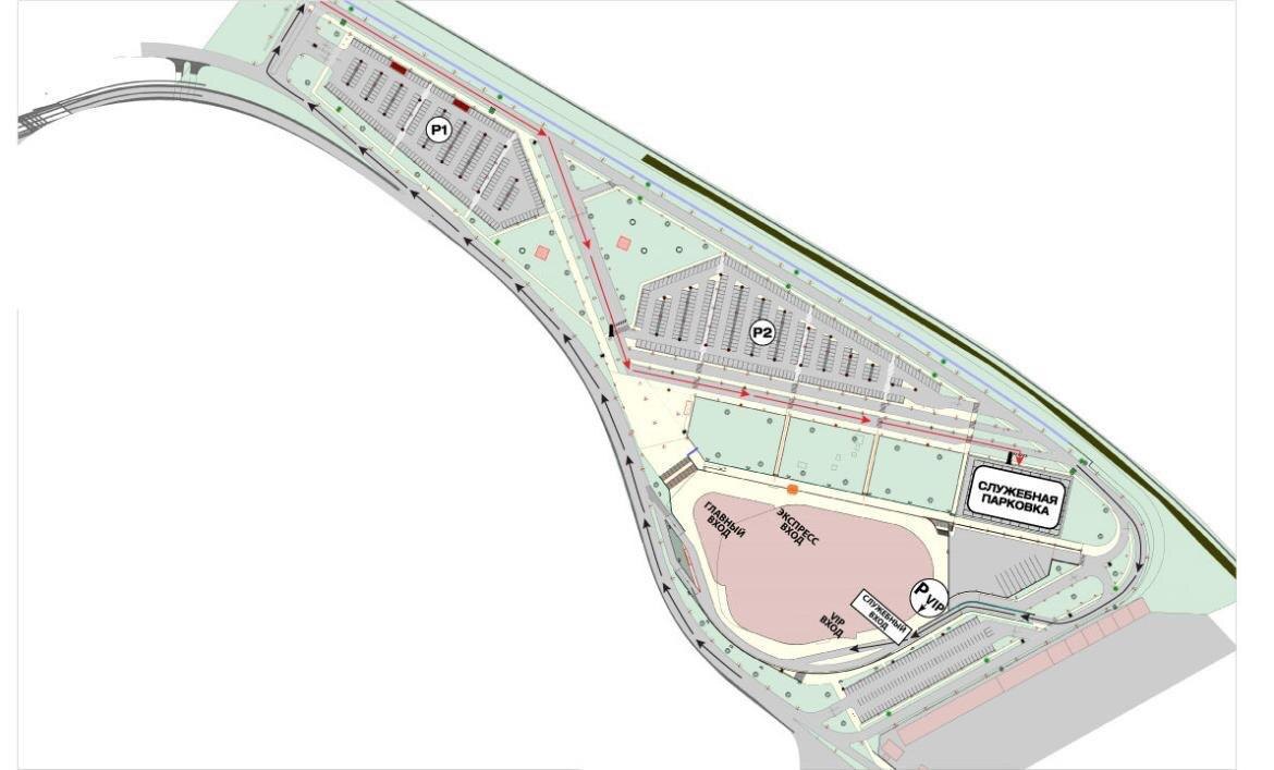
У вас вип парковка
22 октября 2025
22 окт 2025
У вас вип парковка
У вас вип парковка
...
Читать далее
У вас вип парковка
3
1725883881.988.1776783584839.13991