Добавить в корзинуПозвонить
Найти в Дзене
Realt.by

Показываем самую недорогую квартиру в популярном ЖК рядом с парком. Квадрат стоит более 2800 долларов

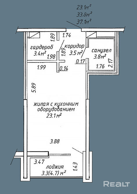
Сегодня мы решили посмотреть минимальные цены на готовые квартиры в жилом комплексе «Парк Челюскинцев», что расположен в районе проспекта Независимости и улицы Макаёнка. Подчеркнем, что нас интересует исключительно жилье с ремонтом. В этот раз самым недорогим вариантом оказалась просторная студия с неброским, но стильным интерьером. Отметим, что за год подобные квартиры подорожали на 15-20 тысяч долларов. Общая площадь этого жилья составляет 37 квадратов. В квартире все готово к переезду новых жильцов. Тут сделана качественная отделка, есть мебель и техника. Планировка квартиры разделена на зону кухни и спальни-гостиной. Напольное покрытие в зоне кухни – плитка, а в комнате – ламинат, стены выровнены и окрашены в светлый тон, потолок матовый натяжной с потолочными светильниками. Центральное место в студии занимает встроенная кухня с барным столом, декоративной подсветкой рабочей зоны, доводчиками и техникой (индукционная варочная поверхность, духовой шкаф, вытяжка и холодильник). Помим

Сегодня мы решили посмотреть минимальные цены на готовые квартиры в жилом комплексе «Парк Челюскинцев», что расположен в районе проспекта Независимости и улицы Макаёнка. Подчеркнем, что нас интересует исключительно жилье с ремонтом. В этот раз самым недорогим вариантом оказалась просторная студия с неброским, но стильным интерьером. Отметим, что за год подобные квартиры подорожали на 15-20 тысяч долларов.

Общая площадь этого жилья составляет 37 квадратов. В квартире все готово к переезду новых жильцов. Тут сделана качественная отделка, есть мебель и техника.

-2

Планировка квартиры разделена на зону кухни и спальни-гостиной.

Напольное покрытие в зоне кухни – плитка, а в комнате – ламинат, стены выровнены и окрашены в светлый тон, потолок матовый натяжной с потолочными светильниками.

-4

Центральное место в студии занимает встроенная кухня с барным столом, декоративной подсветкой рабочей зоны, доводчиками и техникой (индукционная варочная поверхность, духовой шкаф, вытяжка и холодильник).

-5

Помимо кухни, квартира оснащена диваном со спальным местом, тумбой под TV и телевизором LG.

-6

Из интересного – атмосферная подсветка над плинтусом, розетки и выключатели Schneider черного цвета.

-7

В санузле есть ванная и стиральная машина. Здесь, а также в кухне, установлены датчики протечки воды. Для поддержания комфортной температуры в студии имеется кондиционер.

-8

Также в квартире организовали вместительную гардеробную комнату с выдвижными полками, стеллажами и штангами.

-9

К комнате примыкает просторная застекленная лоджия с шикарным видом на Парк Челюскинцев.

Рядом с домом расположена Детская железная дорога, Ботанический сад и парк Челюскинцев с большим количеством развлечений для детей и взрослых. Метро «Московская» также находится поблизости. А на проспекте Независимости можно найти магазины, кафе и другую инфраструктуру.

Стоимость этой квартиры составляет 104,9 тысячи долларов (2827 долларов за квадрат).

Кстати, еще год назад самые недорогие квартиры в «Парке Челюскинцев» предлагались по 89 тысяч долларов.