Добавить в корзинуПозвонить
Найти в Дзене
Mind Mesh

Исключение из группы в Revit

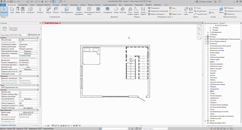
В данной статье рассмотрим исключение элементов по экземпляру из группы в Revit. Для этого для начала соберём группу. В нашем примере мы используем помещение, которое окружено стенами. Внутри него располагаются: элемент мебели (в данном случае - кровать) (1), лестница (2), витраж (3) и несколько проёмов (4) - окна и дверь. Чтобы собрать элементы в группу, необходимо выбрать их все рамкой и на панели инструментов нажать Создать группу. Обратите внимание, что в правом нижнем углу интерфейса Revit существует функция Выбрать закрепленные элементы. В зависимости от того включена она или нет, выбранные для создания группы элементы будут выглядеть по-разному, но на корректность процесса это никак не влияет. Скрепочки (1) на изображении выше показывают, что элементы, которые мы выбрали, закреплены, а на иконке (2) мы видим количество выбранных элементов.
При создании группы, нам необходимо задать ей имя. Мы советуем выбирать такое имя, которое вы сможете далее опознать в Диспетчере проекта, т
Оглавление

В данной статье рассмотрим исключение элементов по экземпляру из группы в Revit. Для этого для начала соберём группу. В нашем примере мы используем помещение, которое окружено стенами. Внутри него располагаются: элемент мебели (в данном случае - кровать) (1), лестница (2), витраж (3) и несколько проёмов (4) - окна и дверь.

Чтобы собрать элементы в группу, необходимо выбрать их все рамкой и на панели инструментов нажать Создать группу.

-2

Обратите внимание, что в правом нижнем углу интерфейса Revit существует функция Выбрать закрепленные элементы. В зависимости от того включена она или нет, выбранные для создания группы элементы будут выглядеть по-разному, но на корректность процесса это никак не влияет.

Функция “Выбрать закреплённые элементы”
Функция “Выбрать закреплённые элементы”
-4
Выбранные элементы с включенной функцией “Выбрать закреплённые элементы”
Выбранные элементы с включенной функцией “Выбрать закреплённые элементы”

Скрепочки (1) на изображении выше показывают, что элементы, которые мы выбрали, закреплены, а на иконке (2) мы видим количество выбранных элементов.

При создании группы, нам необходимо задать ей имя. Мы советуем выбирать такое имя, которое вы сможете далее опознать в Диспетчере проекта, так как из него можно повторно размещать группы.

-6

Если в семейство, которое мы собираем в группу, встроен Элемент узла (в данном случае это обозначение направления лестницы), то мы увидим следующее окно:

-7

При размещении группы из диспетчера, или при её копировании, элемент узла в новых экземплярах отображаться не будет.

-8

Исключение мебели

В созданной нами группе наведём курсор на элемент, который необходимо исключить, а затем, нажимая клавишу Tab, выделим его. Над ним появляется значок: Компонент группы. Щелчок на значке исключает его из экземпляра группы.

-9

Нажимаем на этот значок, нажимаем в пустое пространство и видим, что кровать из группы пропала. При этом, при наведении на группу, появляется абрис кровати.

-10

Ранее мы выделили слово “экземпляр”. Это связано с тем, что при копировании группы, в которой мы исключили элемент, данный элемент также будет исключён. Но если мы разместим из диспетчера проекта новый экземпляр группы, исключённых элементов в нём не будет.

-11

Чтобы вернуть этот элемент, можно выбрать группу и нажать на панели инструментов на Восстановить все исключённые, но в этом случае, появятся все элементы.

-12

В случае, когда нам необходимо выбрать конкретный исключённый элемент, можно выбрать его через клавишу Tab и нажать на появившейся значок Восстановление исключённого компонента группы в экземпляре группы.

-13

Исключение проёмов.

Исключим из группы одно окно и дверь. Мы видим, что пропали не только их условно-графические обозначения, но и сами их фактические проёмы.

-14

Восстановление работает точно также: либо выделяем группу и выбираем Восстановить все исключённые на панели инструментов, либо через клавишу Tab поштучно выделяем элементы и нажимаем на значок Восстановление исключённого компонента группы в экземпляре группы.

Исключение лестниц.

Если мы выбираем через клавишу Tab саму лестницу и нажимаем Исключить, у нас остаётся при этом ограждение. Поэтому рекомендуется исключать лестницы сразу с ограждениями.

-15

Ранее в статье говорилось о том, что в нашем примере в семействе настроена стрелочка, указывающая направление лестницы и являющаяся элементом узла. При попытке скрыть такую лестницу, мы получаем предупреждение:

-16

Оно говорит о том, что стрелочка была удалена. При восстановлении лестницы, обозначение направления отображаться не будет. Также в новых экземплярах группы, элемент узла лестницы будет отсутствовать.

Исключение витража.

Когда мы исключаем из группы витраж полностью, аналогично проёмам, он пропадает вместе с отверстием в стене:

-17

Но при попытке исключить какую-либо часть витража, например, один импост или одну панель (для выбора подобных элементов, функция Выбрать закреплённые элементы на нижней панели Revit должна быть включена), то Revit выдаст нам предупреждение: Элемент не может быть удалён или исключён из группы, т.к. он требуется для другого элемента в группе. То есть без этого элемента, витраж не может корректно отображаться, поэтому исключение частей подобного рода конструкций не является возможным.

-18

Исключение стены при наличии помещения.

Если мы исключаем из группы стену при наличии помещения, то мы видим, что это помещение перестаёт быть окружённым, как будто стены не существует. Помимо этого, можно заметить, что, при исключении стены, также пропадает проём - в нашем случае это дверь.

Когда мы восстанавливаем все исключённые элементы, всё возвращается, и помещение снова имеет корректный контур.

-19

Автор статьи - Кира Сосновская

-20