Найти в Дзене
Дмитрий Смирнов

Вопрос к любителям недвижимости

Вопрос к любителям недвижимости. Какой офис купить? Я сейчас в процессе большой сделки по выкупу этажа в бизнес-центре и задумался над тем, чтобы прибыль забрать квадратными метрами. Выбираю между двумя вариантами. Первый - офис 419. Идеальный прямоугольник, в котором 60 метров, без колонн, с хорошим видом и окнами в пол. Близко к лифтам и санузлу. Второй - офис 408. Метражом чуть меньше (дешевле на 1 млн). Находится в углу и у него фактически панорамное угловое остекление. Однако он дальше от мест общего пользования и окна выходят скорее на небольшую промку. Чтобы вы выбрали? Более понятный вариант, но чуть дороже или потенциально классный офис, который дешевле, но с нюансами. 📍Смирнов Дмитрий | Опыт инвестора 📍Сообщество единомышленников "Капитал"

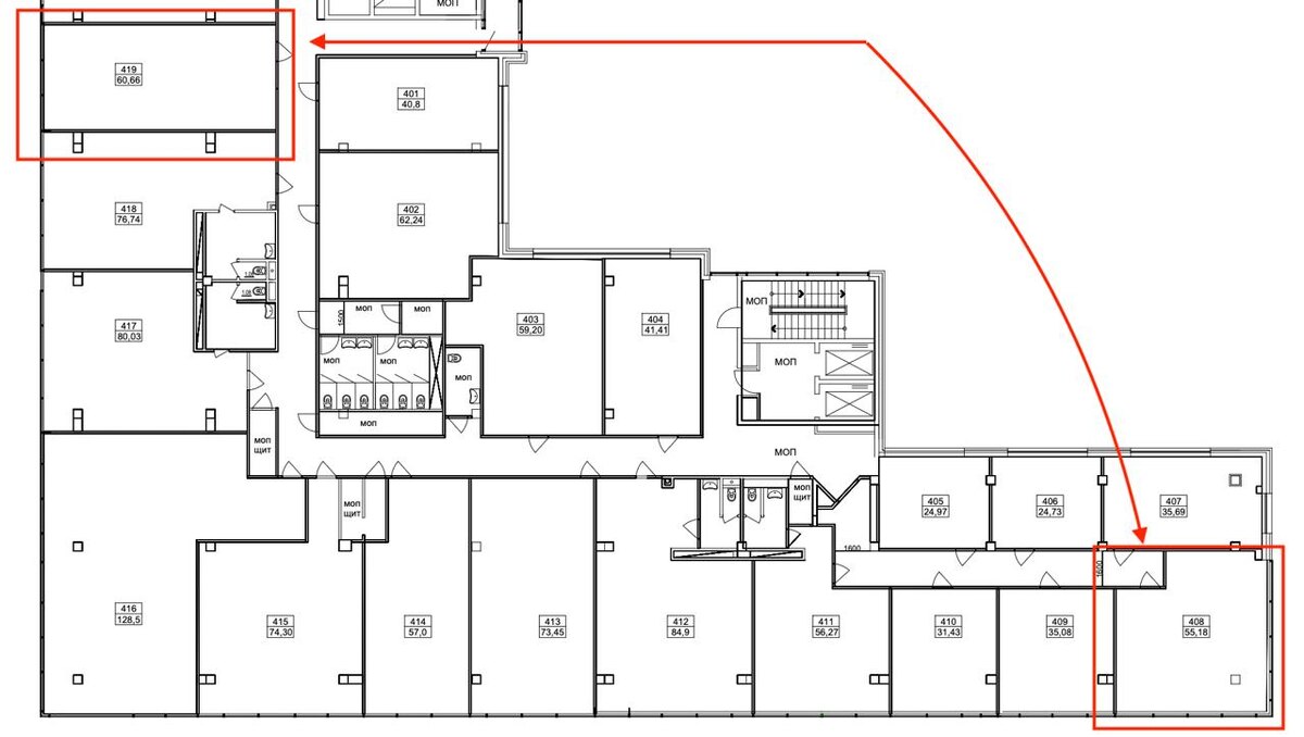
Вопрос к любителям недвижимости. Какой офис купить?

Я сейчас в процессе большой сделки по выкупу этажа в бизнес-центре и задумался над тем, чтобы прибыль забрать квадратными метрами. Выбираю между двумя вариантами.

Первый - офис 419. Идеальный прямоугольник, в котором 60 метров, без колонн, с хорошим видом и окнами в пол. Близко к лифтам и санузлу.

Второй - офис 408. Метражом чуть меньше (дешевле на 1 млн). Находится в углу и у него фактически панорамное угловое остекление. Однако он дальше от мест общего пользования и окна выходят скорее на небольшую промку.

Чтобы вы выбрали? Более понятный вариант, но чуть дороже или потенциально классный офис, который дешевле, но с нюансами.

📍Смирнов Дмитрий | Опыт инвестора

📍Сообщество единомышленников "Капитал"