Найти в Дзене
Prorooms

🆘КОНСУЛЬТАЦИЯ

🆘КОНСУЛЬТАЦИЯ🆘

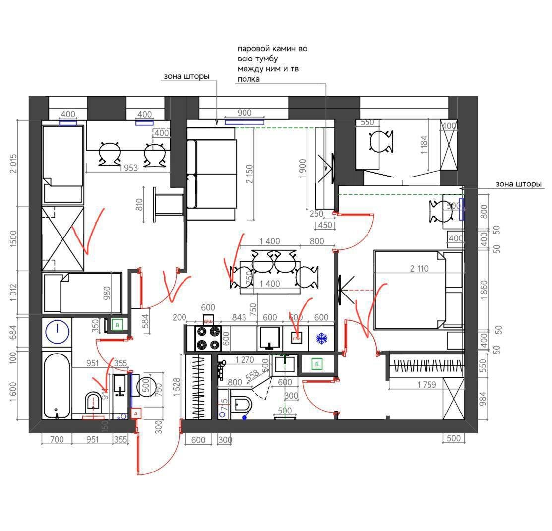
Сегодня разберу 3️⃣ планировки

От вас:

Присылаете свою планировку под этим постом в комментариях, которую нарисовали сами или ваш дизайнер (если вы сомневаетесь)

От меня:

Если я нахожу на планировке грубую ошибку - то напишу о ней (только об одной) в комментариях ⤵️

Если не успеете в этот раз, то в следующий обязательно 💙

—————————-

❗️Важно:

- Прислать планировку можно сегодня 30.09.2025 до 19.00

Разберу только 3 шт

- Формат - JPEG, чтобы сразу была видна картинка, не pdf

- Планировка - это план с расстановкой мебели!! Это не просто план со стенами

—————————-

📃Все про консультацию тут

💌Отзывы тут

📆Запись на консультацию в директ @mariavrozhkova

👍 Бонус тем, кто сегодня прислал свою планировку на разбор - при записи на платную консультацию до конца недели, вы получите от меня мою базу проверенных поставщиков с моими промокодами на скидку