Найти в Дзене

Как читать чертежи дома, если вы ничего не понимаете в «закорючках»

«Ничего не понимаю в ваших закорючках!» — честно признаётся заказчик, глядя на стопку чертежей своего будущего дома. А архитектор тяжело вздыхает и начинает объяснять в сотый раз, где что нарисовано. Знакомая картина? На самом деле чертежи — это не магические письмена, доступные только посвящённым. Это всего лишь карта вашего дома, только очень подробная. "Инструкция по его сборке и эксплуатации". У любой карты есть легенда, масштаб и ориентация по сторонам света. Научившись читать эти «дорожные знаки», вы сможете понять любой проект и говорить с архитектором на одном языке. Давайте разберёмся, как превратить загадочные линии и значки в понятную картину вашего будущего дома. Первый шок — количество листов. «Зачем столько бумаги для одного дома?». А затем второй шок — непонятные названия: «АР-02», «КМ-01», «ОВ-03». Но на самом деле всё логично. Генеральный план показывает, как дом расположен на участке. Здесь видно, где проходят дорожки, где стоянка для машины, куда стекает дождевая вод
Оглавление

«Ничего не понимаю в ваших закорючках!» — честно признаётся заказчик, глядя на стопку чертежей своего будущего дома. А архитектор тяжело вздыхает и начинает объяснять в сотый раз, где что нарисовано. Знакомая картина?

На самом деле чертежи — это не магические письмена, доступные только посвящённым. Это всего лишь карта вашего дома, только очень подробная. "Инструкция по его сборке и эксплуатации". У любой карты есть легенда, масштаб и ориентация по сторонам света. Научившись читать эти «дорожные знаки», вы сможете понять любой проект и говорить с архитектором на одном языке.

Давайте разберёмся, как превратить загадочные линии и значки в понятную картину вашего будущего дома.

Анатомия проекта: что лежит в папке с чертежами

Первый шок — количество листов. «Зачем столько бумаги для одного дома?». А затем второй шок — непонятные названия: «АР-02», «КМ-01», «ОВ-03». Но на самом деле всё логично.

Генеральный план показывает, как дом расположен на участке. Здесь видно, где проходят дорожки, где стоянка для машины, куда стекает дождевая вода и как далеко до соседского забора.

Планы этажей — это вид сверху, как будто вы парите под потолком на высоте примерно полтора метра. Видны стены, двери, окна, лестницы и все размеры. Самые важные листы для понимания планировки.

Фасады показывают, как дом выглядит снаружи — спереди, сзади и с боков. Здесь видны высоты, материалы отделки и расположение окон в «натуральном» виде.

Разрезы — это как если бы дом разрезали большим ножом и посмотрели на срез. Видно, как устроены перекрытия, где проходит утеплитель, какая высота потолков в каждой комнате.

Узлы и детали — увеличенные фрагменты сложных мест. Например, как стена соединяется с крышей или как устроен порог входной двери.

Инженерные планы — отдельные листы для вентиляции, отопления, сантехники и электрики. У каждого раздела свои символы и условные обозначения.

Ведомости — таблицы с расшифровками. Окно с маркировкой «ОК-03» на плане будет подробно описано в ведомости окон: размеры, материал, способ открывания.

Спецификации — подробные списки материалов и оборудования с точными параметрами (размеры, марки, стандарты, производители), по которым делают закупки и монтаж.

Пять шагов к пониманию любого листа

Шаг первый: изучаем «шапку». В правом нижнем углу листа всегда есть табличка с основной информацией: название листа, масштаб, дата выпуска, номер. Это как паспорт чертежа — сразу понятно, что перед вами.

Шаг второй: ищем север и масштаб. Стрелка севера покажет ориентацию по сторонам света — важно понимать, где будет всходить солнце. Масштаб показывает, во сколько раз уменьшен реальный размер.

Шаг третий: находим легенду. Это самая важная часть! Здесь расшифрованы все значки, штриховки и сокращения. Не понимаете, что означает волнистая линия или косая штриховка? Ответ в легенде.

Шаг четвёртый: определяем тип листа. План, фасад, разрез или инженерная схема? От этого зависит, как читать изображение и на что обращать внимание.

Шаг пятый: ищем связи с другими листами. На планах есть отметки типа «разрез А-А» или «фасад 2» — это указания, на каком листе искать соответствующие виды.

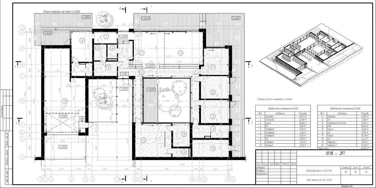
Планы этажей: самое интересное и понятное

Планы — это основа основ. Здесь вся информация о том, как вы будете жить в доме.

-2

Стены показаны линиями разной толщины: жирные — несущие стены, тонкие — перегородки, которые можно снести или перенести. Штриховка внутри стен показывает материал: косые линии — кирпич, точки — бетон, волнистые — утеплитель. Уточняем по легенде, помните?

Двери обозначены дугой, которая показывает, в какую сторону открывается створка. Важная деталь — ширина проёма всегда подписана. Если видите 600 мм — это узкая дверь, 800-900 мм — стандартная, больше 900 мм — широкая.

Окна выглядят как тонкие прорези в стене с маркировкой типа «ОК-01», «ОК-02». Каждая марка соответствует определённому типу окна, описанному в ведомости.

Лестницы рисуют как ряд прямоугольников-ступеней со стрелкой и надписью «вверх» или «вниз». Количество ступеней можно пересчитать — полезно для понимания крутизны лестницы.

Размеры проставлены в трёх уровнях: внутренние (проёмы и расстояния между стенами), промежуточные (размеры помещений) и габаритные (общие размеры дома).

Оси здания — это кружочки с цифрами и буквами вдоль стен. Система координат, которая помогает найти любой элемент на других листах проекта.

Фасады и разрезы: как дом выглядит на самом деле

Фасады — это портреты дома с разных сторон. Здесь видны реальные пропорции, материалы отделки, расположение окон и входов. Обязательно указаны высотные отметки: где уровень земли, где карниз, где конёк крыши.

-3

Разрезы показывают «внутренности» дома. Это единственное место, где можно понять реальную конструкцию: толщину стен, утеплителя, перекрытий. Видна высота каждого помещения, расположение лестниц и технических помещений.

На разрезах обязательно указаны высотные отметки — цифры со знаком плюс или минус. Обычно «±0,000» означает уровень чистого пола первого этажа, все остальные отметки считаются от этой точки.

Инженерные чертежи: страшно, но можно разобраться

Отопление, вентиляция, сантехника, электрика — у каждого раздела свой лист и своя система условных обозначений. Не пугайтесь обилия символов!

-4

Главное правило: у каждого инженерного листа есть своя легенда с расшифровкой символов. Кружочек с крестиком — это может быть вентиляционная решётка, прямоугольник с волнистыми линиями — радиатор отопления, а загогулина с цифрой — розетка определённого типа.

Вентиляция показана воздуховодами (прямоугольные или круглые трубы), решётками притока и вытяжки, вентиляционной установкой.

Отопление — это трубы, радиаторы, тёплые полы (показаны змейкой), котёл или тепловой насос.

Сантехника включает трубы холодной и горячей воды, канализацию, сантехприборы, трапы и ревизии.

Электрика — розетки, выключатели, светильники, распределительные щиты, трассы кабелей.

Все отметки высот и привязки к осям помогают понять, где именно в реальном доме будет проходить труба или воздуховод.

Где искать удобство и комфорт в цифрах

Чертежи могут рассказать о комфорте больше, чем красивые картинки. Вот на что обращать внимание:

Ширина проходов. Комфортная ширина для одного человека — 80-90 см, для двух человек — 120 см. Меньше — будет тесно.

Планировка кухни. Холодильник, мойка и плита должны образовывать удобный треугольник. Расстояния между ними от 1,2 до 2,5 метров — оптимально. Ширина рабочих проходов не менее 90 см.

Санузлы. Перед унитазом должно быть не менее 60 см свободного пространства, перед раковиной — 70 см, в душевой кабине — не менее 90×90 см. Эти размеры легко проверить по плану.

Лестницы. Комфортная ширина марша — не менее 90 см, лучше 100-120 см. Высота ступени 15-17 см, глубина — 28-30 см. Эти параметры смотрят на разрезе или детали лестницы.

Естественное освещение. Планы покажут ориентацию окон по сторонам света, размеры окон помогут оценить количество света в комнатах.

Словарик для начинающих

План — вид сверху, где что расположено

Фасад — вид снаружи, как дом выглядит с улицы

Разрез — вид «в разрезе», показывает конструкцию

Оси — система координат на чертежах

Отметка — высота точки относительно нулевого уровня

Марка — буквенно-цифровой код элемента

Легенда — расшифровка условных обозначений

Штриховка — способ показать материал графически

Масштаб — во сколько раз уменьшен реальный размер

Ведомость — таблица с подробным описанием элементов

Типичные ошибки новичков

Игнорируют масштаб. Думают: «Ой, какая большая кухня!», а на самом деле она 3х3 метра. Всегда сверяйтесь с размерными линиями и масштабом.

Не читают легенду. Пытаются угадать, что означают символы, вместо того чтобы посмотреть в расшифровку. Легенда — это инструкция по применению чертежа.

Смотрят только планы. Забывают про разрезы и узлы, а потом удивляются низким потолкам или сложным конструктивным решениям.

Не учитывают человеческие размеры. Забывают, что в ванной нужно не только поставить ванну, но и иметь место, чтобы в неё забраться.

Путают инженерные символы. Принимают вентиляционную решётку за светильник или радиатор за окно. Каждый раздел имеет свою легенду!

Пошаговый план изучения проекта

1. Начинаем с генплана — понимаем, как дом стоит на участке, где въезд, где соседи

2. Изучаем план первого этажа — входная группа, общественные зоны, кухня

3. Смотрим планы остальных этажей — спальни, санузлы, подсобные помещения

4. Переходим к фасадам — оцениваем внешний вид и пропорции

5. Анализируем разрезы — проверяем высоты, конструкцию, утепление

6. Изучаем инженерные планы — понимаем, где что подключается

7. Сверяем с ведомостями — уточняем характеристики окон, дверей, материалов

8. Проверяем удобство по размерам — хватит ли места для комфортной жизни

В заключение: чертежи как язык общения

Чертежи — это не просто техническая документация, это язык профессионального общения в строительстве. Научившись читать этот язык, вы сможете:

- Понимать, что предлагает архитектор

- Задавать правильные вопросы подрядчику

- Контролировать качество строительства

- Вносить осознанные изменения в проект

- Избегать дорогих ошибок и недопониманий

Помните: чертежи созданы для того, чтобы их понимали. В них есть логика, система условных обозначений и подробные расшифровки. Освоив базовые принципы чтения чертежей, вы перестанете зависеть от толкований других людей и сможете самостоятельно оценивать проектные решения.

Энергоэффективный дом начинается с грамотного проекта. А грамотный проект — это тот, который вы можете понять и оценить сами. Не стесняйтесь задавать вопросы архитектору, требовать пояснений и разъяснений. В конце концов, это ваш дом, и вы имеете право знать, как он устроен.

Домостройка

Была ли статья полезной? Ставьте лайк и делитесь с друзьями, которые тоже строят дом! А если остались вопросы по чтению чертежей — задавайте в комментариях, разберём вместе!