Добавить в корзинуПозвонить
Найти в Дзене
«Нанософт»

nanoCAD ускоряет проектирование промышленных предприятий. Опыт «СТЭЛТА»

Повышение эффективности работы проектного отдела «СТЭЛТА» при подготовке и выпуске проектной документации с использованием nanoCAD и профильных модулей СПДС, 3D. О заказчике Компания «СТЭЛТА» выполняет проектные работы для предприятий химической, нефтехимической, нефтегазоперерабатывающей промышленности, комплексное проектирование промышленных предприятий в рамках проектов по модернизации, техническому перевооружению, доведению до требований норм и правил промышленной безопасности. В компании применяются новейшие технологии и современное оборудование, позволяющие реализовывать полный комплекс работ от сбора исходных данных до технического сопровождения проекта. Задача Автоматизация проектирования и повышение производительности при подготовке строительной документации, оформлении строительных чертежей, разработке детализированных планов объектов нефтехимической промышленности с учетом требований заказчика и законодательства Российской Федерации. Продукты компании «Нанософт» Платформа na
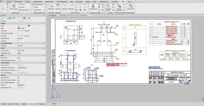
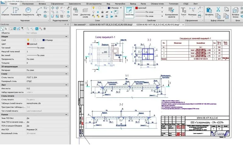
Схема покрытия и спецификация элементов, выполненные в Платформе nanoCAD, модуль «СПДC»
Схема покрытия и спецификация элементов, выполненные в Платформе nanoCAD, модуль «СПДC»

Повышение эффективности работы проектного отдела «СТЭЛТА» при подготовке и выпуске проектной документации с использованием nanoCAD и профильных модулей СПДС, 3D.

О заказчике

Компания «СТЭЛТА» выполняет проектные работы для предприятий химической, нефтехимической, нефтегазоперерабатывающей промышленности, комплексное проектирование промышленных предприятий в рамках проектов по модернизации, техническому перевооружению, доведению до требований норм и правил промышленной безопасности. В компании применяются новейшие технологии и современное оборудование, позволяющие реализовывать полный комплекс работ от сбора исходных данных до технического сопровождения проекта.

Задача

Автоматизация проектирования и повышение производительности при подготовке строительной документации, оформлении строительных чертежей, разработке детализированных планов объектов нефтехимической промышленности с учетом требований заказчика и законодательства Российской Федерации.

Продукты компании «Нанософт»

Платформа nanoCAD: профильные модули «СПДС» и «3D».

Партнер «Нанософт» по внедрению

ЗАО «СиСофт Омск» – фокус и премьер-партнер по направлениям «Конструкции», «Машиностроение» и «Инженерия».

Критерии выбора продуктов компании «Нанософт»:

  • новейшие технологии в проектировании, большая база встроенных элементов и оформления чертежей;
  • автоматизация и ускорение процессов разработки проектной документации;
  • соответствие российским стандартам и ГОСТам;
  • возможность интеграции со сторонним программным обеспечением. в том числе BIM;
  • библиотеки параметрических объектов.

Результат

Удалось сократить время, необходимое для правильного оформления документации за счет автоматизации многих процессов, повысилась эффективность работы и последующее техническое сопровождение проектов.

«Простой, удобный интерфейс и большая база встроенных элементов оформления чертежей позволяют легко сориентироваться в программе nanoCAD и выполнять проекты в кратчайшие сроки, поэтому мы настроены на долгосрочную совместную работу».

Евгений Валерьевич Коровин, директор ООО «СТЭЛТА»

-2