Добавить в корзинуПозвонить
Найти в Дзене
АвТОгус

Элис Паркер: забытая изобретательница, изменившая систему отопления

Мы настолько привыкли к комфорту, что даже не замечаем вещей, без которых просто не можем обходиться. К примеру, живя в многоквартирном доме, мы точно знаем, что с наступлением холодов батареи центрального отопления включатся, по ним побежит горячая вода, и в доме станет тепло. Даже в частных домах есть привычные радиаторы, и никто — ну или почти никто — не отапливается дедовским способом, при помощи угля или древесины. Но кому мы обязаны этим? Давайте разбираться вместе. Известно, что патент на газовую печь, способную обогревать даже многоквартирный дом, получила Элис Х. Паркер. Увы, подлинных фотографий этой темнокожей изобретательницы история не сохранила. В интернете же чаще всего распространяются снимки других людей — например, Бесси Блаунт Гриффин (ещё одной женщины-изобретателя) или англичанки с таким же именем. Если дата рождения Паркер установлена довольно точно (1895 год, Морристаун, штат Нью-Джерси), то дата её смерти до сих пор остаётся неизвестной. Всё, что осталось от не

Мы настолько привыкли к комфорту, что даже не замечаем вещей, без которых просто не можем обходиться. К примеру, живя в многоквартирном доме, мы точно знаем, что с наступлением холодов батареи центрального отопления включатся, по ним побежит горячая вода, и в доме станет тепло. Даже в частных домах есть привычные радиаторы, и никто — ну или почти никто — не отапливается дедовским способом, при помощи угля или древесины. Но кому мы обязаны этим? Давайте разбираться вместе.

Известно, что патент на газовую печь, способную обогревать даже многоквартирный дом, получила Элис Х. Паркер. Увы, подлинных фотографий этой темнокожей изобретательницы история не сохранила. В интернете же чаще всего распространяются снимки других людей — например, Бесси Блаунт Гриффин (ещё одной женщины-изобретателя) или англичанки с таким же именем.

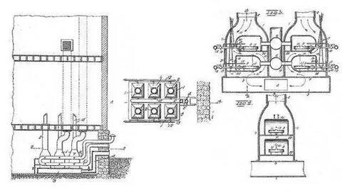
Если дата рождения Паркер установлена довольно точно (1895 год, Морристаун, штат Нью-Джерси), то дата её смерти до сих пор остаётся неизвестной. Всё, что осталось от неё, — чертёж из бюро патентов. Элис окончила среднюю школу при Говардском университете, а затем, судя по найденным документам, и академию — причём с отличием. Интересно, что Паркер работала поваром в Морристауне, а её муж был дворецким.

В 1919 году она подала заявку на патент инновационного нагревательного устройства особого типа. Как убедились современные исследователи, детализация и сложность эскизов в её патенте указывают на высокий уровень образования. Однако, учитывая, что она была женщиной, да ещё и афроамериканкой, скорее всего, она столкнулась с огромными трудностями в продвижении своего изобретения.

В чём же заключалась её идея? Паркер создала систему отопления, использующую природный газ. Подобные установки существовали и раньше, но её разработка была принципиально новой. В отличие от сжигания дров, её система обеспечивала более безопасный и эффективный обогрев. Воздуховоды не только распределяли тепло по помещениям, но и позволяли регулировать температуру в разных комнатах — чем не могли похвастаться аналоги.

Устройство состояло из нескольких мини-печей, подключённых к общему теплообменнику. Тот нагревал воздух за счёт природного газа и распределял его по всему зданию. Конечно, в её патенте речь шла не о водяном отоплении, которое распространено сегодня, но именно её идея положила начало современным системам.

Увы, как это часто бывает, изобретение Паркер так и не было реализовано при её жизни. Однако уже в 1935 году её концепцию усовершенствовали: появились обогреватели с принудительной конвекцией, использующие угольные печи и электрические вентиляторы. Более того, её идеи легли в основу современных систем HVAC (отопления, вентиляции и кондиционирования), которые сегодня используются в офисах, гостиницах и концертных залах.

Элис Паркер — один из тех незаслуженно забытых изобретателей, чьи работы изменили наш быт. Её история напоминает, что прогресс часто создаётся теми, кого редко вспоминают.