Найти в Дзене
INMYROOM

8 классных идей для малогабаритки, которые мы подсмотрели в однушке 35 м²

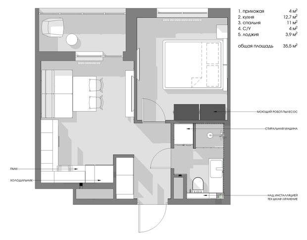
Интересные решения из проекта дизайнера Дизайнер Юлия Комиссарова оформила функциональный яркий интерьер в питерской однушке для сдачи в аренду. Главной задачей было создать привлекательное пространство, которое будет выделяться на фоне конкурентов, и предусмотреть все необходимое для комфортной жизни. Показываем крутые идеи из проекта — они точно заслуживают вашего внимания. Для того чтобы дизайн «цеплял» потенциальных арендаторов, в интерьере применены яркие цвета в обивке мягкой мебели и контрастные элементы в отделке. Это создает уникальную атмосферу и делает квартиру запоминающейся. Заказчик — инженер, увлеченный системами автоматики. Поэтому в квартире звонковые выключатели и разные схемы освещения. Это позволяет создавать различные сценарии света с одной клавиши. Щиток скрыт в шкафу у входа и запирается на электронный замок. Важно отметить, что во всех шкафах предусмотрена вентиляция. Для максимального удобства уборки в душевой установлены подвесные принадлежности, что освобожда
Оглавление

Интересные решения из проекта дизайнера

Дизайнер Юлия Комиссарова оформила функциональный яркий интерьер в питерской однушке для сдачи в аренду. Главной задачей было создать привлекательное пространство, которое будет выделяться на фоне конкурентов, и предусмотреть все необходимое для комфортной жизни. Показываем крутые идеи из проекта — они точно заслуживают вашего внимания.

 📷
📷

1. Яркие цвета и контрастные решения

Для того чтобы дизайн «цеплял» потенциальных арендаторов, в интерьере применены яркие цвета в обивке мягкой мебели и контрастные элементы в отделке. Это создает уникальную атмосферу и делает квартиру запоминающейся.

 📷
📷

2. Сложная электрика

Заказчик — инженер, увлеченный системами автоматики. Поэтому в квартире звонковые выключатели и разные схемы освещения. Это позволяет создавать различные сценарии света с одной клавиши. Щиток скрыт в шкафу у входа и запирается на электронный замок. Важно отметить, что во всех шкафах предусмотрена вентиляция.

 📷
📷

3. Удобная уборка

Для максимального удобства уборки в душевой установлены подвесные принадлежности, что освобождает место на столешнице. Скрытый плинтус предотвращает накопление пыли, а металлический цоколь на кухне добавляет износостойкости. Вся мебель выполнена на ножках или является подвесной, что также помогает поддерживать порядок.

4. Зеркальная дверь в душевую

В небольшой прихожей не было места для зеркала в полный рост, поэтому использование двери в качестве зеркала — практичное и функциональное решение. Со стороны душевой дверное полотно тоже полностью зеркальное.

 📷
📷

5. Акцентный черный цвет

Для увеличения визуальной высоты дверей пространство над ними выкрасили в черный цвет. Это решение, в сочетании с вертикальными полосами на стене за диваном и обрамлением панно, создает гармоничное единство с дверями и треками на потолке.

 📷
📷

6. Грамотное хранение

Несмотря на ограниченное пространство, в квартире предусмотрено много мест для хранения. Большая открытая гардеробная включает специальное место для чемоданов, а над стиральной машиной размещен шкаф для полотенец и белья. В кухне есть место для утюга и гладильной доски, а в прихожей — ниша для обуви.

 📷
📷

7. Практичные покрытия

Заказчики пожелали гладкие стены, и для этого была выбрана покраска. Чтобы обеспечить долговечность и очистку поверхности, мы покрыли стены гидролаком, который повышает грязеотталкивающие свойства. Столешницы в ванной и на кухне, а также подоконники выполнены из искусственного камня, а в основной зоне используется керамогранит.

 📷
📷

8. Скрытое место для сейфа

Для обеспечения безопасности арендаторов предусмотрено скрытое место для сейфа. Он расположен в стене за гардеробной системой в спальне, а доступ к нему осуществляется через мебель. Ниша для корпуса находится в ванной над стиральной машиной, что обеспечивает максимальное использование пространства.

 📷
📷

Эти решения сделали малогабаритную квартиру уютной, функциональной и стильной. Надеемся, они вдохновят вас на обновления в вашем интерьере!

Сейчас читают:

Спасибо, что читаете нас! ❤️

Если материал был полезен — поставьте лайк и отправьте другу.

А ещё больше интерьерных идей, советы экспертов и классные румтуры в нашем Telegram-канале. Подписывайтесь, вам точно понравится!