Найти в Дзене

После тяжелой недели работы вы приходите на свой участок, а там вас ждет собственная баня из ароматного бревна

Идеальная баня на вашем участке: почему проект 5,5х6,75 м из бревна — лучшее решение для отдыха и здоровья Представьте: после тяжелой недели работы вы приходите на свой участок, а там вас ждет собственная баня из ароматного бревна. Парная, где можно прогреть уставшие мышцы, комната для отдыха с друзьями, и всё это — всего в нескольких шагах от дома. Сегодня расскажем, почему баня размером 5,5х6,75 м — идеальный вариант для счастья! Несмотря на компактные размеры, в бане помещается всё необходимое: Баня из бревна 5,5х6,75 м — это не просто постройка, а место силы, где вы сможете отдыхать телом и душой. Она станет центром притяжения на вашем участке и подарит сотни часов счастья! А у вас есть баня? Делитесь впечатлениями в комментариях! Строительство домов, бань и беседок из оцилиндрованного бревна в Санкт-Петербурге и Ленинградской области Санкт-Петербург +7 (812) 385-56-40 #баня #сруб #отдых #здоровье #дача #строительство #русскаябаня
Оглавление
Баня из бревна И-11
Баня из бревна И-11

Идеальная баня на вашем участке: почему проект 5,5х6,75 м из бревна — лучшее решение для отдыха и здоровья

Представьте: после тяжелой недели работы вы приходите на свой участок, а там вас ждет собственная баня из ароматного бревна. Парная, где можно прогреть уставшие мышцы, комната для отдыха с друзьями, и всё это — всего в нескольких шагах от дома. Сегодня расскажем, почему баня размером 5,5х6,75 м — идеальный вариант для счастья!

Почему именно бревно?

  • Натуральные материалы: Бревно «дышит», создавая идеальный микроклимат с естественной регуляцией влажности.
  • Тепло и уют: Дерево прекрасно сохраняет тепло — протопить баню можно даже в мороз, и она долго будет держать жар.
  • Атмосфера: Аромат древесины и эстетика сруба создают ту самую магию русской бани, которую не заменят никакие современные материалы.

Баня из бревна И-11
Баня из бревна И-11

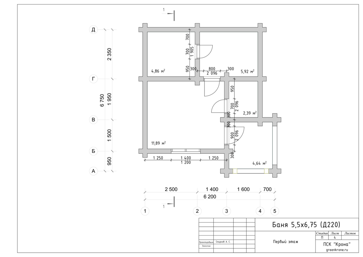
4 комнаты для полноценного отдыха

Несмотря на компактные размеры, в бане помещается всё необходимое:

  1. Парная — сердце бани, где можно париться с веником.
  2. Помывочная — чтобы освежиться после пара.
  3. Комната отдыха — здесь можно попить чай, пообщаться с гостями или просто расслабиться.
  4. Предбанник — защищает от холода и служит местом для хранения дров и аксессуаров.

Почему этот размер — золотая середина?

  • Экономия места: Баня не займет много места на участке, но при этом функциональна.
  • Доступная стоимость: Цена от 1 395 980 ₽ — это инвестиция в здоровье и отдых, которая окупится годами удовольствия.
  • Быстрое строительство: Небольшие габариты позволяют возвести баню за несколько недель.

Для кого эта баня?

  • Для семьи: Отличное место для проведения выходных и праздников.
  • Для здоровья: Регулярные банные процедуры укрепляют иммунитет, снимают стресс и улучшают самочувствие.
  • Для гостей: Ваши друзья будут в восторге от приглашения в баню!

Что добавить для уюта?

  • Террасу — для летних посиделок.
  • Купель или бассейн — чтобы охладиться после парной.
  • Камин — создаст особую атмосферу в комнате отдыха.

Вывод:

Баня из бревна 5,5х6,75 м — это не просто постройка, а место силы, где вы сможете отдыхать телом и душой. Она станет центром притяжения на вашем участке и подарит сотни часов счастья!

А у вас есть баня? Делитесь впечатлениями в комментариях!

Баня из бревна И-11 одноэтажная, 5,5х6,75 метров с крыльцом

Строительство домов, бань и беседок из оцилиндрованного бревна в Санкт-Петербурге и Ленинградской области

Санкт-Петербург

+7 (812) 385-56-40

#баня #сруб #отдых #здоровье #дача #строительство #русскаябаня