Найти в Дзене

Частые замечания к ПЗ №1, ПЗ №2 по предмету ИТГП и КомпПро для студентов изучающих Renga Professional

Приводится список часто встречающихся замечаний при формировании информационной модели и создании чертежей в программе ренга по предмету Информационные технологии графического проектирования (ИТГП) и Компьютерное проектирование (КомпПро).
Замечания и пожелания будут дополняться (последнее изменение от 19.09.25г.)
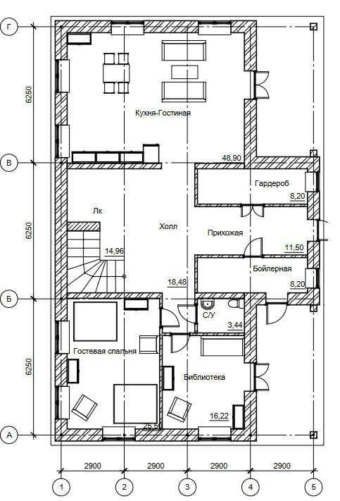
1 - между осями А и Г, между осями 1 и 5 проставьте габаритный (общий) размер. Ниже фрагмент плана 1-го этажа на котором нет габаритного размера от оси А до оси Г, от оси 1 до оси 5: 1.1 - нет размеров между осями? - надо расставить. на фото ниже нет размеров между осями 4 и 5, а также на плане 2-го этажа между осями: 2 - на плане 2-го этажа видны односкатные крыши веранд - это хорошо. Края этих крыш выровняйте вдоль осей А и Г. Сейчас на фото края крыш вдоль осей А и Г скошены: и еще: 3 - название в основной надписи (в штампе) не "Курсовой проект индивидуального жилого дома в г. Санкт-Петербург", лучше назвать как
"Планы индивидуального жилого дома в г. Санкт-Петербург":
Оглавление

Приводится список часто встречающихся замечаний при формировании информационной модели и создании чертежей в программе ренга по предмету Информационные технологии графического проектирования (ИТГП) и Компьютерное проектирование (КомпПро).

Замечания и пожелания будут дополняться (последнее изменение от 19.09.25г.)

По Практическому занятию №1 - частный домик на 2 этажа:

1 - между осями А и Г, между осями 1 и 5 проставьте габаритный (общий) размер. Ниже фрагмент плана 1-го этажа на котором нет габаритного размера от оси А до оси Г, от оси 1 до оси 5:

-2

1.1 - нет размеров между осями? - надо расставить. на фото ниже нет размеров между осями 4 и 5, а также на плане 2-го этажа между осями:

-3

2 - на плане 2-го этажа видны односкатные крыши веранд - это хорошо. Края этих крыш выровняйте вдоль осей А и Г. Сейчас на фото края крыш вдоль осей А и Г скошены:

-4

и еще:

-5

3 - название в основной надписи (в штампе) не "Курсовой проект индивидуального жилого дома в г. Санкт-Петербург", лучше назвать как
"
Планы индивидуального жилого дома в г. Санкт-Петербург":

-6

3.1 - в строительных чертежах используйте штампы строительные.
[
Штампы (основные надписи) на чертежах бывают разные, и их форма строго зависит от типа чертежа (машиностроительный или строительный) и регулирующего стандарта. В России и странах СНГ действуют две основные системы стандартов: ЕСКД (Единая система конструкторской документации) — для машиностроения и приборостроения; СПДС (Система проектной документации для строительства) — для строительства и архитектуры].
Ниже на фото применен в чертеже машиностроительный штамп по ЕСКД, что неверно:

этот штамп (основная надпись) не для строительных чертежей
этот штамп (основная надпись) не для строительных чертежей

4 - на планах этажей покажите в нескольких местах толщины стен
(120мм перегородки, 250мм толщины внутренних несущих стен, а также толщину наружных стен по варианту). Фрагмент плана с проставленными размерами толщин стен:

-8

5 - на плане 1-го этажа показать размером расстояние выдвижения (выпирания) фундаментной плиты за линию стен снаружи. Согласно методическим указаниям фундамент выходит за плоскость стены на 200мм:

-9

6 - сантехническое оборудование и различные сантехприборы, такие как унитаз, раковина, ванная и душевые кабины, размещать учитывая логику пользователя (самому "проживать" жизнь в каждой части дома). Чтобы расстояния позволяли проходить беспрепятственно человеку, чтобы можно было удобно воспользоваться унитазом, раковиной.
Например, на плане ниже, унитаз в санузле прижат к стене - надо отодвинуть, чтобы было хорошо для людей:

-10
тут в санузле совсем мало места.... Или нормально?
тут в санузле совсем мало места.... Или нормально?

7 - на планах расставить мебель (что-то из кроватей, диванов, столов и стульев), обязательно расставить в санузлах раковины, унитазы и ванны. Пустые помещения смотрятся грустно и не дают в полной мере оценить оставшиеся свободные пространства после того как будет меблировка:

-12

8 - на планах этажей отразить (включить для окон) отображение отлива и подоконника у окон.
Для включения отлива и подоконника на планах для окон нужно выделить окно и справа в окне параметров в конце (в нижнем окне) будет две кнопки с красными линиями - надо на них нажать, чтобы активировать отображение подоконника и отлива для окон в ренге.
Ниже фото плана без включенного подоконника и отлива, поэтому виден кирпич в оконных проемах:

-13

9 - текст на всех чертежах (во всей работе) сделать единым, то есть ГОСТовским. На скриншоте ниже подпись к плану "План 1-ого этажа" в другом шрифте:

-14

10 - цифровые оси на плане расположите слева направо, а буквенные оси ― снизу вверх. на фото ниже буквенные оси идут внизу, а цифирные слева, что не совсем будет верно:

-15

Этот скрин из ГОСТ, как оси идут буквенные на плане цифирные:

-16

11 - если на плане 2-го этажа в ренге отображение стен и кусочков крыш так же как и на рисунке ниже,

-17

то необходимо настроить положение секущей плоскости в окне параметров вида (например, на высоте 1500мм обычно планы получаются как положено, то есть и оконные и дверные проемы верно рассекаются и отображаются, а куски крыш исчезают)

если значение Смещения секущей плоскости выше, чем окна и двери, то будет только разрез стены, без учета проемов
если значение Смещения секущей плоскости выше, чем окна и двери, то будет только разрез стены, без учета проемов

верно будет ставить значение Смещения секущей плоскости = 1500мм для случая ПЗ1

-19

12 - отсутствуют оси на планах, необходимо вынести оси на листы чертежей. На фото ниже отсутствуют оси:

-20

13 - в основных надписях (штампах) указывать всю информацию полностью - это касается шифров, названий, фамилий, лист/листов, стадия и т.д. и т.п.
На фото ниже, например, отсутствует информация по Шифру, количеству листов:

-21

14 - на плане 2-го этажа не отображается лестница размещенная на первом этаже. На фото ниже не видно лестницы, которая идет с первого на второй этаж:

-22

Нужно поработать над отображением находясь на листе чертежа 2-го этажа - для этого надо выделить видовой экран (контур загорится фиолетовым прямоугольником) и справа в окне Параметры проставить значение -100 для параметра Смещение плоскости глубины видимости (скрин программы ниже настройкой):

-23

15 - нумерацию помещений сделать сквозную (на первом этаже начать с помещения №1 и вести далее переходя на второй этаж). Ниже на фото экспликация помещений 2-го этажа, где нумерация помещений начинается заново, что будет не совсем по методичке:

-24

16 - настройте отображение дверей, так чтобы в проёмах была конструкция дверей, дуга открывания дверей. На фото ниже дуга открывания дверей отсутствует:

-25

17 - дублирующиеся размеры на планах удалить

-26

18 - если каша из размеров, надписей, мебели/оборудования, цифр, то лучше аккуратно растащить эту информацию, либо не наполнять некоторой информацией чертеж (надо стремиться к тому, чтобы чертеж был читабельным). на фото ниже некоторые надписи заходят на мебель, размеры и т.д. и т.п.

-27

19 - нумерация помещений в экспликации дублируются; номера помещений не должны повторяться. На фото ниже дублирование помещения под номером 1:

-28

Также отразить упущенные номера помещений. Например на фото ниже нет помещения №4:

-29

20 - в экспликациях помещений площадь итоговая по одному этажу не может получаться более 200м2;
если ИТОГО в экспликации в 2 раза больше, чем должно получаться, то скорее всего в ренге в теле плиты есть еще одна плита и программа из-за этого удваивает площадь - нужно удалить лишнюю плиту.

-30

21 - в штампе (в основной надписи) фамилию пишем без инициалов, особенно если это редкая фамилия*, иначе получается каша в ячейке:

-31

* если фамилия не редкая, то возможно стоит указать инициалы, при этом сжав текст или уменьшив высоту шрифта.

22 - разместите двери таким образом, чтобы не возникали коллизии (простыми словами коллизия в bim - это ошибки или пересечения).
На фото ниже двери из разных помещений открываются в одну сторону и сталкиваются между собой (эксплуатационная коллизия):

-32
-33

Коллизия - окно в стене, стена в окно:

-34

23 - в экспликации есть помещение с нулевой площадью.
На фото ниже в экспликации 2-го этажа имеется лишнее помещение с нулевой площадью под номером 3:

-35

24 - экспликации помещений на листах 1-го и 2-го этажей одинаковые.
Нужно создать копию экспликации и применить фильтры как на видео ту:
https://rutube.ru/video/fe52b39f564a30b3e1b0e5764c189681/?playlist=301705
На фото ниже показаны одинаковые экспликации на листах:

-36

25 - на плане помещения не подписаны:

-37

Посетите ТГ-каналы https://t.me/addlist/ORFntW_rg0A0MDhi


По Практическому занятию №2 - офисное здание с подвалом и плоской крышей:

-38

1 - на титульном листе текст сделать в таком же стиле как и текст во всей работе, то есть ГОСТовским.

2 - правильно прописывайте название предмета, есть Информационные технологии графического проектирования (ИТГП) для студентов 2-го курса направления Строительство бакалавр, а есть Компьютерное проектирование (КомпПро, КП) для студентов 1-го курса с архитектурного факультета.

На данном скриншоте предмет указан как Компьютерное проектирование
На данном скриншоте предмет указан как Компьютерное проектирование

3 - на листе общие данные, по методичке, размещается две таблицы (1-я таблица Ведомость чертежей проекта или Ведомость листов или Ведомость чертежей основного комплекта, 2-я таблица Ведомость ссылочных и прилагаемых документов):

-40

Одна ведомость с названиями листов в проекте,
а вторая с ГОСТ на окна/двери, которые были применены в проекте и со Сводами правил (СП).

4 - в правом нижнем углу основной надписи (штампа) указывать сокращенную аббревиатура СПбГАСУ. Не указан ВУЗ в штампе:

Указывается не номер группы, а ВУЗ.
Указывается не номер группы, а ВУЗ.

5 - отображение пола слишком резкое, черного цвета. Надписи на плане, на фоне резкого отображения пола (в клеточку), сливаются. Сделайте более серым, прозрачным.

-42

6 - на планах разместите некоторую мебель, а унитазы обязательно в каждой кабинке, раковины в санузлах, продумывая логику пользования всем этим сантехоборудованием.

7 - устранить орфографические ошибки в словах, например, правильно писать название помещения - Терраса в экспликации помещений 2-го этажа.

8 - в экспликациях в последней строчке нужно подвести ИТОГО по площадям. Отсутствует Итого в экспликациях этажей:

-43
-44

9 - Кладочный план — это пошаговый маршрут для каменщика.
Без кладочного плана каменщик будет работать вслепую, постоянно перемерять рулеткой, рискуя ошибиться с размерами, забыть про окно/дверь или построить стену не там.
С кладочным планом работа каменщика становится предсказуемой и правильной с первого кирпича. Каменщик приходит на объект. Перед ним — просто фундамент или перекрытие (это как чистый пол).
Он открывает
кладочный план и видит не просто квадратик «стена», а подробную схему, где показано:

  • Точное расположение каждой стены. Где какая стена начинается и заканчивается. Чтобы не построить стену там, где ее не должно быть.
  • Все проемы. Где и какого размера должны быть окна и двери. План сразу показывает: «Вот здесь, через 10 кирпичей, начнется оконный проем. Не забудь!»
  • Размеры и привязки. На каком расстоянии от другой стены или колонны должна начинаться кладка. Это чтобы все было ровно и по размерам проекта.
  • Особые места. Где нужно оставить отверстия под коммуникации (трубы, вентиляцию) или уложить дополнительные металлические элементы для прочности.

В практическом занятии №2 нужно разработать такой лист с кладочным планом для одного этажа (1-й или 2-й). При работе над кладочным планом можно посмотреть это видео: https://rutube.ru/video/b3c0f5570c9145734a0e3c2f9c89a225/
Ниже пример кладочного плана для кирпичной стены - обратите внимание на обилие размеров (
образмерено только с одной стороны, так как сделали допущение о том, что здание имеет симметричную конфигурацию):

-45

10 - настройте отображение фасадов в цветном виде.

11 - на фасадах не отображайте подвальную часть офисного здания (это та оранжевая часть здания, которая будет под землей, то есть под уровнем 1). Подвал это строения ниже отметки +0.000.
На разрезе можно будет отобразить подвальную часть здания, как на фото ниже:

-46
-47

12 - в ведомостях дверей/окон (в спецификациях) нужно прописать ГОСТы на окна и двери везде, во всех строках таблицы. Не оставляйте пустыми строчки по столбцам Обозначение и Наименование:

-48
-49

13 - в ведомости листов проекта идет нумерация листов, эти номера должны совпадать с номерами в штампах (в основной надписи). Ниже на фото нестыковка - в штампе указан лист номер 3, а в ведомости листов этот лист идет под номером 1:

-50

14 - в таблицу "Ведомость ссылочных и прилагаемых документов" дописать ГОСТы на окна и двери, которые были внесены в окнах и дверях.
На фото ниже ведомость без этих ГОСТов и название неверное у таблицы:

-51

15 - дублирование номеров помещений в экспликациях не допускать

-52

16 - наименование объекта в штампе (в основной надписи) "Офисное здание в г. Санкт-Петербург".

-53

17 - Утеплитель в конструкции наружных стен расположите со стороны улицы. Не размещайте внутри здания.
Если утеплитель будет изнутри помещения, то это приведет к промерзанию стены, а такое понятие как "точка росы" (это место, где может образоваться конденсат) будет ближе к помещениям здания, что не очень хорошо, потому что утеплитель будет мокрым, мерзлым, будет образовываться плесень и материалы стен могут начать рушиться. На фото ниже утеплитель смоделирован изнутри:

-54

Нужно передвинуть слой утеплителя в конструкции стены.

18 - площадь террас тоже нужно включить в экспликации помещений 2-го этажа, чтобы вошли в ИТОГО:

-55

19 - штампы (основные надписи) все до единого нужно проверить на наполненность информацией (Разработал, Проферил, фамилии, шифр, название объекта, название чертежа, ВУЗ, лист/листов, стадия).

20 - балка размещена не под наружной несущей стеной.
Балку по оси В сместить под стену по оси Б:

-56

21 - пол имеет толщину 100мм;
эти 100мм конструктивно ложатся на плиту перекрытия, плотно, без просветов.
Было рассмотрено в вопросах-ответах к ПЗ2 тут:
https://dzen.ru/a/aAYy4vIK8Epieyl0 (3-й вопрос).

-57

22 - на схемах заполнения дверных и оконных проемов у дверей и окон размеры имеют иной масштаб.
Например, окно высотой 2400мм имеет нанесенный размер в 4800мм, или дверь с размером также 4870мм

-58

23 - размеры между осями на планах отсутствуют, например, как на фото ниже:

-59

24 - на плане 1-го этажа укажите линию прохождения разрезов (1-1 и при наличии разреза 2-2). В каком месте проходит разрез на плане. На фото ниже указано место прохождения разреза:

-60


Посетите ТГ-каналы https://t.me/addlist/ORFntW_rg0A0MDhi