Добавить в корзинуПозвонить
Найти в Дзене

Актуальное КП на строительство дома 142.5 м2 из газобетона по проекту Нерль от Глеба Грина на фундаменте УШП (август 2025)

Поступил запрос на расчёт стоимости строительства одного из домов по проектам Глеба Грина. Проект Нерль – одноэтажный дом из газобетона площадью 142.5 м2 по внешним габаритам. Приведу планировку дома, позаимствованную с сайта Глеба: Вот так выглядит готовый дом после строительства: Стандартный фундамент по всех готовых проектах у Глеба – это классическая монолитная плита, но мы предлагаем расчёт на фундаменте УШП (перепроектирование входит в стоимость). Точно такое же КП вы можете получить для интересующего вас проекта, цифры могут меняться в зависимости от выбора конкретных материалов, а также зависят и от удаления от города. В общем, это актуальный пример расчёта стоимости строительства дома, готового к чистовой отделке, силами моих бригад. Обратите внимание на дату публикации – август 2025, с течением времени что-то наверняка изменится.

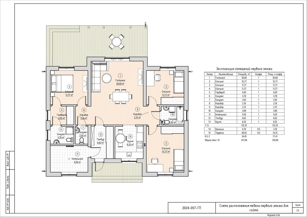
Поступил запрос на расчёт стоимости строительства одного из домов по проектам Глеба Грина. Проект Нерль – одноэтажный дом из газобетона площадью 142.5 м2 по внешним габаритам.

Приведу планировку дома, позаимствованную с сайта Глеба:

Вот так выглядит готовый дом после строительства:

-2

Стандартный фундамент по всех готовых проектах у Глеба – это классическая монолитная плита, но мы предлагаем расчёт на фундаменте УШП (перепроектирование входит в стоимость).

-3
-4
-5
-6
-7

Точно такое же КП вы можете получить для интересующего вас проекта, цифры могут меняться в зависимости от выбора конкретных материалов, а также зависят и от удаления от города.

В общем, это актуальный пример расчёта стоимости строительства дома, готового к чистовой отделке, силами моих бригад. Обратите внимание на дату публикации – август 2025, с течением времени что-то наверняка изменится.