Найти в Дзене
Prorooms

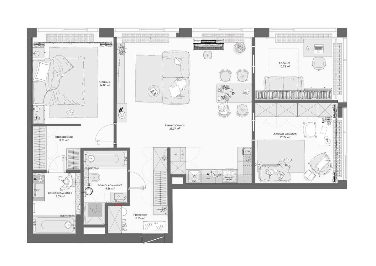
Делюсь планировочным решением квартиры в ЖК Симфония 34

Делюсь планировочным решением квартиры в ЖК Симфония 34 Трехкомнатная Квартира для молодой пары с панорамными окнами во всех комнатах Площадь 93 кв.м. *️⃣Мастер-спальня с проходным гардеробом и ванной комнатой *️⃣Кухня-гостиная с кухней в нише *️⃣Кабинет для удаленной работы *️⃣Детская комната на будущее Мне нравится, что застройщик сразу запланировал кухню в нише-это классное решение, которое позволяет высвободить зону гостиной и сделать её максимально просторной

Делюсь планировочным решением квартиры в ЖК Симфония 34

Трехкомнатная Квартира для молодой пары с панорамными окнами во всех комнатах

Площадь 93 кв.м.

*️⃣Мастер-спальня с проходным гардеробом и ванной комнатой

*️⃣Кухня-гостиная с кухней в нише

*️⃣Кабинет для удаленной работы

*️⃣Детская комната на будущее

Мне нравится, что застройщик сразу запланировал кухню в нише-это классное решение, которое позволяет высвободить зону гостиной и сделать её максимально просторной