Добавить в корзинуПозвонить
Найти в Дзене
Все о стройке

Ляпы в проектировании: ТОП-10 неудачных планировок

Редакция Всеостройке.рф рассказывает, почему жизнь в такой квартире может быть некомфортной. Квартиры с нерациональными зонами, нарушающими принципы эргономики и комфорта, — нередкое явление в современных жилых проектах. Причина неудачной планировки обычно кроется в сложной геометрии дома, но не всегда. Порой это следствие дизайнерских экспериментов или просто непродуманного подхода. Представляем подборку нетипичных планировок квартир, жителям которых, вероятно, придется поломать голову над тем, как организовать пространство и расставить мебель. Но, справедливости ради, отметим, что в руках опытных дизайнеров даже, казалось бы, неудачная планировка может стать еще одной фишкой новой квартиры. Современные города все чаще дополняются жилыми комплексами с закругленными фасадами, стеклянными эркерами и плавными линиями. Такие здания выглядят эффектно и архитектурно выразительно, однако жизнь внутри «домов-кораблей» и «бубликов» часто преподносит жильцам неожиданные сложности. Эстетика окру
Оглавление

Редакция Всеостройке.рф рассказывает, почему жизнь в такой квартире может быть некомфортной.

Квартиры с нерациональными зонами, нарушающими принципы эргономики и комфорта, — нередкое явление в современных жилых проектах. Причина неудачной планировки обычно кроется в сложной геометрии дома, но не всегда. Порой это следствие дизайнерских экспериментов или просто непродуманного подхода. Представляем подборку нетипичных планировок квартир, жителям которых, вероятно, придется поломать голову над тем, как организовать пространство и расставить мебель. Но, справедливости ради, отметим, что в руках опытных дизайнеров даже, казалось бы, неудачная планировка может стать еще одной фишкой новой квартиры.

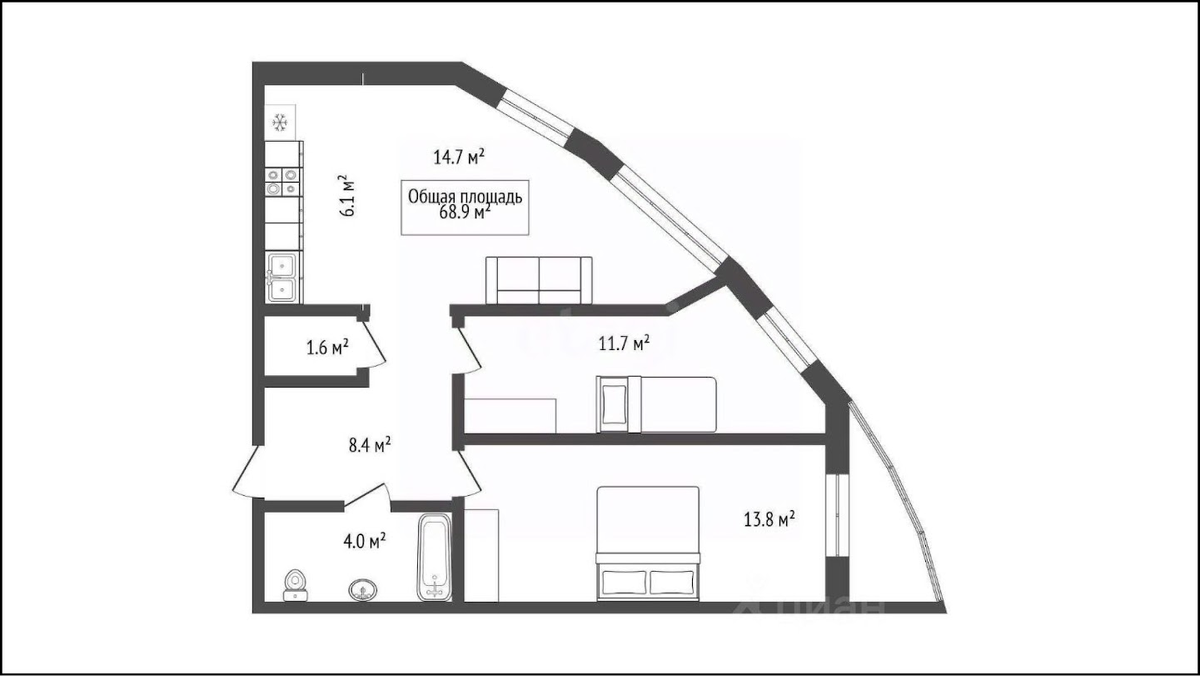
1. ЖК «Флотилия», Новосибирск (ГК Дом-Строй)

-2

Современные города все чаще дополняются жилыми комплексами с закругленными фасадами, стеклянными эркерами и плавными линиями. Такие здания выглядят эффектно и архитектурно выразительно, однако жизнь внутри «домов-кораблей» и «бубликов» часто преподносит жильцам неожиданные сложности. Эстетика округлых форм вступает в противоречие с практичностью и комфортом.

Главная проблема таких планировок — нерациональное использование пространства. Прямые стены и углы упрощают расстановку мебели, в то время как скругленные линии создают множество «слепых» зон и неудобных закутков. Владельцу такой квартиры приходится заказывать мебель по индивидуальным проектам, что значительно увеличивает бюджет ремонта.

Еще один существенный минус — сложность зонирования. Округлые помещения визуально воспринимаются как единое целое, что затрудняет разделение на функциональные области — например, выделение обеденной зоны в гостиной или организация спального места в студии. Приходится прибегать к сложным дизайнерским решениям.

2. ЖК «Морская симфония 2», Сочи (ПСТ)

-3

Форма этой квартиры напоминает кусок пиццы. Такие планировки выглядят оригинально, но их практичность оставляет желать лучшего.

Основная проблема заключается в сложности рационального использования пространства. Острые углы и скругленные стены создают множество «мертвых зон», где невозможно разместить стандартную мебель. В этом случае есть несколько решений: мириться с потерей полезной площади или, опять же, заказывать индивидуальные решения.

3. ЖК Z-town, Воронеж («Новый Код»)

-4

В попытке создать нетривиальную архитектуру фасадов квартиры внутри получают сложную форму с углами. Расставить мебель рационально в такой планировке — задача не из легких. Острые углы формируют «мертвые зоны», непригодные для размещения мебели или хранения вещей. Эти участки приходится маскировать или игнорировать, что приводит к потере ценных метров и снижению функциональности жилья.

4. ЖК «Манхэттен О2», Ростов-на-Дону («Ростовский кемпинг» )

-5

Коридор, площадь которого превышает размер комнат. На первый взгляд, такое решение кажется преимуществом: есть где развернуться, можно разместить шкафы и систему хранения. Однако на практике избыточный метраж в коридоре может обернуться рядом неудобств и упущенных возможностей.

Основная проблема заключается в нерациональном использовании площади. Коридор — это, по сути, транзитная зона, пространство, которое не используется для отдыха, работы или приема гостей. Когда его метраж превышает разумные (в рамках конкретной квартиры) пределы, это приводит к прямым потерям полезной площади. Вместо просторного, но бесполезного холла собственник мог бы получить дополнительную гардеробную, увеличенную кухню или более вместительную спальню. Особенно остро это ощущается в малогабаритных квартирах, где каждый квадратный метр на счету.

С точки зрения дизайна и обустройства вытянутое пространство коридора также представляет сложность: стандартная мебель здесь часто смотрится нелепо и не позволяет эффективно использовать углы и ниши.

5. ЖК «Приоритет», Нижний Новгород (Андор)

-6

Современные планировочные решения иногда преподносят сюрпризы в виде санузлов нестандартной геометрии, например, треугольной. Подобная форма чаще всего становится следствием попытки архитекторов вписать помещения в сложный контур здания, однако для жильцов это может быть неудобно. Основная сложность заключается в нехватке полезной площади: острые углы «съедают» ценное пространство, делая невозможным рациональное размещение сантехники и мебели.

6. ЖК «Среда на Лобачевского», Москва (ПИК)

-7

В этой планировке, чтобы попасть во все спальни, требуется пройти через кухню-гостиную. Это снижает приватность и делает невозможным полноценный отдых, если в зале кто-то бодрствует. Особенно остро это ощущается в семьях с разным режимом дня: если одни домочадцы поздно ложатся спать, наслаждаясь просмотром фильмов или общением в гостиной, другим приходится мириться с шумом и светом, проникающими в спальню.

Впрочем, в этом случае ситуацию может спасти, например, зонирование светопрозрачными перегородками или высокой мебелью, а также установка межкомнатных дверей с хорошей шумоизоляцией.

7. «Башня Исеть», Екатеринбург (УГМК-Застройщик)

-8

В этой планировке, помимо сложной конфигурации, чересчур большое количество окон. С одной стороны, это живописные виды и обилие естественного света в квартире. С другой — трудности с расстановкой мебели. Книжные шкафы, комоды и системы хранения просто некуда разместить, что вынуждает либо жертвовать функциональностью, либо заказывать дорогостоящие индивидуальные решения. Даже развешивание картин или фотографий превращается в сложную задачу, так как стены практически отсутствуют.

8. ЖК «Приморский квартал», Санкт-Петербург («Мегалит — Охта Групп»)

-9

Эркерные окна, бесспорно, придают фасадам зданий архитектурную выразительность, а интерьерам — особый шарм. Однако когда подобный элемент присутствует в каждой спальне квартиры, его эстетические преимущества зачастую нивелируются целым рядом практических неудобств.

Выступающая часть помещения формирует сложное пространство с нестандартными углами, где традиционная мебель размещается крайне нерационально. Кровать или шкаф приходится сдвигать вглубь комнаты, оставляя ценную площадь эркера неиспользуемой, либо применяя дорогостоящие индивидуальные решения. Расстановка мебели превращается в головоломку, где либо страдает функциональность, либо нарушается визуальная гармония интерьера.

9. ЖК «Адали», Казань (СМУ-88)

-10

Еще одна планировка со сложной геометрией. Чтобы обыграть ее и не потерять полезную площадь, владельцу такой недвижимости придется применить смекалку. Например, с помощью сделанной на заказ мебели. Более удобными являются планировки с комнатами вытянутой прямоугольной формы, где проще расставить мебель. Но такая форма в случае с этой планировкой, по всей видимости, только у одной комнаты.

10. ЖК «Время», Москва (Bestcon)

-11

Здесь вход в один из совмещенных санузлов расположен рядом с кухней открытой планировки: все запахи и пары из санузла мгновенно могут попасть в обеденную зону. Впрочем, установка мощной вытяжки на кухне и вентилятора в санузле решит этот вопрос. Дверь в санузле при этом должна быть максимально герметичной. Это не решает проблему, но немного смягчает последствия.

Ранее портал Всеостройке.рф назвал ТОП-10 провалов на рынке недвижимости 2025 года.

А вы хотели бы жить в квартире с нестандартной планировкой?