Добавить в корзинуПозвонить
Найти в Дзене
Ремонт с Прорабом

Кейс: пошаговый ремонт студии 30 кв. м в ЖК Hide

Объект: Квартира 30 кв. м в ЖК Hide. Исходное состояние: Базовый ремонт от застройщика. На момент нашего захода предыдущая бригада успела залить наливной пол и перенести несколько розеток. Первой задачей, с которой нам пришлось работать, стало наследие предыдущих мастеров — наливной пол с заметными неровностями, особенно в зоне установки напольных конвекторов. Поскольку бюджет заказчика не позволял полностью переделывать основание, этот момент зафиксировали и приняли решение работать с тем, что имеем, найдя оптимальное решение в рамках поставленных задач. Наливной пол был выполнен с некоторыми неровностями, особенно в зоне установки напольных конвекторов. К сожалению, бюджет заказчика не позволял полностью переделывать основание. Приняли решение оставить как есть, зафиксировав этот момент. Что ж, работаем с тем, что имеем, и двигаемся дальше. Любой ремонт, если он не с нуля, мы начинаем с проверки инженерных сетей. Электрика — это безопасность и комфорт, поэтому здесь не бывает мелоч
Оглавление

Объект: Квартира 30 кв. м в ЖК Hide.

Исходное состояние: Базовый ремонт от застройщика. На момент нашего захода предыдущая бригада успела залить наливной пол и перенести несколько розеток.

Первой задачей, с которой нам пришлось работать, стало наследие предыдущих мастеров — наливной пол с заметными неровностями, особенно в зоне установки напольных конвекторов. Поскольку бюджет заказчика не позволял полностью переделывать основание, этот момент зафиксировали и приняли решение работать с тем, что имеем, найдя оптимальное решение в рамках поставленных задач.

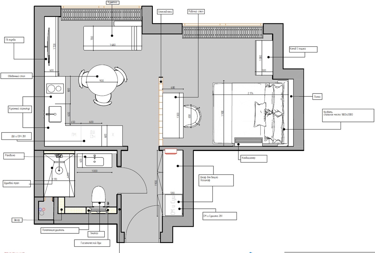
План квартиры
План квартиры

Наливной пол был выполнен с некоторыми неровностями, особенно в зоне установки напольных конвекторов. К сожалению, бюджет заказчика не позволял полностью переделывать основание. Приняли решение оставить как есть, зафиксировав этот момент. Что ж, работаем с тем, что имеем, и двигаемся дальше.

-2
-3

Шаг 1: Ревизия и доработка электрики

Любой ремонт, если он не с нуля, мы начинаем с проверки инженерных сетей. Электрика — это безопасность и комфорт, поэтому здесь не бывает мелочей.

Мы провели полную диагностику существующих линий:

  1. Прозвонили кабели, чтобы убедиться в отсутствии обрывов и коротких замыканий.
  2. Сверили электроточки с дизайн-проектом.

Поскольку полная замена проводки не планировалась, мы дополнили существующую сеть: проложили новые кабели к точкам, которых не хватало, и установили подрозетники в заранее подготовленные места.

Ванная: подготовка и плиточные работы

Параллельно с электрикой мы приступили к самому трудоемкому этапу — санузлу. Стены от застройщика уже были оштукатурены, что немного упростило задачу.

Вот последовательность наших действий:

Монтаж инсталляции и короба. Сначала установили инсталляцию для подвесного унитаза и смонтировали вокруг нее прочный короб из влагостойкого гипсокартона.

-4

Формирование душевой зоны. Мы залили душевой подиум и установили трап для слива воды, строго выдержав все уклоны.

Провекра уклона плитки в районе душевого трапа
Провекра уклона плитки в районе душевого трапа

Гидроизоляция. После того как все конструкции были готовы, мы выполнили комплексную обмазочную гидроизоляцию пола и стен в мокрых зонах. Это критически важный этап, который защитит от протечек в будущем.

-6

Укладка плитки. Когда гидроизоляция полностью высохла, наши мастера приступили к укладке керамогранита. Работа кропотливая, требующая внимания к каждой детали — от ровности швов до точности подрезки.

Зонирование светом — перегородка из стеклоблоков

Одной из "фишек" проекта стала перегородка из стеклоблоков. Она элегантно разделила зоны кухни-гостиной и спальни, при этом не "съедая" пространство и пропуская естественный свет.

Монтаж стеклоблоков требует аккуратности и использования специальных клеевых смесей и армирующих прутков для прочности конструкции. Результат получился легким и воздушным.

-8

Малярные работы — подготовка к финишу

Когда все "грязные" и "мокрые" процессы, включая укладку плитки и стеклоблоков, были завершены, мы приступили к финишной отделке стен. Этот этап включает в себя шпаклевку, шлифовку, грунтовку и, наконец, покраску. Качественная "малярка" создает фон для всего интерьера и подготавливает квартиру к финальному преображению.

Единое полотно пола: укладка клеевого кварцвинила

Следующим шагом стал монтаж напольного покрытия. Выбор пал на клеевой кварцвинил. Здесь мы снова вернулись к проблеме неровного основания. Клеевой кварцвинил не прощает дефектов пола, а бюджет заказчика исключал полный перезалив.

-10

Мы нашли компромиссное, но рабочее решение: локальный ремонт основания. Аккуратно сошлифовали самые заметные бугры и точечно заполнили впадины быстросохнущим ремонтным составом. Это позволило с минимальными затратами подготовить поверхность к качественной укладке, после чего мы уложили кварцвинил на клей и прокатали его тяжелым валиком. В результате удалось создать единое бесшовное полотно, которое визуально объединило все зоны квартиры.

Так выглядит кварцвиниловый пол в финальном исполнении
Так выглядит кварцвиниловый пол в финальном исполнении

Чистовой монтаж: последние штрихи

Наступает этап, когда объект обретает свой финальный облик.

  • Электрика: На свои места устанавливаются розетки, выключатели, светильники и трековые системы, которые завершают световую схему проекта.
  • Сантехника: В санузле подключается подвесной унитаз, устанавливается раковина со смесителем и душевая система. Проверяется герметичность всех соединений.

Именно эти детали превращают ремонт в живой и функциональный интерьер.

Завершение работ

От стандартной «коробки» от застройщика мы пришли к стильному и продуманному пространству. После завершения всех монтажных работ мы провели генеральный клининг и передали готовый объект и ключи заказчику. Проект реализован.

Этот проект в ЖК Hide — один из многих наших реализованных объектов в студиях. Если вы тоже планируете ремонт компактной квартиры, ознакомьтесь с нашими услугами, ценами и условиями работы: Ремонт квартиры-студии под ключ

А сейчас финальные фото:

Общий вид

-12
-13
-14
-15
-16
-17
-18

Ванная

-19
-20
-21
-22

Если вам интересна тема ремонта небольших квартир, рекомендуем ознакомиться с нашим пошаговым обзором другого объекта площадью 29 кв. м.

---

Меня зовут Фёдор Прорабофф — руковожу бригадой по ремонту квартир в Москве. Мы работаем с частными заказчиками и строительными компаниями. Сайт: remkontora.ru

Хотите ремонт с вниманием к деталям или нужна консультация? Оставьте Заявку на бесплатный замер и смету.

Связаться со мной:

Следите за новостями и примерами работ в нашей группе ВК.