Найти в Дзене

Проект уютного дома в чеховском стиле

Представьте себе дом, в котором нет ничего лишнего — только продуманные детали, уютные уголки и гармоничное пространство для жизни. Дом, где дети счастливо играют, где можно собраться всей семьей за ужином в просторной гостиной, а вечером уединиться в своей спальне или на террасе с книгой. Именно таким стал этот проект — 72 квадратных метра, воплотившие в себе мечту о комфортном, красивом и функциональном жилье. Этот дом создан для семьи с одним или двумя детьми, где каждый метр используется разумно, а атмосфера пропитана теплом и уютом. Каждая спальня — это не просто комната, а личное пространство, где можно отдохнуть и набраться сил. Встроенные системы хранения позволяют поддерживать порядок, а продуманное расположение окон наполняет комнаты светом. Сердце дома — гостиная с вторым светом, которая визуально кажется больше, чем есть на самом деле. Высокие потолки создают ощущение простора, а выход на террасу размывает границы между интерьером и природой. Шикарная кухня — мечта любой хо
Оглавление

Дом, где каждый квадратный метр наполнен теплом

Представьте себе дом, в котором нет ничего лишнего — только продуманные детали, уютные уголки и гармоничное пространство для жизни. Дом, где дети счастливо играют, где можно собраться всей семьей за ужином в просторной гостиной, а вечером уединиться в своей спальне или на террасе с книгой. Именно таким стал этот проект — 72 квадратных метра, воплотившие в себе мечту о комфортном, красивом и функциональном жилье.

Этот дом создан для семьи с одним или двумя детьми, где каждый метр используется разумно, а атмосфера пропитана теплом и уютом.

Вид на террасу и входную группу
Вид на террасу и входную группу

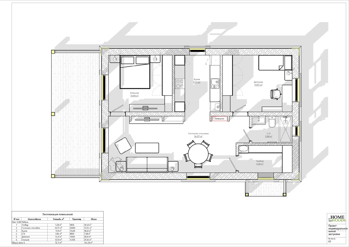
Планировка: удобство для каждого члена семьи

1. Две уютные спальни (по 14 м²)

Каждая спальня — это не просто комната, а личное пространство, где можно отдохнуть и набраться сил. Встроенные системы хранения позволяют поддерживать порядок, а продуманное расположение окон наполняет комнаты светом.

2. Просторная гостиная с выходом на террасу

Сердце дома — гостиная с вторым светом, которая визуально кажется больше, чем есть на самом деле. Высокие потолки создают ощущение простора, а выход на террасу размывает границы между интерьером и природой.

3. Кухня с собственным двориком

Шикарная кухня — мечта любой хозяйки. Здесь удобно готовить, а выход в закрытый дворик позволяет наслаждаться утренним кофе в тишине, без посторонних глаз.

4. Удобный санузел с душевой и окном

Даже в санузле продумана каждая деталь: душевая кабина, естественное освещение через окно и эргономичная планировка.

5. Балкон-кабинет (или детская зона)

Дополнительное пространство, куда можно попасть по вертикальной лестнице из гостиной. Здесь может быть кабинет, игровая для детей или даже место для гостей.

Планировка дома
Планировка дома
Вид на террасу
Вид на террасу
Вид на террасу и входную группу
Вид на террасу и входную группу
Вид на входную группу
Вид на входную группу
Вид на террасу и входную группу
Вид на террасу и входную группу

Архитектура в чеховском стиле: красота, которая вдохновляет

Этот дом не только удобный, но и по-настоящему красивый. В его облике угадываются лучшие традиции загородной архитектуры:

  • Штукатурные стены — благородная текстура и долговечность.
  • Резные наличники — изящный декор, придающий дому индивидуальность.
  • Каменный цоколь — солидность и защита от влаги.
  • Резные элементы на углах дома — тонкие детали, которые делают фасад живым.

Такой дом не останется незамеченным: он будет радовать глаз хозяев и вызывать восхищение у гостей.

Почему этот дом — мечта для семьи?

Компактный, но просторный — 72 м², которые используются максимально эффективно.
Продуманная планировка — отдельные спальни, общая зона, приватные дворики.
Уютная атмосфера — второй свет, терраса, балкон-кабинет.
Красота и стиль — дом, который выглядит дорого и уютно.

Это не просто дом — это место, где рождаются воспоминания. Где дети растут в безопасности и комфорте, где вечера проходят за семейными ужинами, а утро начинается с чашки кофе в собственном дворике.

Идеальный дом для тех, кто ценит разумный подход

Этот проект доказывает, что можно жить в красивом, удобном и душевном доме без лишних затрат. Здесь нет гигантских площадей, требующих огромных ресурсов на содержание, но есть все необходимое для счастливой жизни семьи.

Почему этот дом выбирают?

Доступная стоимость строительства — простая конструкция и рациональные материалы.
Низкие эксплуатационные расходы — продуманная теплоизоляция и компактные коммуникации.
Уют и функциональность — ничего лишнего, только то, что нужно для жизни.
Нестареющая классика — дом в чеховском стиле всегда будет выглядеть элегантно.

Это не просто дом — это разумный выбор для тех, кто хочет жить красиво, но без лишних трат.

Мечтайте о таком доме. Стройте его. Живите в нем счастливо. 🏡✨

Обращайтесь за проектом!