Найти в Дзене
INMYROOM

До и после: как в панельке бюджетно преобразили однушку 37 м² с отделкой от застройщика

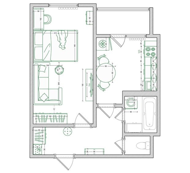
Без перепланировки обустроили яркое и современное пространство Дизайнеры Екатерина Трусова и Оксана Разумова из студии AURA разработали нетривиальный интерьер для молодой семейной пары, учитывая их пожелания. Для оформления они выбрали современный дизайн и смелое сочетание цветов: бордового, зеленого и оливкового. Место: г. Воронеж
Метраж: 37 м²
Высота потолков: 2,7 м
Количество комнат: 1
Санузел: 1
Бюджет: 400 тыс. рублей
Дизайн: студия AURA
Фото: Екатерина Трусова
Стилист: Оксана Разумова На начало проекта интерьер выглядел блекло: на стенах висели неактуальные обои, не соответствующие современным трендам и создающие ощущение холодности. Пространство требовало кардинального преобразования, которое наполнило бы его новыми цветами и стилем, сделав уютным и актуальным для жизни. Из-за ограниченного бюджета во всех комнатах оставили обои от застройщика, они были покрашены поверх краской для обоев. Гарнитур купили готовый, газовую плиту оставили от застройщика. Холодильник и микроволновку
Оглавление

Без перепланировки обустроили яркое и современное пространство

Дизайнеры Екатерина Трусова и Оксана Разумова из студии AURA разработали нетривиальный интерьер для молодой семейной пары, учитывая их пожелания. Для оформления они выбрали современный дизайн и смелое сочетание цветов: бордового, зеленого и оливкового.

Место: г. Воронеж
Метраж: 37 м²
Высота потолков: 2,7 м
Количество комнат: 1
Санузел: 1
Бюджет: 400 тыс. рублей
Дизайн: студия AURA
Фото: Екатерина Трусова
Стилист: Оксана Разумова
 📷
📷

Квартира до ремонта

На начало проекта интерьер выглядел блекло: на стенах висели неактуальные обои, не соответствующие современным трендам и создающие ощущение холодности. Пространство требовало кардинального преобразования, которое наполнило бы его новыми цветами и стилем, сделав уютным и актуальным для жизни.

-3
-4
-5
-6

Кухня после ремонта

Из-за ограниченного бюджета во всех комнатах оставили обои от застройщика, они были покрашены поверх краской для обоев. Гарнитур купили готовый, газовую плиту оставили от застройщика. Холодильник и микроволновку скрыли за системой реек от пола до потолка, создав впечатление аккуратной и упорядоченной комнаты.

 📷
📷
 📷
📷
 📷
📷
 📷
📷

Комната после ремонта

В одной комнате расположены основные функциональные зоны: спальня, гостиная, гардероб, рабочая зона и зона для макияжа. Особенностью интерьера стали яркие цветные выкрасы-коробочки, плавно переходящие на потолок. Это визуально разделяет пространство на отдельные секции и добавляет яркие акценты, создавая атмосферу уюта и оригинальности.

 📷
📷

Зеленый диван искали очень долго, так как заказчики выдвинули определенные требования: он должен иметь оттоманку и компактный размер. ТВ-тумба с деревянной текстурой прекрасно гармонирует с основными оттенками интерьера.

Для систем хранения был сделан выбор в пользу готовых шкафов с маркетплейса, что позволило сэкономить бюджет. Объем хранения увеличили за счет антресолей, расположенных над шкафами в спальне и прихожей. Кровать выбрали с подъемным механизмом, обеспечив еще больше пространства для размещения вещей

 📷
📷
 📷
📷
Картина над диваном нарисована нами самостоятельно, сюжет картины — запрос заказчиков.
 📷
📷

Прихожая после ремонта

В прихожей предусмотрели большой шкаф с закрытыми секциями, которые эффективно скрывают сезонную обувь и верхнюю одежду. Также есть открытая зона с вешалками для повседневных вещей. Напротив входной двери — подвесной стеллаж, окрашенный в тон стен. Зеркало арочной формы визуально увеличивает пространство, а круглый пуф добавляет уюта и удобства.

 📷
📷
 📷
📷

Санузел после ремонта

Верхняя часть стен в санузле и ванной комнате выкрашена в оливковый цвет. В санузле в тот же цвет покрашен потолок. В туалете стены оклеили обоями в сочетании с покрашенной вагонкой. Для удобства доступа к коммуникациям был организован люк. В ванной, с учетом ограниченного бюджета, использовали самоклеящуюся плитку, которая позволила удобно и быстро обновить пространство.

 📷
📷
 📷
📷
 📷
📷

Хотите, чтобы ваш проект был опубликован на INMYROOM? Присылайте фотографии интерьера на wow@inmyroom.ru.

Сейчас читают:

Спасибо, что читаете нас! ❤️

Если материал был полезен — поставьте лайк и отправьте другу.

А ещё больше интерьерных идей, советы экспертов и классные румтуры в нашем Telegram-канале. Подписывайтесь, вам точно понравится!