Найти в Дзене
Войти
Prorooms
106 подписчиков
Подписаться
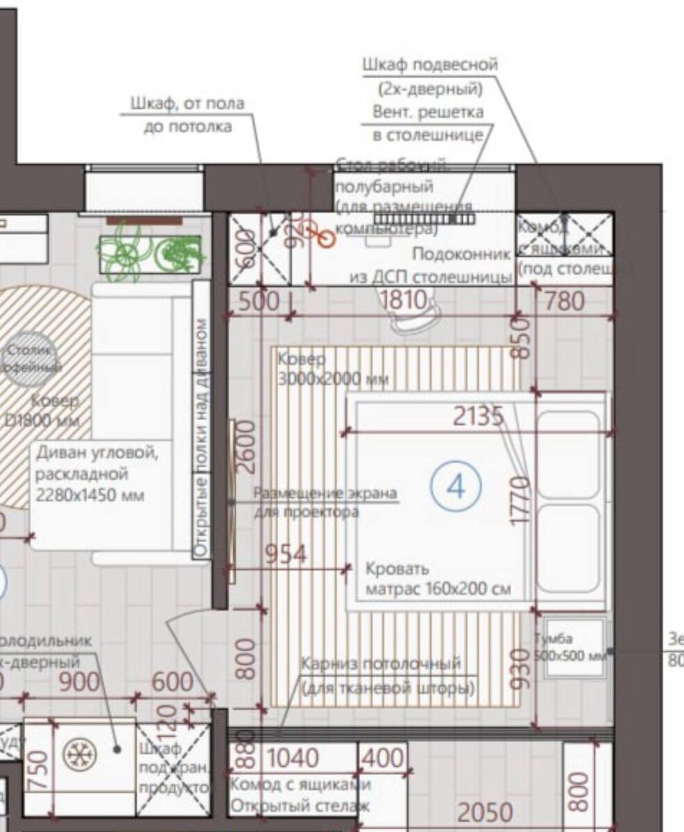
Видите здесь ошибку
31 июля
31 июл
~1 мин
Видите здесь ошибку?
Поделитесь в комментариях❤️