Добавить в корзинуПозвонить
Найти в Дзене

➡️ А вот и планировки на Елизаровской

➡️ А вот и планировки на Елизаровской Собрали для вас приятные варианты от студии до «евртрёшки». Всего получилось 4. Если вы вчера не видели пост про сам ЖК, он совсем немного выше 😉 А вот и квартиры! Напоминаем,что на время строительства ставка по семейной ипотеке всего 2,2% 🔥 🔘Студия с балконом, 24,04 м² - для студента или себя любимого - прихожая — отдельно - прямоугольник удобно зонировать - 9,1 млн ₽ 🔘1-Е квартира с угловым окном, 40,45 м² - для пары места хватит с головой! - есть кладовая и ниша для шкафа в прихожей - большая ванная, балкон - 14,5 млн ₽ 🔘2-Е вариант — эргономичный, 50,73 м² - просто супер для семьи с ребёнком - 2 просторные комнаты и большая кухня-гостиная - раздельный санузел - 25,9 млн ₽ 🔘3-Е — большая квартира, 73,15 м² - для семьи с 2 детьми, или если нужен кабинет - есть балкон и терраса - два санузла - 50,7 млн ₽ Понравилось? Пишите нам ЕЛИЗАРОВСКАЯ, будем смотреть ещё больше планировок и выбирать этаж! Классный застройщик уже начал строить в

➡️ А вот и планировки на Елизаровской

Собрали для вас приятные варианты от студии до «евртрёшки». Всего получилось 4. Если вы вчера не видели пост про сам ЖК, он совсем немного выше 😉

А вот и квартиры! Напоминаем,что на время строительства ставка по семейной ипотеке всего 2,2% 🔥

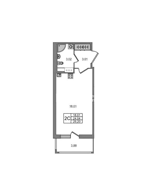
🔘Студия с балконом, 24,04 м²

- для студента или себя любимого

- прихожая — отдельно

- прямоугольник удобно зонировать

- 9,1 млн ₽

🔘1-Е квартира с угловым окном, 40,45 м²

- для пары места хватит с головой!

- есть кладовая и ниша для шкафа в прихожей

- большая ванная, балкон

- 14,5 млн ₽

🔘2-Е вариант — эргономичный, 50,73 м²

- просто супер для семьи с ребёнком

- 2 просторные комнаты и большая кухня-гостиная

- раздельный санузел

- 25,9 млн ₽

🔘3-Е — большая квартира, 73,15 м²

- для семьи с 2 детьми, или если нужен кабинет

- есть балкон и терраса

- два санузла

- 50,7 млн ₽

Понравилось? Пишите нам ЕЛИЗАРОВСКАЯ, будем смотреть ещё больше планировок и выбирать этаж! Классный застройщик уже начал строить вам новую жизнь, не забудьте встать за ней в очередь 👉

-2
-3
-4
-5