Добавить в корзинуПозвонить
Найти в Дзене

Дом на склоне: 170 квадратов счастья для двоих и двух собак

Величественный лес, древний и безмолвный, обнимает склон, уходящий в туманную даль. А на этом склоне, будто вырастая из самой земли, стоит дом – не навязанный природе, а рожденный ею. Его линии мягко повторяют изгибы холма, крыша будто прикрывает жилье, как крона дерева, а большие окна отражают небо и верхушки сосен, растворяя границы между внутренним миром и внешним. Здесь нет показной роскоши, ничего кричащего или нарочитого – только продуманный до мелочей уют, воздушный простор и те самые, едва уловимые детали, которые превращают простое жилище в дом мечты. Тепло дерева, игра света на стенах, тихий скрип половиц под ногами – все здесь дышит гармонией. Это не просто строение, а продолжение пейзажа, место, где время замедляет ход, а душа наконец обретает покой. Прихожая: простор и удобство
Широкая прихожая встречает гостей не теснотой и нагромождением вещей, а светом и воздухом. Гардеробная прячет верхнюю одежду, а небольшой санузел избавляет от необходимости бежать через весь дом пос

Величественный лес, древний и безмолвный, обнимает склон, уходящий в туманную даль. А на этом склоне, будто вырастая из самой земли, стоит дом – не навязанный природе, а рожденный ею. Его линии мягко повторяют изгибы холма, крыша будто прикрывает жилье, как крона дерева, а большие окна отражают небо и верхушки сосен, растворяя границы между внутренним миром и внешним.

Здесь нет показной роскоши, ничего кричащего или нарочитого – только продуманный до мелочей уют, воздушный простор и те самые, едва уловимые детали, которые превращают простое жилище в дом мечты. Тепло дерева, игра света на стенах, тихий скрип половиц под ногами – все здесь дышит гармонией. Это не просто строение, а продолжение пейзажа, место, где время замедляет ход, а душа наконец обретает покой.

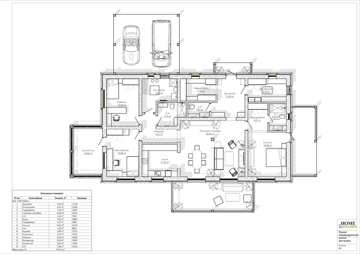
Планировка дома
Планировка дома

Прихожая: простор и удобство
Широкая прихожая встречает гостей не теснотой и нагромождением вещей, а светом и воздухом. Гардеробная прячет верхнюю одежду, а небольшой санузел избавляет от необходимости бежать через весь дом после долгой прогулки с собаками.

Юг
Юг
Восток
Восток
Север
Север
Северо-запад
Северо-запад
Юго-запад
Юго-запад
Северо-восток
Северо-восток

Гостиная и терраса: жизнь на весу
Гостиная – сердце дома. Большие окна, мягкий свет, диван, на котором так удобно свернуться калачиком с книгой. Но главное – выход на крытую террасу, которая будто парит над склоном. Здесь можно пить утренний кофе, наблюдая, как солнце разгоняет туман над лесом, или вечером сидеть с бокалом вина, слушая шелест листьев.

Кухня: где готовить – удовольствие
Просторная, удобная, с видом, от которого даже обычная варка супа превращается в медитацию. Хозяйка может стоять у плиты и любоваться пейзажем за окном – а разве не этого не хватает в городских квартирах?

Хозяйская спальня: тихий уголок
Спальня – место, где царит покой. Собственная терраса, выходящая на северо-восток, всегда в тени дома. Здесь прохладно даже в самый жаркий день, а утром не будят слепящие лучи. Гардеробная и санузел под рукой – никакой суеты.

Кабинеты: работа и вдохновение
Два кабинета – два мира. Один – для хозяина, строгий, лаконичный, где все под рукой. Второй – для хозяйки, с зимним садом, залитым южным солнцем. Зелень на фоне леса за окном – какой простор для мыслей!

Котельная: царство собак
Даже котельная здесь не просто техническое помещение – это дом для двух преданных псов. Тепло, уютно, своя лежанка. Разве не рай для четвероногих друзей?

Навес для машин и величественный лес вокруг
Две машины спрятаны под навесом – никакой возни с расчисткой снега или поиском тени в жару. А вокруг – только лес, тишина и ощущение, что весь мир остался где-то далеко.

Заключение
Этот дом – не просто 170 квадратов. Это место, где каждый день начинается с красивых видов, где удобно и людям, и собакам, где есть и простор для гостей, и укромные уголки для уединения. Дом, в котором хочется жить.

Разве не об этом мечтается?

Доверьте нам свой проект – и мы сделаем для вас дом, в который захочется возвращаться. Дом, который будет вашим отражением.