Найти в Дзене
Мастерская дизайнера

Ванная комната с душевой, где гармонично сочетаются песочные и графитовые оттенки натурального камня.

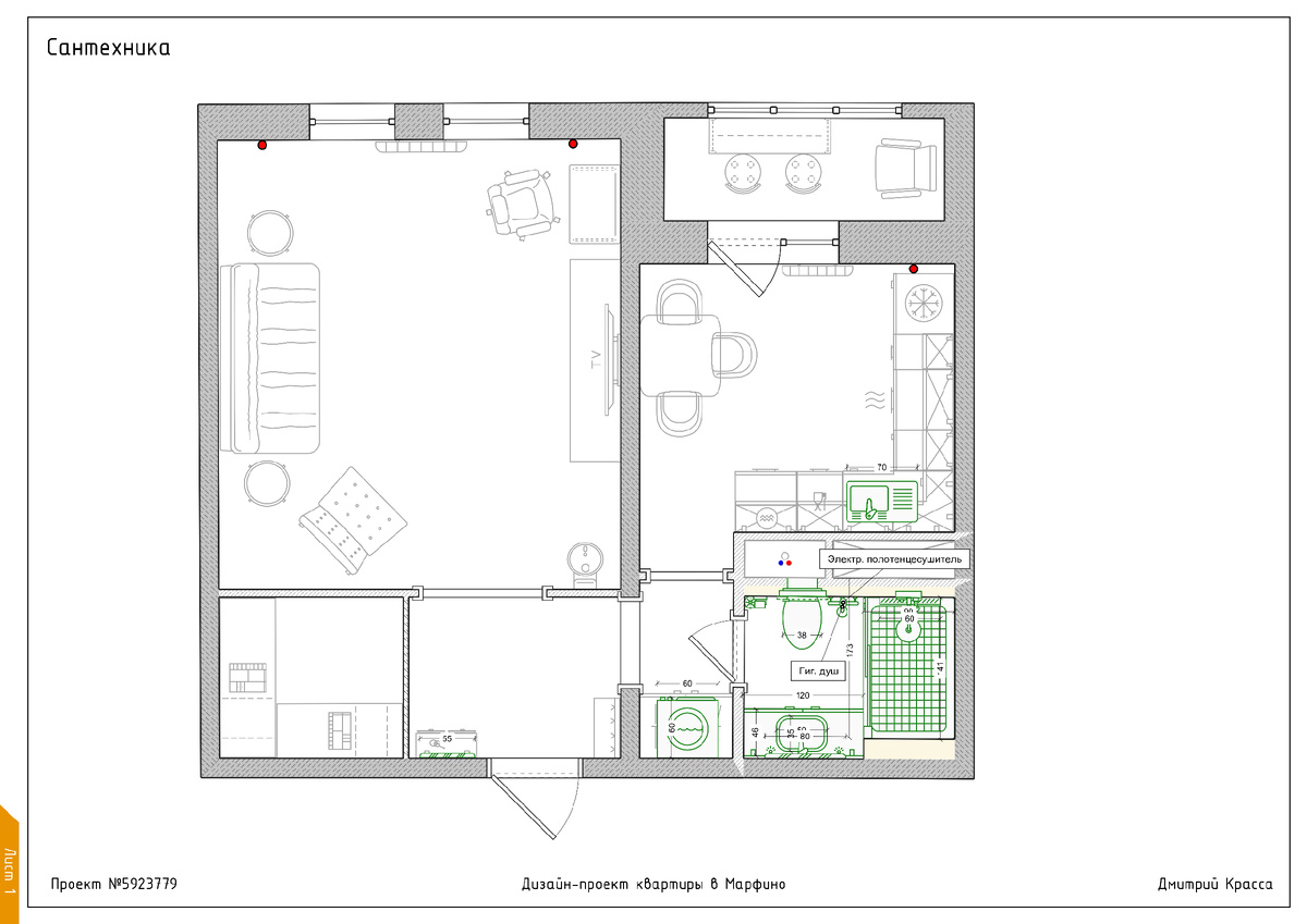
В этой заметке я делюсь новыми результатами работы над дизайном квартиры для сдачи в аренду в Марфино, Москва. Предыдущие визуализации в Планоплане можно увидеть по ссылке. Концептуальные визуализации в Планоплане отлично передали дизайнерские подходы для всех комнат, помогая нам выбрать материалы для пола, стен и дверей для отделки квартиры. Однако дизайн санузла остался не полностью проработанным в том отчете. Для его визуализации я воспользовался программами SketchUp и D5 Render. Они позволили мне детально проработать раскладку плитки на полу и стенах, создав эффектный и завершенный результат. Посмотрим план санузла - его я создал в Remplanner. Это небольшое пространство с подвесным унитазом напротив тумбы с раковиной. Расстояние между ними должно быть достаточным. Я советую выбрать инсталляцию с регулировкой глубины установки — от 12 см. Это уменьшит глубину короба для инсталляции. Унитаз тоже компактный — всего 48 см в глубину. Тумба для раковины и плитка подобраны нами прямо в

В этой заметке я делюсь новыми результатами работы над дизайном квартиры для сдачи в аренду в Марфино, Москва. Предыдущие визуализации в Планоплане можно увидеть по ссылке.

Концептуальные визуализации в Планоплане отлично передали дизайнерские подходы для всех комнат, помогая нам выбрать материалы для пола, стен и дверей для отделки квартиры. Однако дизайн санузла остался не полностью проработанным в том отчете.

Для его визуализации я воспользовался программами SketchUp и D5 Render. Они позволили мне детально проработать раскладку плитки на полу и стенах, создав эффектный и завершенный результат.

Посмотрим план санузла - его я создал в Remplanner.

План сантехники в Remplanner
План сантехники в Remplanner

Это небольшое пространство с подвесным унитазом напротив тумбы с раковиной. Расстояние между ними должно быть достаточным. Я советую выбрать инсталляцию с регулировкой глубины установки — от 12 см.

Инсталляция регулируемой глубины монтажа
Инсталляция регулируемой глубины монтажа

Это уменьшит глубину короба для инсталляции. Унитаз тоже компактный — всего 48 см в глубину.

Монтажные размеры компактного унитаза
Монтажные размеры компактного унитаза

Тумба для раковины и плитка подобраны нами прямо в салоне.

Фото тумбы с раковиной с образцами плитки из салона Керама Марацци
Фото тумбы с раковиной с образцами плитки из салона Керама Марацци
Выбор сочетаний плитки в салоне Керама Марацци
Выбор сочетаний плитки в салоне Керама Марацци

Важно не только решить технические вопросы, но и создать гармоничное цветовое решение. Без личного осмотра коллекции это сделать нелегко. Поэтому после разработки концепции мы с клиентом отправились в салон, чтобы увидеть все своими глазами.

Теперь, когда мы определились с дизайном, нужно создать более точную трехмерную модель санузла в SketchUp. Это позволит наглядно показать все детали и рассчитать необходимое количество плитки.

В этой концепции я добавил ряд стеклоблоков. Они служат для эстетичного заполнения проема под душевую перегородку шириной 120 см. Устанавливать более широкую перегородку в 140 см нецелесообразно, так как она бы мешала двери, которая находится рядом с тумбой.

Визуализация в D5 Render
Визуализация в D5 Render
Визуализация в D5 Render
Визуализация в D5 Render
Визуализация в D5 Render
Визуализация в D5 Render
Визуализация в D5 Render
Визуализация в D5 Render
Визуализация в D5 Render
Визуализация в D5 Render
Визуализация в D5 Render
Визуализация в D5 Render

Получилась композиция из двух зон: светлой передней части для умывания и гигиены, и уютной темной душевой.

Решение отличное. Теперь его нужно воплотить в жизнь.

ДМИТРИЙ КРАССА - отзывы, фото проектов, сайт, Дизайнеры интерьера, Москва, RU | Houzz Россия
Дизайн интерьера в Планоплане
Мастерская дизайнера