Добавить в корзинуПозвонить
Найти в Дзене
Мастерская дизайнера

Дизайн квартиры для сдачи в аренду в Марфино. Концепция создана в Планоплан.

Прежде чем выбирать отделочные материалы в салонах и магазинах, важно иметь представление о том, как будет выглядеть квартира, какие цвета и материалы вы планируете использовать, и как они будут сочетаться в интерьере. Для этого отлично подходит российская программа для дизайна интерьера — Планоплан. С её помощью можно создать план квартиры, сделать её трёхмерную модель и получить фотореалистичные визуализации. Давайте посмотрим на примере новой квартиры в Москве, которую я сейчас оформляю для сдачи в аренду. Трехмерная модель создается с использованием каталога готовых моделей и собственных моделей мебели, которые я загрузил для этого проекта. Обзорные виды дают общее представление о квартире. Фотореалистичные визуализации комнат дают еще более наглядное представление. Для санузла с душем разработан только общий эскиз. На его основе предстоит выбрать плитку, а затем создать ее раскладку и визуализацию. Мы отправляемся в салон с этими исходниками для подбора материалов отделки. У нас т
Оглавление

Прежде чем выбирать отделочные материалы в салонах и магазинах, важно иметь представление о том, как будет выглядеть квартира, какие цвета и материалы вы планируете использовать, и как они будут сочетаться в интерьере.

Коллаж с визуализациями и планом квартиры
Коллаж с визуализациями и планом квартиры

Для этого отлично подходит российская программа для дизайна интерьера — Планоплан. С её помощью можно создать план квартиры, сделать её трёхмерную модель и получить фотореалистичные визуализации.

Давайте посмотрим на примере новой квартиры в Москве, которую я сейчас оформляю для сдачи в аренду.

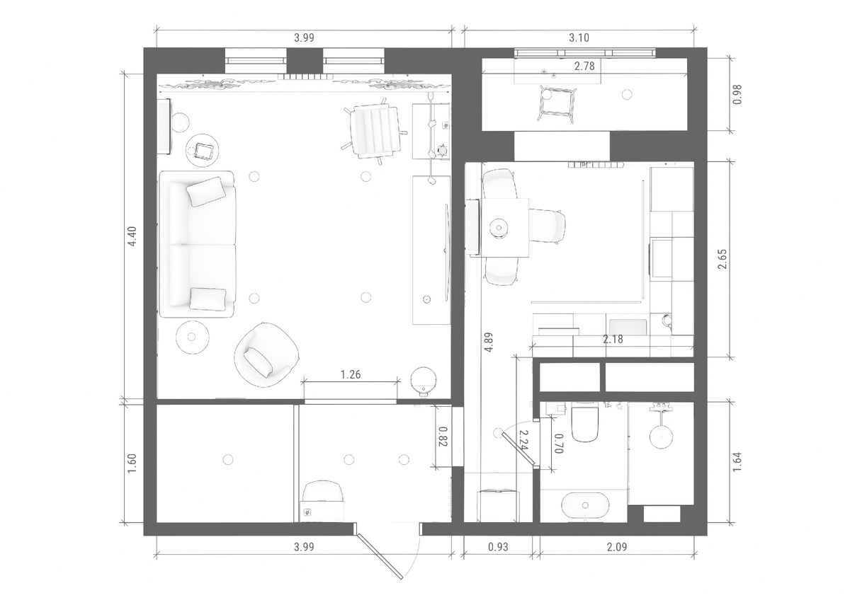
Планировка квартиры в Планоплане
Планировка квартиры в Планоплане

Трехмерная модель создается с использованием каталога готовых моделей и собственных моделей мебели, которые я загрузил для этого проекта. Обзорные виды дают общее представление о квартире.

Общий вид квиртиры в Планоплане
Общий вид квиртиры в Планоплане

Фотореалистичные визуализации комнат дают еще более наглядное представление.

Жилая комната

Визуализация жилой комнаты в Планоплане
Визуализация жилой комнаты в Планоплане
Визуализация жилой комнаты в Планоплане
Визуализация жилой комнаты в Планоплане
Визуализация жилой комнаты в Планоплане
Визуализация жилой комнаты в Планоплане
Визуализация жилой комнаты в Планоплане
Визуализация жилой комнаты в Планоплане
Общий вид жилой комнаты
Общий вид жилой комнаты

Коридор и прихожая

Вид из прихожей в Планоплане
Вид из прихожей в Планоплане
Вид из прихожей в Планоплане
Вид из прихожей в Планоплане
Прихожая в Планоплане
Прихожая в Планоплане
Вид из прихожей в Планоплане
Вид из прихожей в Планоплане
Общий вид прихожей
Общий вид прихожей

Кухня и лоджия

Вид на кухню из коридора
Вид на кухню из коридора
Вид на кухню со стороны лоджии
Вид на кухню со стороны лоджии
Кухня в Планоплане
Кухня в Планоплане
Вид на кухню со стороны лоджии
Вид на кухню со стороны лоджии
Кухня в Планоплане
Кухня в Планоплане
Общий вид кухни
Общий вид кухни
Общий вид прихожей
Общий вид прихожей

Санузел

Для санузла с душем разработан только общий эскиз. На его основе предстоит выбрать плитку, а затем создать ее раскладку и визуализацию.

Общий вид санузла
Общий вид санузла

Мы отправляемся в салон с этими исходниками для подбора материалов отделки. У нас также есть чертежи в Remplanner, которые помогают лучше понять параметры и размеры. Это тема для отдельного обзора.

p.s.

Услуги дизайна:

ДМИТРИЙ КРАССА - отзывы, фото проектов, сайт, Дизайнеры интерьера, Москва, RU | Houzz Россия

Онлайн-уроки Планоплан:

Дизайн интерьера в Планоплане

Телеграмм:

Мастерская дизайнера

Квартиры
7954 интересуются