Найти в Дзене
АртСтрой

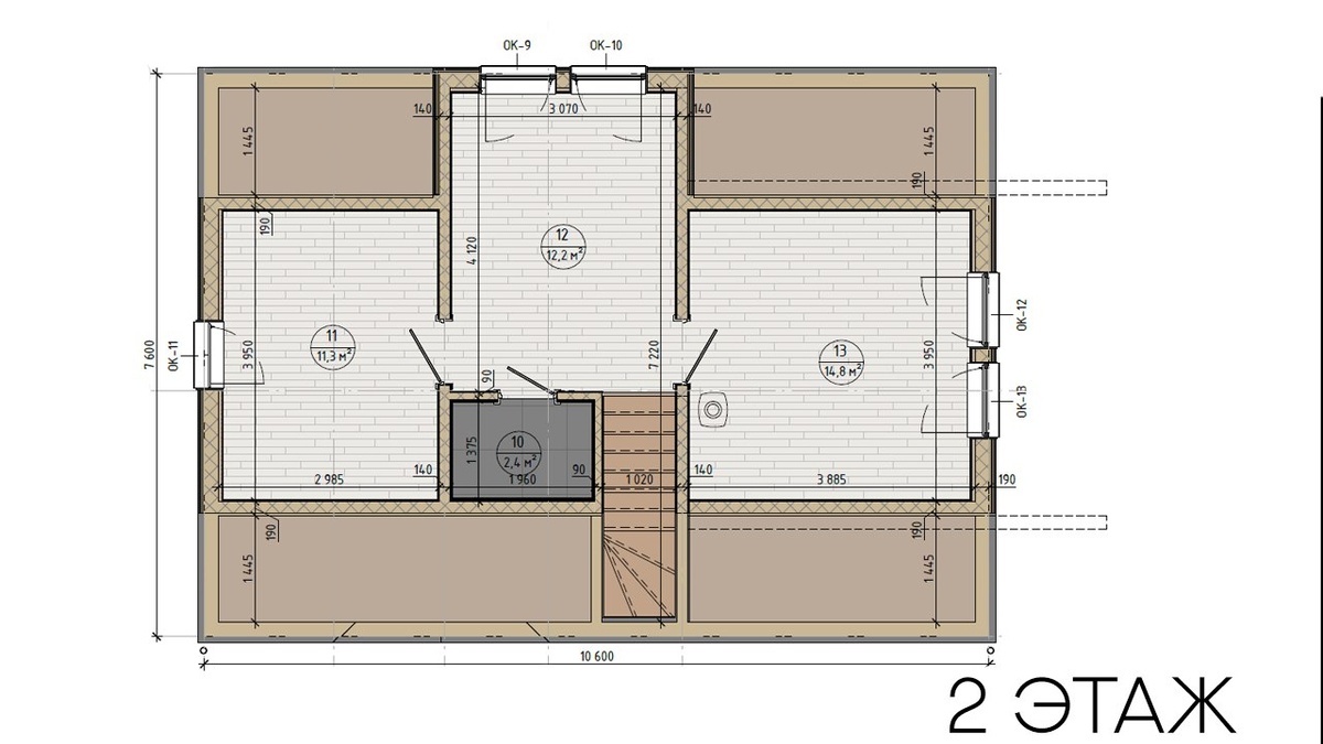
Как и обещали, делимся планировкой дома

В ответ на пост

Как и обещали, делимся планировкой дома!

🔹 Планировка дома:

✔️ Просторная кухня-гостиная с выходом на террасу

✔️ 3 спальни

✔️ Сауна

✔️ Терраса 14,6 м² + крыльцо 3,2 м²

Хотите увидеть больше? Пишите в комментариях, какие детали вас интересуют расскажем и покажем!

-2
-3
-4