Найти в Дзене
Друг Аркадий

Кутишвара - самый древний комплекс Ангкора

Кутишвара - самый древний комплекс Ангкора

🛕🎥

Смотрите видео: https://youtu.be/ZTy9Q8GDJwQ

🗿

Среди множества найденных каменных стел с надписями на санскрите и древнекхмерском языке самым выдающимся экземпляром древней эпиграфики считается стела под каталоговым номером К. 235, обнаруженная на территории современного Таиланда в местечке Сдок Кок Том.

🗿

Этот текст, состоящий из 340 строк предлагает нам ознакомиться со всей «линейкой» королей Камбоджи, начиная с легендарного основателя империи – Джайявармана II.

А вот сейчас будет интересно: вся история с основанием империи, а также хронология основываются на сведениях, почерпнутых из этой надписи, которая датируется 1053-м годом.

То есть, история и хронология Камбоджи базируются на довольно шатких основаниях – таких, как подобные надписи на стелах из песчаника.

Могли ли заказчики этой стелы иметь намерение сфальсифицировать историю и хронологию? Конечно! Таких случаев в мировой истории было достаточно.

Было бы глупо утверждать, что вся мировая история построена на откровенной лжи, но опираться при её написании на один эпиграфический источник – тоже безумие.

✍️

Но здесь речь пойдёт не о хронологии камбоджийских королей, а о храме Кутишвара, который упоминается в этой знаменитой стеле.

✍️

Санскритское слово Кутишвара можно разобрать на две составляющие: 1. «кути» – обычно переводится как хижина, обитель, келья; 2. ишвара – господь, владыка, бог.

Таким образом «Кутишвара» можно перевести как «обитель бога».

🛕

Этот храм также упоминается в надписи на камне, который был вторично использован при строительстве гигантского комплекса Бантей Кдей, расположенного по соседству. В ней говорится о посвящении этого места Шиве и возведении двух статуй – Вишну и Брахмы – Шивачарьей, одним из жрецов короля Раджендравармана в Х веке.

✍️

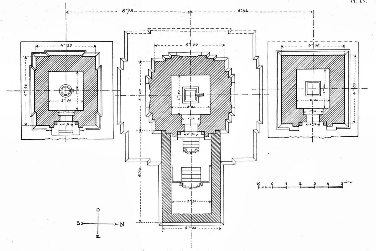
Центральная башня поднята выше, чем две другие, и также имеет зал, простирающийся на восток.

Платформа центрального храма кирпичная, но основания двух других построены из латерита.

В южной башне находится редкий для этих краёв круглый постамент, на котором когда-то должна была находиться статуя Брахмы, найденная при раскопках Анри Маршалем в начале 20-го века (см. фото). а в центральной башне, судя по всему, был лингам, который не сохранился.

В северной башне находился постамент, но статуя также отсутствует.

✍️

Анри Маршаль отметил вероятность того, что центральный храм существовал до внешней пары.

Также он обратил внимание на то, что кирпичная стена была добавлена явно позже, и она окружила весь комплекс без каких-либо признаков входа – ни ступенек, ни ворот, ни даже калитки. Зачем? Почему? Анри Маршаль поставил этот вопрос уже более ста лет назад, но никто из последующих, а также современных археологов даже не пытался решить этот археологический ребус.

😵‍💫

Анри Маршаль обследовал место и оставил подробный план расположения и описание уникального круглого постамента (см. фото).

🗿

На территории Кутишвары находятся два каменных блока с барельефами, служившие когда-то наддверными перемычками северной и южной башен. На одном из блоков мы видим изображение Брахмы, а на втором одно из самых ранних изображений легенды о Пахтании Молочного океана.

Смотрите ролик - там ещё очень много всего интересного:

https://youtu.be/ZTy9Q8GDJwQ

🚌

Наши экспедиции в Камбоджу 2025-2026:

⬇️

🛕Уникальная и насыщенная программа!

🛕Места, не исхоженные туристами!

🛕Маленькие группы!

🛕Максимальный комфорт, насколько это возможно в подобной экспедиции!

🛕Низкая цена!

⬇️

Программа тура: https://inlnk.ru/84kw17

⬆️

Для связи:

E-mail: drugarkadii@yandex.ru

Телеграм: https://t.me/mirnabludechke

WhatsApp: +79213202452

▶️Друг Аркадий

-2
-3
-4
-5
-6