Добавить в корзинуПозвонить
Найти в Дзене
ЖК Новая Ведуга

Таунхаусы в ЖК «Новая Ведуга»: какой формат выбрать?

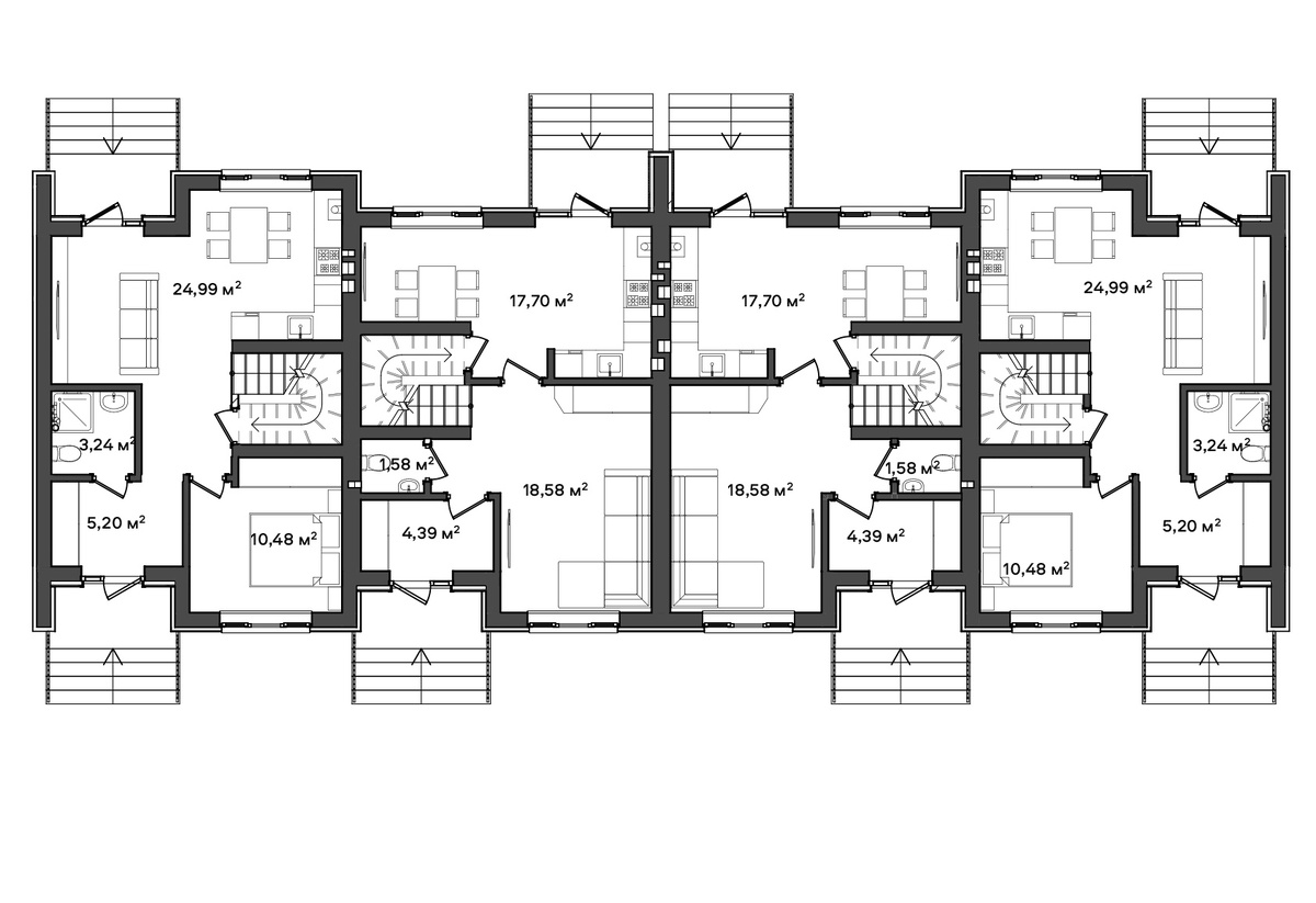
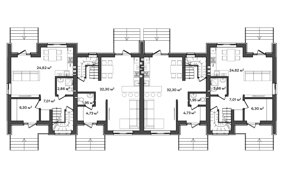
ЖК «Новая Ведуга» предлагает два популярных формата таунхаусов: 77 м² и 100 м² Оба — с индивидуальным входом, задним двориком и продуманными планировками, которые подходят как для молодых пар, так и для семей с детьми 🔑 Таунхаус 77 м² – уют и функциональность ✔ Просторная кухня-гостиная до 32 м² – место для встреч с друзьями и семейных вечеров ✔ Две спальни на втором этаже – можно использовать как гостевую или рабочий кабинет ✔ Два санузла – удобно для повседневного использования ✔ Балкон – идеально для утреннего кофе или отдыха после работы Подойдёт молодым семьям, которым важен комфорт без переплаты за лишние метры 🔑 Таунхаус 100 м² – больше пространства, больше возможностей ✔ Дополнительная комната на первом этаже – отличное решение для гостей, хобби или кабинета ✔ Большие спальни по 21 м² каждая – личное пространство для всех членов семьи ✔ Французский балкон – дополнительный свет и уют ✔ Просторный санузел с зоной для стиральной машины – всё по-настоящему удобно Подойдёт семьям

ЖК «Новая Ведуга» предлагает два популярных формата таунхаусов: 77 м² и 100 м²

Оба — с индивидуальным входом, задним двориком и продуманными планировками, которые подходят как для молодых пар, так и для семей с детьми

🔑 Таунхаус 77 м² – уют и функциональность

✔ Просторная кухня-гостиная до 32 м² – место для встреч с друзьями и семейных вечеров

✔ Две спальни на втором этаже – можно использовать как гостевую или рабочий кабинет

✔ Два санузла – удобно для повседневного использования

✔ Балкон – идеально для утреннего кофе или отдыха после работы

Подойдёт молодым семьям, которым важен комфорт без переплаты за лишние метры

🔑 Таунхаус 100 м² – больше пространства, больше возможностей

✔ Дополнительная комната на первом этаже – отличное решение для гостей, хобби или кабинета

✔ Большие спальни по 21 м² каждая – личное пространство для всех членов семьи

✔ Французский балкон – дополнительный свет и уют

✔ Просторный санузел с зоной для стиральной машины – всё по-настоящему удобно

Подойдёт семьям с детьми, которым нужно больше личного пространства

Почему выбирают «Новую Ведугу»?

Жилой комплекс расположен в 9 км от Воронежа, среди дубового леса и рядом с рекой Ведуга. Это сочетание свежего воздуха и развитой инфраструктуры поселка делает его особенно интересным для тех, кто хочет жить за городом, но быть рядом со всем необходимым

Если вы выбираете между компактностью и простором — приезжайте посмотреть своими глазами 🤝

Подробности по 📞 телефону: +7 (473) 280-08-44

Сайт: https://www.otdel-prodazh.ru/projects/zhiloy-kompleks-novaya-veduga