Π”ΠΎΠ±Π°Π²ΠΈΡ‚ΡŒ Π² ΠΊΠΎΡ€Π·ΠΈΠ½ΡƒΠŸΠΎΠ·Π²ΠΎΠ½ΠΈΡ‚ΡŒ
Найти Π² Π”Π·Π΅Π½Π΅
Pona Invest

🏠Как ΠΌΡ‹ Ρ€Π΅ΡˆΠΈΠ»ΠΈ ΠΏΡ€ΠΎΠ±Π»Π΅ΠΌΡƒ с ΠΎΠ³Ρ€ΠΎΠΌΠ½Ρ‹ΠΌ ΠΊΠΎΡ€ΠΈΠ΄ΠΎΡ€ΠΎΠΌ ΠΈ Π·Π°Ρ€Π°Π±ΠΎΡ‚Π°Π»ΠΈ 1,25 ΠΌΠ»Π½

🏠Как ΠΌΡ‹ Ρ€Π΅ΡˆΠΈΠ»ΠΈ ΠΏΡ€ΠΎΠ±Π»Π΅ΠΌΡƒ с ΠΎΠ³Ρ€ΠΎΠΌΠ½Ρ‹ΠΌ ΠΊΠΎΡ€ΠΈΠ΄ΠΎΡ€ΠΎΠΌ ΠΈ Π·Π°Ρ€Π°Π±ΠΎΡ‚Π°Π»ΠΈ 1,25 ΠΌΠ»Π½ β‚½? Как ΠΈ ΠΎΠ±Π΅Ρ‰Π°Π», Ρ€Π°ΡΡΠΊΠ°Π·Ρ‹Π²Π°ΡŽ, ΠΊΠ°ΠΊ ΠΌΡ‹ ΡΠΏΡ€Π°Π²ΠΈΠ»ΠΈΡΡŒ с Π½Π΅ΡƒΠ΄ΠΎΠ±Π½ΠΎΠΉ, я Π±Ρ‹ сказал бСсполСзной ΠΏΠ»Π°Π½ΠΈΡ€ΠΎΠ²ΠΊΠΎΠΉ. Напомню, ΠΊΠΎΡ€ΠΈΠ΄ΠΎΡ€ Π·Π°Π½ΠΈΠΌΠ°Π» 10,5(!) ΠΊΠ²Π°Π΄Ρ€Π°Ρ‚Π½Ρ‹Ρ… ΠΌΠ΅Ρ‚Ρ€ΠΎΠ², Π½ΠΎ Π½Π΅ использовался. Π’ΠΎΡ‚ Π½Π°Ρ‡Π°Π»ΠΎ этой истории, которая ΠΌΠΎΠ³Π»Π° Π½Π΅ Π½Π°Ρ‡Π°Ρ‚ΡŒΡΡπŸ˜‚ ΠŸΠΎΠ΄Ρ‹Ρ‚ΠΎΠΆΠΈΠΌ: ❌ Π£Π³ΠΎΠ» Π½Π° ΠΊΡƒΡ…Π½Π΅ с ΡˆΠ°Ρ…Ρ‚ΠΎΠΉ «съСдал» пространство; ❌ Π’ спальня Π½Π΅ Π±Ρ‹Π»ΠΎ мСста для хранСния; ❌ Π Π°ΡΡˆΠΈΡ€ΠΈΡ‚ΡŒ стСну ΠΌΠ΅ΠΆΠ΄Ρƒ ΠΊΠΎΡ€ΠΈΠ΄ΠΎΡ€ΠΎΠΌ ΠΈ санузлом нСльзя(!), ΠΏΠΎΡ‚ΠΎΠΌΡƒ Ρ‡Ρ‚ΠΎ Ρ‚Π°ΠΌ нСсущая стСна πŸ’‘ΠΠ°ΡˆΠΈ Ρ€Π΅ΡˆΠ΅Π½ΠΈΡ: 1️⃣ ΠŸΠ΅Ρ€Π΅Π½Π΅ΡΠ»ΠΈ Π²Ρ…ΠΎΠ΄ Π² спальню со стороны санузла, освободив мСсто для Π³Π°Ρ€Π΄Π΅Ρ€ΠΎΠ±Π½ΠΎΠΉ Ρƒ Π²Ρ…ΠΎΠ΄Π°; 2️⃣ ΠžΠ±Ρ‹Π³Ρ€Π°Π»ΠΈ ΠΊΡƒΡ…ΠΎΠ½Π½Ρ‹ΠΉ ΡƒΠ³ΠΎΠ»: - Π’ ΠΎΠ΄Π½ΠΎΠΉ нишС размСстили Ρ…ΠΎΠ»ΠΎΠ΄ΠΈΠ»ΡŒΠ½ΠΈΠΊ; - Π’ Π΄Ρ€ΡƒΠ³ΠΎΠΉ – ΡΡ‚ΠΈΡ€Π°Π»ΡŒΠ½ΡƒΡŽ ΠΌΠ°ΡˆΠΈΠ½Ρƒ Π² санузлС; 3️⃣ Π‘ΠΎΠ·Π΄Π°Π»ΠΈ Π²ΠΌΠ΅ΡΡ‚ΠΈΡ‚Π΅Π»ΡŒΠ½ΡƒΡŽ ΠΈ Ρ„ΡƒΠ½ΠΊΡ†ΠΈΠΎΠ½Π°Π»ΡŒΠ½ΡƒΡŽ ΠΊΡƒΡ…Π½ΡŽ, которая идСально вписалась Π² пространство. πŸ’°Π Π΅Π·ΡƒΠ»ΡŒΡ‚Π°Ρ‚Ρ‹, ΠΊΠΎΡ‚ΠΎΡ€Ρ‹Ρ… Π½Π°ΠΌ ΡƒΠ΄Π°Π»ΠΎΡΡŒ Π΄ΠΎΡΡ‚ΠΈΡ‡ΡŒ: πŸ”΅Π—Π°Ρ€Π°Π±ΠΎΡ‚Π°Π»ΠΈ: 1 250 249 β‚½ πŸ”΅ΠŸΠΎΠΊΡƒΠΏΠ°Π»ΠΈ с инвСстором Π·Π° 7 100 000β‚½, (Π² ΠΈΠΏΠΎΡ‚Π΅ΠΊΡƒ - 21%) πŸ”΅Π’Π»ΠΎΠΆΠΈΠ»ΠΈ 3 740 251 β‚½ πŸ”΅ΠŸΡ€ΠΎΠ΄Π°Π»ΠΈ Π·Π° 11 450 000 β‚½ πŸ”΅ROI: 87,15% Π³ΠΎΠ΄ΠΎΠ²Ρ‹Ρ…. πŸ”΅Π”ΠΎΡ…ΠΎΠ΄Π½

🏠Как ΠΌΡ‹ Ρ€Π΅ΡˆΠΈΠ»ΠΈ ΠΏΡ€ΠΎΠ±Π»Π΅ΠΌΡƒ с ΠΎΠ³Ρ€ΠΎΠΌΠ½Ρ‹ΠΌ ΠΊΠΎΡ€ΠΈΠ΄ΠΎΡ€ΠΎΠΌ ΠΈ Π·Π°Ρ€Π°Π±ΠΎΡ‚Π°Π»ΠΈ 1,25 ΠΌΠ»Π½ β‚½?

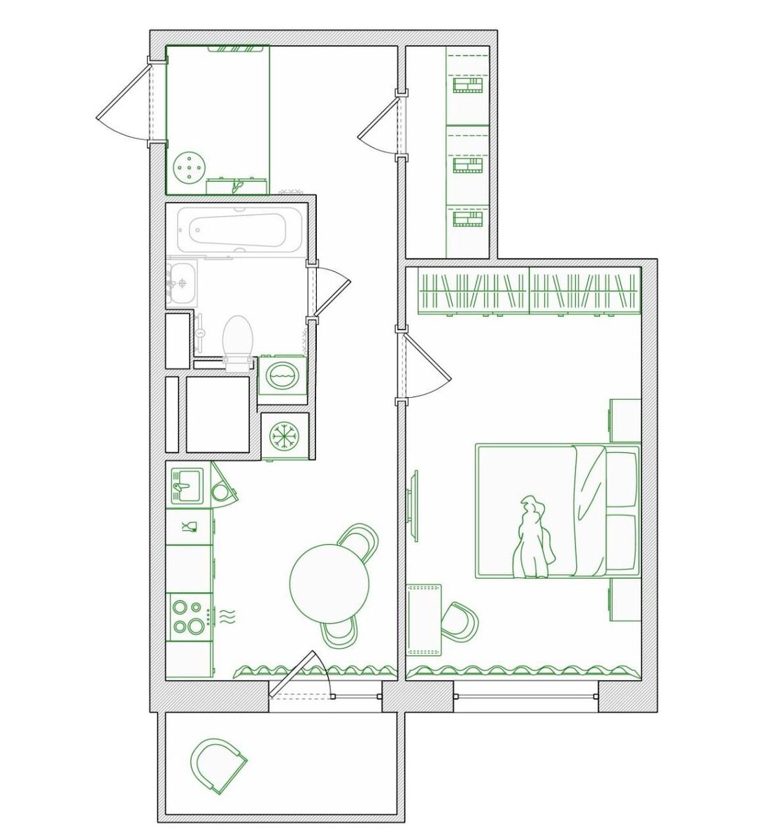
Как ΠΈ ΠΎΠ±Π΅Ρ‰Π°Π», Ρ€Π°ΡΡΠΊΠ°Π·Ρ‹Π²Π°ΡŽ, ΠΊΠ°ΠΊ ΠΌΡ‹ ΡΠΏΡ€Π°Π²ΠΈΠ»ΠΈΡΡŒ с Π½Π΅ΡƒΠ΄ΠΎΠ±Π½ΠΎΠΉ, я Π±Ρ‹ сказал бСсполСзной ΠΏΠ»Π°Π½ΠΈΡ€ΠΎΠ²ΠΊΠΎΠΉ.

Напомню, ΠΊΠΎΡ€ΠΈΠ΄ΠΎΡ€ Π·Π°Π½ΠΈΠΌΠ°Π» 10,5(!) ΠΊΠ²Π°Π΄Ρ€Π°Ρ‚Π½Ρ‹Ρ… ΠΌΠ΅Ρ‚Ρ€ΠΎΠ², Π½ΠΎ Π½Π΅ использовался.

Π’ΠΎΡ‚ Π½Π°Ρ‡Π°Π»ΠΎ этой истории, которая ΠΌΠΎΠ³Π»Π° Π½Π΅ Π½Π°Ρ‡Π°Ρ‚ΡŒΡΡπŸ˜‚

ΠŸΠΎΠ΄Ρ‹Ρ‚ΠΎΠΆΠΈΠΌ:

❌ Π£Π³ΠΎΠ» Π½Π° ΠΊΡƒΡ…Π½Π΅ с ΡˆΠ°Ρ…Ρ‚ΠΎΠΉ «съСдал» пространство;

❌ Π’ спальня Π½Π΅ Π±Ρ‹Π»ΠΎ мСста для хранСния;

❌ Π Π°ΡΡˆΠΈΡ€ΠΈΡ‚ΡŒ стСну ΠΌΠ΅ΠΆΠ΄Ρƒ ΠΊΠΎΡ€ΠΈΠ΄ΠΎΡ€ΠΎΠΌ ΠΈ санузлом нСльзя(!), ΠΏΠΎΡ‚ΠΎΠΌΡƒ Ρ‡Ρ‚ΠΎ Ρ‚Π°ΠΌ нСсущая стСна

πŸ’‘ΠΠ°ΡˆΠΈ Ρ€Π΅ΡˆΠ΅Π½ΠΈΡ:

1️⃣ ΠŸΠ΅Ρ€Π΅Π½Π΅ΡΠ»ΠΈ Π²Ρ…ΠΎΠ΄ Π² спальню со стороны санузла, освободив мСсто для Π³Π°Ρ€Π΄Π΅Ρ€ΠΎΠ±Π½ΠΎΠΉ Ρƒ Π²Ρ…ΠΎΠ΄Π°;

2️⃣ ΠžΠ±Ρ‹Π³Ρ€Π°Π»ΠΈ ΠΊΡƒΡ…ΠΎΠ½Π½Ρ‹ΠΉ ΡƒΠ³ΠΎΠ»:

- Π’ ΠΎΠ΄Π½ΠΎΠΉ нишС размСстили Ρ…ΠΎΠ»ΠΎΠ΄ΠΈΠ»ΡŒΠ½ΠΈΠΊ;

- Π’ Π΄Ρ€ΡƒΠ³ΠΎΠΉ – ΡΡ‚ΠΈΡ€Π°Π»ΡŒΠ½ΡƒΡŽ ΠΌΠ°ΡˆΠΈΠ½Ρƒ Π² санузлС;

3️⃣ Π‘ΠΎΠ·Π΄Π°Π»ΠΈ Π²ΠΌΠ΅ΡΡ‚ΠΈΡ‚Π΅Π»ΡŒΠ½ΡƒΡŽ ΠΈ Ρ„ΡƒΠ½ΠΊΡ†ΠΈΠΎΠ½Π°Π»ΡŒΠ½ΡƒΡŽ ΠΊΡƒΡ…Π½ΡŽ, которая идСально вписалась Π² пространство.

πŸ’°Π Π΅Π·ΡƒΠ»ΡŒΡ‚Π°Ρ‚Ρ‹, ΠΊΠΎΡ‚ΠΎΡ€Ρ‹Ρ… Π½Π°ΠΌ ΡƒΠ΄Π°Π»ΠΎΡΡŒ Π΄ΠΎΡΡ‚ΠΈΡ‡ΡŒ:

πŸ”΅Π—Π°Ρ€Π°Π±ΠΎΡ‚Π°Π»ΠΈ: 1 250 249 β‚½

πŸ”΅ΠŸΠΎΠΊΡƒΠΏΠ°Π»ΠΈ с инвСстором Π·Π° 7 100 000β‚½, (Π² ΠΈΠΏΠΎΡ‚Π΅ΠΊΡƒ - 21%)

πŸ”΅Π’Π»ΠΎΠΆΠΈΠ»ΠΈ 3 740 251 β‚½

πŸ”΅ΠŸΡ€ΠΎΠ΄Π°Π»ΠΈ Π·Π° 11 450 000 β‚½

πŸ”΅ROI: 87,15% Π³ΠΎΠ΄ΠΎΠ²Ρ‹Ρ….

πŸ”΅Π”ΠΎΡ…ΠΎΠ΄Π½ΠΎΡΡ‚ΡŒ инвСстора: 41%

Π•Ρ‰Ρ‘ большС Ρ†ΠΈΡ„Ρ€ ΠΈ ΠΏΠΎΠΊΠ°Π·Π°Ρ‚Π΅Π»Π΅ΠΉ ΠΏΠΎ этому ΠΎΠ±ΡŠΠ΅ΠΊΡ‚Ρƒ, πŸ‘‰πŸ»Ρ‚ΡƒΡ‚

πŸ“… Π¦ΠΈΠΊΠ» ΠΏΡ€ΠΎΠ΅ΠΊΡ‚Π°:

- Π Π΅ΠΌΠΎΠ½Ρ‚: 84 дня.

- ΠŸΡ€ΠΎΠ΄Π°ΠΆΠ°: 49 Π΄Π½Π΅ΠΉ.

πŸ”₯ Π₯ΠΎΡ‚ΠΈΡ‚Π΅ ΡƒΠ·Π½Π°Ρ‚ΡŒ, ΠΊΠ°ΠΊ ΠΌΡ‹ Ρ€Π΅ΡˆΠ°Π΅ΠΌ Ρ‚Π°ΠΊΠΈΠ΅ Π·Π°Π΄Π°Ρ‡ΠΈ ΠΈ Π·Π°Ρ€Π°Π±Π°Ρ‚Ρ‹Π²Π°Π΅ΠΌ Π½Π° нСдвиТимости?

Π—Π°ΠΏΠΈΡΡ‹Π²Π°ΠΉΡ‚Π΅ΡΡŒ Π½Π° ΠΊΠΎΠ½ΡΡƒΠ»ΡŒΡ‚Π°Ρ†ΠΈΡŽ, расскаТу, ΠΊΠ°ΠΊ ΠΈΠ· слоТных ΠΏΠ»Π°Π½ΠΈΡ€ΠΎΠ²ΠΎΠΊ ΠΈ Β«ΡƒΠ±ΠΈΡ‚Ρ‹Ρ… ΠΊΠ²Π°Ρ€Ρ‚ΠΈΡ€Β» Π΄Π΅Π»Π°Ρ‚ΡŒ ΠΏΡ€ΠΈΠ±Ρ‹Π»ΡŒΠ½Ρ‹Π΅ ΠΏΡ€ΠΎΠ΅ΠΊΡ‚Ρ‹ β†ͺ️@pona_invest

ΠžΠ±ΡΡƒΠ΄ΠΈΡ‚ΡŒ Ρ‚Π°ΠΊΠΈΠ΅ вопросы со ΠΌΠ½ΠΎΠΉ Π»ΠΈΡ‡Π½ΠΎ, Π° Π·Π°ΠΎΠ΄Π½ΠΎ ΠΈ ΠΏΠΎΠ·Π½Π°ΠΊΠΎΠΌΠΈΡ‚ΡŒΡΡ с нашим ΠΌΠ΅Ρ‚ΠΎΠ΄ΠΎΠΌ Ρ„Π»ΠΈΠΏΠΏΠΈΠ½Π³Π° со всСми ΠΏΠΎΠ΄Π²ΠΎΠ΄Π½Ρ‹ΠΌΠΈ камнями ΠΈ сСкрСтами ΠΌΠΎΠΆΠ½ΠΎ Π±ΡƒΠ΄Π΅Ρ‚ Π½Π° бизнСс-Π·Π°Π²Ρ‚Ρ€Π°ΠΊΠ΅ 26 июля‡️

πŸ””Π Π•Π“Π˜Π‘Π’Π ΠΠ¦Π˜Π―πŸ””

-2