Добавить в корзинуПозвонить
Найти в Дзене
Роман Щукин

Самая большая квартира в продаже в Москве в 80 раз больше и в 204 раза дороже самой маленькой

Самая большая квартира в продаже в Москве в 80 раз больше и в 204 раза дороже самой маленькой: «Самая большая квартира на вторичном рынке столицы площадью 1,1 тысячи квадратных метров продается на улице Минская на западе Москвы в доме 2019 года постройки. Цена продажи составляет 1,1 миллиарда рублей. Площадь же самой маленькой квартиры, которая продается на вторичном рынке Москвы, составляет всего 13,7 квадратных метров, площадь кухни - 3,7 квадратных метра. Она находится в доме на улице Гурьянова на юго-востоке города в девятиэтажке 1974 года постройки. Цена квартиры - 5,4 миллиона рублей» на представленном фото, чисто для прикола, приведен 8 раз план квартиры площадью 150 квадратов. Всего: 8 гостиных+8 кухонь, 8 холлов, 16 спален, 16 санузлов, 8 гардеробных и постирочных, 8 серверных и 8 лоджий. «Щукин и всё»

Самая большая квартира в продаже в Москве в 80 раз больше и в 204 раза дороже самой маленькой:

«Самая большая квартира на вторичном рынке столицы площадью 1,1 тысячи квадратных метров продается на улице Минская на западе Москвы в доме 2019 года постройки. Цена продажи составляет 1,1 миллиарда рублей.

Площадь же самой маленькой квартиры, которая продается на вторичном рынке Москвы, составляет всего 13,7 квадратных метров, площадь кухни - 3,7 квадратных метра. Она находится в доме на улице Гурьянова на юго-востоке города в девятиэтажке 1974 года постройки. Цена квартиры - 5,4 миллиона рублей»

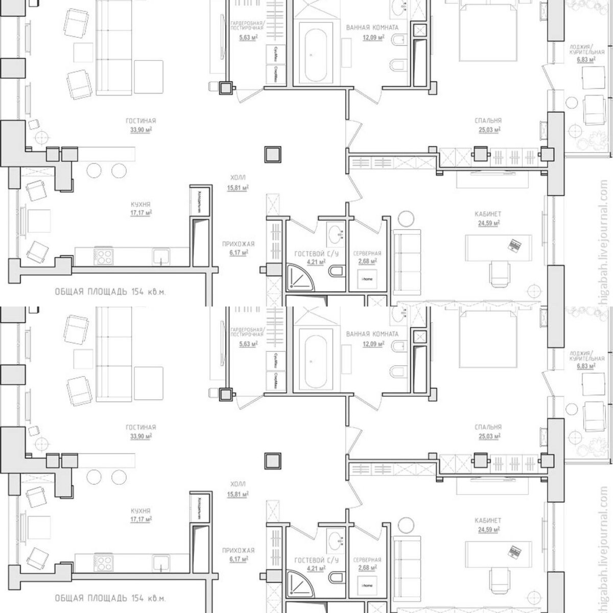
на представленном фото, чисто для прикола, приведен 8 раз план квартиры площадью 150 квадратов. Всего: 8 гостиных+8 кухонь, 8 холлов, 16 спален, 16 санузлов, 8 гардеробных и постирочных, 8 серверных и 8 лоджий.

«Щукин и всё»

-2
-3
-4
-5
-6