Найти в Дзене
INMYROOM

Уютный дачный домик 160 м² в Тульской области для большой семьи

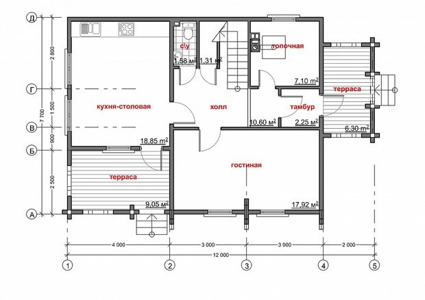
Двухэтажный дачный дом находится в Заокском районе Тульской области. Он был построен более 15 лет назад по типовому проекту для большой дружной семьи. С тех пор семья значительно увеличилась, у детей появились свои семьи, однако, небольшой дом умудряется вмещать всех. Дарья Соколова @daria.jameson рассказала нам о комнатах дома, их особенностях и о том, как создавался интерьер, наполненный теплом и индивидуальностью. Наш дачный дом — это два этажа и 160 кв. м пространства, вмещающего 5 спален, кухню-гостиную и зимний сад, который служит малой гостиной. Изначально проект предполагал проживание 6 человек: я с сестрой, родители и бабушка с дедушкой, но за годы семья выросла — у нас теперь свои семьи, и дом умудряется вместить всех по очереди. Просторные комнаты, встроенные гардеробы и вместительный чулан — все продумано для удобства и комфорта. Дом построен по типовому проекту, но мы внесли свои коррективы: гостиную на первом этаже переделали в две спальни, застеклили террасу и преврат

Двухэтажный дачный дом находится в Заокском районе Тульской области. Он был построен более 15 лет назад по типовому проекту для большой дружной семьи. С тех пор семья значительно увеличилась, у детей появились свои семьи, однако, небольшой дом умудряется вмещать всех. Дарья Соколова @daria.jameson рассказала нам о комнатах дома, их особенностях и о том, как создавался интерьер, наполненный теплом и индивидуальностью.

 📷
📷

Наш дачный дом — это два этажа и 160 кв. м пространства, вмещающего 5 спален, кухню-гостиную и зимний сад, который служит малой гостиной. Изначально проект предполагал проживание 6 человек: я с сестрой, родители и бабушка с дедушкой, но за годы семья выросла — у нас теперь свои семьи, и дом умудряется вместить всех по очереди. Просторные комнаты, встроенные гардеробы и вместительный чулан — все продумано для удобства и комфорта.

Дом построен по типовому проекту, но мы внесли свои коррективы: гостиную на первом этаже переделали в две спальни, застеклили террасу и превратили ее в зимний сад. Вместо топочной сделали ванную комнату, а в санузле разместили гардеробную. Эти изменения позволили сделать дом более удобным и функциональным.

 📷
📷

Одним из самых масштабных проектов стало оформление лестницы. Ступени были покрашены морилкой и покрыты полиуретановым лаком для защиты. Вся остальная часть лестницы украшена декоративными материалами Daria Geiler: меловыми красками, оттеночным воском и декупажем в стиле мозаичных плиток. Этот проект стал настоящим украшением дома, добавляя уюта и индивидуальности.

 📷
📷

 📷
📷

 📷
📷

Внутреннюю отделку мы делали своими руками. Стены обшили вагонкой и покрасили в разные цвета — каждый для своей спальни выбирал оттенки по настроению. Моя комната напоминает греческий курорт, я выбрала для нее бело-голубые тона. Главным акцентом стал прабабушкин синий стул, который я перекрасила и сделал частью интерьера.

 📷
📷

Я очень люблю менять оформление стен — это позволяет освежить интерьер и сделать его живым. В качестве декора использую сувениры из греческих путешествий, картины морской тематики, винтажные ракетки и шляпу, создающую атмосферу курорта. Картины — моя страсть и источник вдохновения. Я сама художник и продолжаю обучение в Италии, а родители давно коллекционируют произведения искусства. Живопись придает дому особое настроение и живость.

 📷
📷

 📷
📷

Если моя дачная комната — это остров Миконос с морскими мотивами, то комната сестры — Занзибар, с его яркими цветами и африканским колоритом: терракотовый комод из Икеи, картины из путешествий, сувениры — все создает ощущение приключений и мечтаний.

 📷
📷

 📷
📷

На втором этаже в холле у нас расположен большой шкаф-библиотека. Этот элемент интерьера не только служит вместительным хранилищем для книг и семейных фото, но и придает помещению элегантность и уют, создавая атмосферу настоящего домашнего тепла и гармонии.

 📷
📷

 📷
📷

В мебельных решениях мы не заморачивались: большинство предметов — из Икеи, чтобы сохранить лаконичность и простоту. Главное — чтобы мебель служила долго и не отвлекала от атмосферы уюта.

 📷
📷

 📷
📷

 📷
📷

 📷
📷

Моя любимая формула — минимализм, яркие цвета, винтаж и декор. Важно, чтобы пространство вдохновляло и радовало вас каждый день — пусть оно рассказывает вашу историю, отражает мечты и увлечения.