Найти в Дзене
INMYROOM

«Чем убитее — тем лучше»: история преображения 54 м²

Оглавление

история преображения 54 м²

Получилось полноценное жилье для семьи

Дизайнер Александра, сооснователь бюро Just in terriers, взялась за непростой проект: квартиру в историческом доме 1930-х годов на Чистых прудах. Задача стояла амбициозная — превратить убитую квартиру площадью 54 м² в функциональную трешку, причем такую, чтобы она подходила как для личного проживания, так и для посуточной аренды.

 📷
📷
Метраж: 54 кв. м
Высота потолков: 2,8 м
Дизайн: Александра Ознобищева

Главное из статьи:

  • Из 54 м² сделали полноценную трехкомнатную квартиру;
  • Кухню площадью 3 м² превратили в функциональное пространство;
  • Старый фонд 1930-х годов полностью обновили, сохранив исторические элементы;
  • Все антикварные предметы отреставрировали и вписали в современный интерьер;
  • Создали двойное назначение: для жизни и посуточной аренды.

Почему дизайнер обрадовалась «убитой» квартире

«Квартиру мы получили в достаточно убитом состоянии. Для меня как для дизайнера это большой плюс, потому что есть большой фронт работ и не надо переделывать чужие евроремонты», — рассказывает Александра.

Дом построен в начале 1930-х для работников военстроя. Здесь жили военные начальники и даже Ольга Ивинская — возлюбленная Пастернака. Но историческое наследие не помешало кардинальным переменам.

Фото до ремонта:

-3
-4
-5
-6
-7
-8

Как превратить три метра в функциональную кухню

Главный вызов проекта — крошечная кухня площадью 3,5 м². «Это самая маленькая кухня, которую я когда-либо видела», — признается дизайнер. Местные старожилы объясняют такую планировку просто: в советское время на первых этажах размещались столовые, готовить дома не предполагалось.

Решение нашлось в миниатюризации:

  • Холодильник 55 см шириной;
  • Сорокапятисантиметровая посудомойка;
  • Компактная раковина;
  • Волшебный уголок для хранения;
  • Выдвижные системы для приборов и кастрюль.
 📷
📷
 📷
📷

«Гвозди в стене» превратились в продуманную систему хранения

«При входе в квартиру были просто буквально гвозди в стене и в конце коридора была крошечная такая же очень маленькая ванная», — вспоминает дизайнер начальное состояние прихожей.

Входной санузел ликвидировали, освободив место для гардеробной. В ней спрятали постирочную зону со стиральной машиной и бойлером. Второй санузел расширили за счет коридора, объединив с ванной.

Как антиквариат уживается с современностью

«В квартире очень большое количество ценных для меня памятных и антикварных вещей», — рассказывает Александра. Каждый предмет имеет свою историю:

  • Обеденный стол достался с дачи какого-то генерала, был обит клеенкой. После реставрации покрыли яхтным лаком — теперь неубиваемый;
  • Буфету не меньше 150 лет, из книжного шкафа превратился в посудный;
  • Зеркало в псевдорусском стиле отреставрировали, восстановив утраченные детали.
 📷
📷
 📷
📷
 📷
📷

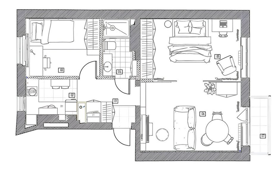
Трешка из однушки: как это возможно

В квартире провели серьезную перепланировку. Изначально все комнаты были изолированными, а пространство использовалось нерационально. Теперь здесь:

  • Гостиная объединена со спальней через лофт-перегородку;
  • Детская с подиумом-трансформером, где встроены кровать, рабочий стол и системы хранения;
  • Балкон стал дополнительной зоной отдыха с инфракрасным обогревом для зимы.

«Это увеличивает количество посадочных мест, позволяет большему количеству людей коммуницировать», — объясняет дизайнер принцип организации пространства.

 📷
📷
 📷
📷
 📷
📷

Что получилось в итоге

Проект доказывает: даже в очень компактном пространстве можно создать полноценное жилье для семьи. При этом квартира работает в двух режимах: для постоянного проживания и посуточной аренды. «Мы из нее смогли сделать полноценную трехкомнатную квартиру», — гордится результатом Александра.

Интерьер получился как современным, так и уютным, с характером. Антикварные предметы здесь не музейные экспонаты, а функциональные вещи, которыми пользуются каждый день. А исторический контекст дома стал не ограничением, а преимуществом проекта.

 📷
📷

Видео квартиры:

Сейчас читают:

Спасибо, что читаете нас! ❤️

Если материал был полезен — поставьте лайк и отправьте другу.

А ещё больше интерьерных идей, советы экспертов и классные румтуры в нашем Telegram-канале. Подписывайтесь, вам точно понравится!