Найти в Дзене
INMYROOM

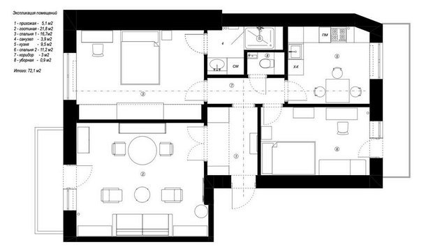
Как круто оформили прихожую 5 м² в московской сталинке

Решения, которые легко повторить и в вашем интерьере Дизайнер Елена Зуфарова мастерски обустроила прихожую в трехкомнатной сталинке для семьи коллекционеров, применив красивые и функциональные решения. Она эффективно использовала ограниченное пространство, сохранив элегантный стиль и дух эпохи. Стены прихожей окрашены в глубокий синий цвет, который придает помещению глубину и делает пространство более выразительным. На полу использована узорчатая плитка, отсылающая к классическим старинным интерьерам. Свежести прихожей добавили белые двери, наличники и потолок — они стали красивым контрастом к темным стенам. Для хранения предусмотрен шкаф с антресолями, его фасады окрашены в цвет стен. Также в прихожей есть открытая вешалка с мягкой скамьей. Это решение удобно и практично: здесь можно разместить верхнюю одежду и обувь, а мягкая скамья станет комфортным местом для переобувания. Сверху предусмотрен шкафчик для редко используемых вещей, что помогает сохранить порядок и освободить простра

Решения, которые легко повторить и в вашем интерьере

Дизайнер Елена Зуфарова мастерски обустроила прихожую в трехкомнатной сталинке для семьи коллекционеров, применив красивые и функциональные решения. Она эффективно использовала ограниченное пространство, сохранив элегантный стиль и дух эпохи.

 📷
📷

Стены прихожей окрашены в глубокий синий цвет, который придает помещению глубину и делает пространство более выразительным. На полу использована узорчатая плитка, отсылающая к классическим старинным интерьерам. Свежести прихожей добавили белые двери, наличники и потолок — они стали красивым контрастом к темным стенам.

 📷
📷

Для хранения предусмотрен шкаф с антресолями, его фасады окрашены в цвет стен. Также в прихожей есть открытая вешалка с мягкой скамьей. Это решение удобно и практично: здесь можно разместить верхнюю одежду и обувь, а мягкая скамья станет комфортным местом для переобувания. Сверху предусмотрен шкафчик для редко используемых вещей, что помогает сохранить порядок и освободить пространство от лишних предметов.

 📷
📷

Фишкой прихожей стало зеркало с резными элементами. Оно установлено на ножках и дополнено полкой, что позволяет использовать его не только для проверки внешнего вида, но и для хранения мелких предметов. Резные детали придают интерьеру утонченный и оригинальный стиль, а зеркальная поверхность визуально расширяет пространство.

 📷
📷

Создав гармонию между стилем и функциональностью, дизайнер показала, что даже в маленьком пространстве можно добиться максимального удобства и комфорта. Этот проект — вдохновение для тех, кто хочет преобразить свою прихожую, добавив в нее характер и уют, не забывая при этом о практичности.

Сейчас читают:

Спасибо, что читаете нас! ❤️

Если материал был полезен — поставьте лайк и отправьте другу.

А ещё больше интерьерных идей, советы экспертов и классные румтуры в нашем Telegram-канале. Подписывайтесь, вам точно понравится!