Найти в Дзене
INMYROOM

До и после: туалет посреди коридора? Больше нет!

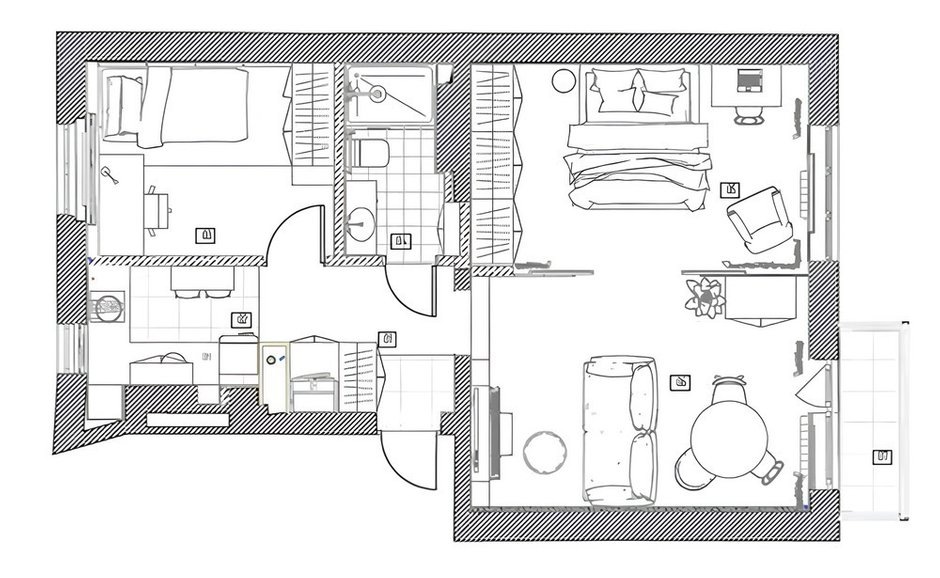
Как грамотно передвинуть санузел и выиграть место Маленькая квартира — это всегда вызов. Особенно если она досталась в «убитом» состоянии и с неудобной планировкой. Именно такой была московская квартира в доме 1930-х годов, которую дизайнер Александра превратила в функциональную трешку. В числе главных проблем — туалет, находившийся прямо в коридоре. Он занимал ценное место и не позволял организовать удобную зону хранения. В итоге санузел перенесли, а освободившееся пространство превратили в гардеробную. Разбираемся, как это удалось, какие нюансы важно учесть и стоит ли игра свеч. Метраж: 54 кв. м Высота потолков: 2,8 м Квартира находится в историческом доме кооператива «Военный строитель». Построен он в 1930-х годах для сотрудников военстроя — организации, занимавшейся бомбоубежищами и гражданской обороной. Как и во многих старых домах, планировка оставляла желать лучшего. При входе в квартиру находился маленький туалет, буквально встроенный в коридор. Места для верхней одежды почти н
Оглавление

Как грамотно передвинуть санузел и выиграть место

Маленькая квартира — это всегда вызов. Особенно если она досталась в «убитом» состоянии и с неудобной планировкой. Именно такой была московская квартира в доме 1930-х годов, которую дизайнер Александра превратила в функциональную трешку. В числе главных проблем — туалет, находившийся прямо в коридоре. Он занимал ценное место и не позволял организовать удобную зону хранения. В итоге санузел перенесли, а освободившееся пространство превратили в гардеробную. Разбираемся, как это удалось, какие нюансы важно учесть и стоит ли игра свеч.

 📷
📷
Метраж: 54 кв. м
Высота потолков: 2,8 м

Главное из статьи:

  • Переносить санузел можно, но не везде: нужно учитывать нормы БТИ и технические ограничения.
  • В этой квартире унитаз перенесли в зону бывшей ванной, а на его месте сделали вместительную гардеробную.
  • Заранее планируйте расположение труб и вентиляции: перенос стояков сложен и не всегда возможен.
  • Учитывайте перепады высот: иногда перенос требует подиума для слива воды.
  • Важно заранее продумать хранение: где теперь будет место для стиральной машины, бытовой химии и полотенец?

Фото до ремонта:

-3
-4

Туалет в коридоре: почему так вышло?

Квартира находится в историческом доме кооператива «Военный строитель». Построен он в 1930-х годах для сотрудников военстроя — организации, занимавшейся бомбоубежищами и гражданской обороной. Как и во многих старых домах, планировка оставляла желать лучшего.

При входе в квартиру находился маленький туалет, буквально встроенный в коридор. Места для верхней одежды почти не было — только гвозди в стене. Ванная тоже была крошечной и находилась в конце коридора. Все это не соответствовало современным стандартам удобства.

 📷
📷
 📷
📷

Как решить проблему: перенос санузла

Дизайнер решила радикально изменить планировку. Туалет убрали из коридора и объединили его с ванной. Это позволило:

  • сделать санузел просторнее;
  • разместить всю сантехнику в одном месте;
  • выиграть место в коридоре под встроенный шкаф.

«В результате была выстроена большая мебельная конструкция с двумя секциями. Одна — со стороны входа, для одежды и обуви. Вторая — со стороны кухни, там спряталась постирочная зона: стиральная машина, бойлер и бытовая химия».

 📷
📷

Можно ли так делать в обычной квартире?

Перед тем как менять планировку, нужно учитывать строительные нормы. Главное правило: перенос санузла допускается только в нежилую зону (коридор, кладовую, кухню, если там есть слив). Запрещено размещать унитаз над жилыми комнатами соседей снизу.

В этой квартире все уложилось в нормы, потому что:

  • унитаз перенесли в зону бывшей ванной;
  • водоотведение и вентиляция были рядом, не требовалось сложных переделок;
  • коридор — нежилая зона, поэтому гардеробная вместо туалета допустима.

Если вы планируете подобную переделку, важно согласовать ее с БТИ, особенно в многоквартирном доме.

Какие сложности могут возникнуть?

  • Перепады высот. Иногда перенос требует приподнять уровень пола (например, на подиум), чтобы обеспечить нормальный слив воды. В этой квартире этого удалось избежать.
  • Шумовые нюансы. Если санузел оказывается ближе к жилой зоне, стоит предусмотреть дополнительную шумоизоляцию труб.
  • Перенос стояков. В большинстве случаев они остаются на месте, а значит, унитаз и ванна должны быть расположены недалеко от старых точек подключения.

Гардеробная вместо туалета: удобно ли это?

Вместо старого санузла в коридоре теперь стоит вместительный шкаф с двумя секциями.

  • Одна часть — у входа: для верхней одежды и обуви.
  • Вторая — у кухни: там скрыта постирочная зона со стиральной машиной и бойлером.

Такое решение позволило максимально эффективно использовать пространство и избавить квартиру от хаоса.

«Освободившееся место мы использовали по максимуму: встроенные шкафы, антресоли, скрытая система хранения. Все под рукой, но ничего не загромождает пространство».

Стоит ли делать перенос санузла?

Если у вас похожая планировка и туалет мешает удобству, есть смысл рассмотреть перенос. Но важно учитывать технические нюансы, согласования и затраты. В данном случае переделка себя оправдала: квартира стала удобнее, появилось больше места для хранения, а санузел стал просторнее.

Хотите больше идей по перепланировке? Подписывайтесь на INMYROOM — у нас много примеров стильных и продуманных интерьеров!

Сейчас читают:

Спасибо, что читаете нас! ❤️

Если материал был полезен — поставьте лайк и отправьте другу.

А ещё больше интерьерных идей, советы экспертов и классные румтуры в нашем Telegram-канале. Подписывайтесь, вам точно понравится!